大崎市古川下中目字六軒丁の新築戸建
掲載情報更新日:2025年12月08日 次回更新予定日:2025年12月22日
- 1,580万円
-
- 借入ご希望金額
万円 - 借入期間
年 - 借入金利
% - 月々のお支払い金額
円
- 借入ご希望金額
※ 月々のお支払例は目安の試算となりますので、実際の金額とは異なる場合がございます。詳しくは店舗までお問合わせください。
- 大崎市古川下中目字六軒丁
-
JR陸羽東線『古川』 車10分(約5.5km)
大崎市古川下中目字六軒丁一戸建て | 物件情報
SAFE365が特徴のQUIEは、耐震+制震の安心住宅です。
物件の設備
- 電気
- オール電化
- 公営水道
- 下水道
- 側溝
- IHクッキングヒータ
- コンロ三口
- カウンターキッチン
- システムキッチン
- 追焚機能
- 浴室暖房
- 浴室乾燥機
- トイレ2箇所
- 温水洗浄便座
- 洗髪洗面化粧台
- 人感照明センサー
- 省エネ給湯器
- モニタ付インターホン
- 火災警報器/報知機
- 複層ガラス
- 24時間換気システム
- クローゼット
- 床下収納
- 全居室収納
- バルコニー
- ワイドバルコニー
物件の特徴
- 地盤調査済
- 閑静な住宅街
- 2階建
- 外壁サイディング
- 建設住宅性能評価付
- 設計住宅性能評価付
- 省エネルギー対策
- フラット35Sに対応
物件詳細情報
| 価格 | 1,580万円 | 間取り | 4LDK |
|---|---|---|---|
| 物件種別 | 新築一戸建て | ||
| 所在地 | 宮城県大崎市古川下中目字六軒丁 3号棟 | ||
| アクセス |
|
||
| 建物面積 | 公94.77㎡ | 駐車場 | あり 普通:3台 |
| 築年月 | 2025年(令和7年)07月予定 | 建築確認 | 第R07SHC103763号 |
| 建物構造 | 木造 2階建 | 工法 | 軸組工法 |
| 主要採光 | 東向 | バルコニー | 東向7.29㎡ |
| 保証・評価 | 設計住宅性能評価書・建設住宅性能評価書(新築時) |
||
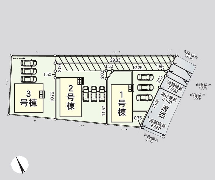
| 分譲情報 | 【販売戸数】:3戸 【価格】:1,780万円 ~2,080万円 【最多価格】:2,000万円 ~2,100万円(1戸) 【土地面積】:170.57㎡ ~241.98㎡ |
||
| 土地面積 | 公241.98㎡(73.19坪) | 接道 | 東側(公道)幅 約5.9m 北側(私道)幅 約4.0m |
| 私道 | 別:公60.73㎡(持分 1/3) | セットバック | |
| 地目 | 宅地 | 地勢 | 平坦 |
| 権利 | 所有権 |
||
| 都市計画 | 区域外 |
用途地域 | 指定無 |
| 建ぺい/容積率 | 70% / 200% | 土地国土法 | |
| 許可番号 | 建築基準法 | ||
| 法令制限 | |||
| 小学区 | 敷玉小学校 徒歩14分 (約1100m) | 中学区 | 古川東中学校 徒歩60分 (約4800m) |
| 現況 | 建築中 | 引渡 | 期日指定:2025年07月 |
| その他費用 | |||
| 周辺環境 | セブンイレブン 古川下中目店 徒歩5分 (約390m) 美里町役場 徒歩51分 (約4080m) ツルハドラッグ小牛田店 徒歩51分 (約4080m) あいのや 古川東店 徒歩62分 (約4940m) DCM 古川店 徒歩64分 (約5080m) |
||
| 備考 | ・セブンイレブン 古川下中目店まで徒歩5分(約390m) ・美里町役場まで徒歩51分(約4080m) ・ツルハドラッグ小牛田店まで徒歩51分(約4080m) ・あいのや 古川東店まで徒歩62分(約4940m) ・DCM 古川店まで徒歩64分(約5080m) |
||
| 物件番号 | 4237905 | 取引態様 | 媒介 |
取扱店舗情報
ハウスドゥ 石巻蛇田 不動産の窓口株式会社 店舗詳細ページへ
| 電話番号 | 0225-98-8142 |
|---|---|
| 所在地 | 〒986-0868 宮城県石巻市恵み野5丁目1-3 キャッスルシティ恵み野102 |
| 営業時間 | 10:00~19:00 |
| 定休日 | 水曜日、年末年始 |
| 宅建免許番号 | 宮城県知事(1)第6844号 |
| アクセス | 店舗への地図はこちら |

来店ご予約
- 宮城県
マイページ物件数 - 1,147件
最近見た物件
-
-

-
- 新築一戸建て
- 3,180万円
-
犬山市大字橋爪字上海
-
名鉄犬山線犬山口
-
宮城県新築一戸建て新着物件
- お近くの店舗を探す
-
おすすめ物件
-
-

-
- 新築一戸建て
- 5,180万円
-
仙台市泉区本田町
-
仙台市営地下鉄南北線泉中央
-
-
-

-
- 新築一戸建て
- 3,390万円
-
仙台市宮城野区栄3丁目
-
JR仙石線中野栄
-
-
-

-
- 新築一戸建て
- 5,790万円
-
仙台市太白区長町8丁目
-
仙台市営地下鉄南北線長町
-
-
-

-
- 新築一戸建て
- 3,350万円
-
仙台市若林区若林7丁目
-
仙台市営地下鉄南北線長町一丁目
-
-
-

-
- 新築一戸建て
- 3,280万円
-
仙台市太白区東中田4丁目
-
JR東北本線南仙台
-



