前橋市大利根町2丁目の新築戸建
掲載情報更新日:2025年12月11日 次回更新予定日:2025年12月25日
- 2,580万円
-
- 借入ご希望金額
万円 - 借入期間
年 - 借入金利
% - 月々のお支払い金額
円
- 借入ご希望金額
※ 月々のお支払例は目安の試算となりますので、実際の金額とは異なる場合がございます。詳しくは店舗までお問合わせください。
- 前橋市大利根町2丁目
-
JR両毛線『新前橋』 徒歩42分 (約3360m)
前橋市大利根町2丁目一戸建て | 物件情報
断熱等級6の高性能住宅! 駐車3台可&南道路接道で陽当たり良好♪大利根小・箱田中エリア!
前橋市大利根町二丁目の落ち着いた住宅街に、新築4LDKの住まいが誕生しました!
断熱等級6対応の高気密・高断熱住宅なので、夏は涼しく冬は暖かく、光熱費の節約にもつながります◎
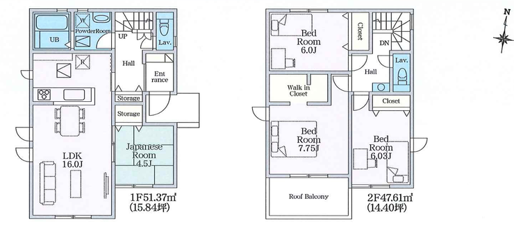
◆土地面積171.91㎡(約52坪)、建物面積99.98㎡のゆとりある広さ
◆全室収納付き!家族構成やライフスタイルに合わせやすい4LDK
◆会話が弾むオープンカウンターキッチン/使いやすい3口コンロ付きシステムキッチン
◆駐車スペース3台分確保!(車種により並列駐車も可能)
◆南側6m公道に面しており、日当たり・開放感良好です♪
小学校やスーパー、公園が徒歩圏に揃っており、子育てファミリーにもおすすめの住環境です!
まずは現地をご覧ください。ご見学予約・資料請求はお気軽にどうぞ♪
是非ハウスドゥ高崎倉賀野までご連絡ください(*^-^*)
物件の設備
- コンロ三口
- カウンターキッチン
- システムキッチン
- オープンキッチン
- 浴室暖房
- 浴室乾燥機
- トイレ
- トイレ2箇所
- 温水洗浄便座
- 洗髪洗面化粧台
- モニタ付インターホン
- 複層ガラス
- 全居室複層ガラス
- フローリング
- シャッター雨戸
- 床下収納
物件の特徴
- 前道6m以上
- 南側道路面す
- 2階建
物件詳細情報
| 価格 | 2,580万円 | 間取り | 4LDK |
|---|---|---|---|
| 物件種別 | 新築一戸建て | ||
| 所在地 | 群馬県前橋市大利根町2丁目 1号棟 | ||
| アクセス |
|
||
| 建物面積 | 公99.98㎡ | 駐車場 | あり 普通:3台 |
| 築年月 | 2025年(令和7年)08月築 | 建築確認 | 第SJK-KX245125910号 |
| 建物構造 | 木造 2階建 | 工法 | |
| 主要採光 | 南向 | バルコニー | |
| 保証・評価 | |||
| 分譲情報 | 【販売戸数】:1戸 |
||
| 土地面積 | 公171.91㎡(52坪) | 接道 | 南側(公道)幅 約6.0m |
| 私道 | セットバック | ||
| 地目 | 宅地 | 地勢 | |
| 権利 | 所有権 |
||
| 都市計画 | 市街化区域 |
用途地域 | 1種低層 |
| 建ぺい/容積率 | 40% / 80% | 土地国土法 | |
| 許可番号 | 建築基準法 | ||
| 法令制限 | |||
| 小学区 | 大利根小学校 徒歩2分 (約120m) | 中学区 | 箱田中学校 徒歩15分 (約1200m) |
| 現況 | 空 | 引渡 | 相談 |
| その他費用 | |||
| 周辺環境 | 前橋市立新田小学校 徒歩13分 (約990m) フレッセイ大利根店 徒歩14分 (約1090m) カワチ薬品大利根店 徒歩14分 (約1090m) ミニストップ前橋下新田店 徒歩14分 (約1090m) セブン-イレブン 高崎大沢町店 徒歩14分 (約1100m) 高崎大沢郵便局 徒歩9分 (約670m) マミーウォッシュ下新田 徒歩11分 (約820m) すずかけ公園 徒歩14分 (約1060m) |
||
| 備考 | ■周辺環境■ 大利根小学校 120m(徒歩約2分) 箱田中学校 1,200m(徒歩約15分) フレッセイ大利根店 600m(徒歩約8分) カワチ薬品大利根店 300m(徒歩約4分) 大利根中央公園 400m(徒歩約5分) ミニストップ前橋下新田店 450m(徒歩約6分) |
||
| 物件番号 | 4244882 | 取引態様 | 媒介 |
取扱店舗情報
ハウスドゥ 高崎倉賀野 株式会社未来ワーク 店舗詳細ページへ
| 電話番号 | 027-386-4447 |
|---|---|
| 所在地 | 〒370-1201 群馬県高崎市倉賀野町4573-1 |
| 営業時間 | 10:00~18:00 |
| 定休日 | 水曜日 |
| 宅建免許番号 | 群馬県知事(1)第7819号 |
| アクセス | 店舗への地図はこちら |

来店ご予約
群馬県前橋市で価格が似ている物件はこちら
- 群馬県
マイページ物件数 - 2,557件
群馬県新築一戸建て新着物件
- お近くの店舗を探す
-

































ハウスドゥ高崎倉賀野は、感謝を忘れず頂いたご縁に一生懸命対応させていただきます♪お気軽にご相談ください♪