Loading
  1. TOP>
  2. 一戸建て>
  3. 東海>
  4. 愛知県>
  5. 名古屋市中川区>
  6. 十番町4丁目>
  7. 名古屋市中川区十番町4丁目の新築戸建

名古屋市中川区十番町4丁目の新築戸建

掲載情報更新日:2025年10月09日 次回更新予定日:2025年10月23日

  • 4,299万円
    • 借入ご希望金額
      万円
    • 借入期間
    • 借入金利
    • 月々のお支払い金額

※ 月々のお支払例は目安の試算となりますので、実際の金額とは異なる場合がございます。詳しくは店舗までお問合わせください。

  • 名古屋市中川区十番町4丁目
  • 名古屋市名港線『六番町』 徒歩8分 (約640m)
    名古屋市名港線『東海通』 徒歩19分 (約1520m)
    名古屋市名港線『日比野』 徒歩23分 (約1840m)
取扱会社:ハウスドゥ 中川四女子  GLエステイト株式会社
  • この物件に資料請求・問い合わせをする
  • ■お電話はこちら 通話料無料 0120-420-177

名古屋市中川区十番町4丁目一戸建て | 物件情報

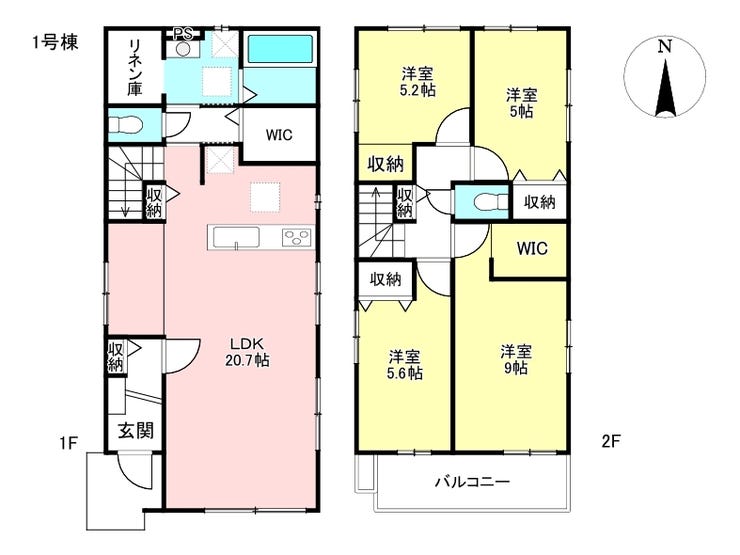
【間取り】

【間取り】

【外観】

【外観】

取扱会社
ハウスドゥ 中川四女子  
  • この物件に資料請求・問い合わせをする
  • ■お電話はこちら 通話料無料 0120-420-177

物件の設備

  • 電気
  • 上水道
  • 下水道
  • 都市ガス
  • 浄水器
  • 食器洗浄乾燥機
  • コンロ三口
  • システムキッチン
  • オートバス
  • バス1坪以上
  • 追焚機能
  • 浴室暖房
  • 浴室乾燥機
  • 浴室に窓
  • トイレ2箇所
  • 温水洗浄便座
  • 室内洗濯機置場
  • 洗髪洗面化粧台
  • 省エネ給湯器
  • モニタ付インターホン
  • 火災警報器/報知機
  • LDK20畳以上
  • 複層ガラス
  • 全室フローリング
  • 24時間換気システム
  • ウォークインクローゼット
  • 床下収納
  • 全居室収納
  • シューズボックス

物件の特徴

  • 小学校徒歩10分以内
  • 南側道路面す
  • スーパーが近い
  • 通風良好
  • 陽当り良好
  • 2階建
  • 建設住宅性能評価付
  • 設計住宅性能評価付
  • フラット35
  • S適合証明書
  • 即入居可
  • フラット35Sに対応

物件詳細情報

価格 4,299万円 間取り 4LDK
物件種別 新築一戸建て
所在地 愛知県名古屋市中川区十番町4丁目
アクセス
  • 名古屋市名港線『六番町』 徒歩8分 (約640m)
  • 名古屋市名港線『東海通』 徒歩19分 (約1520m)
  • 名古屋市名港線『日比野』 徒歩23分 (約1840m)
建物面積 105.38㎡ 駐車場 あり 普通:2台
築年月 2025年(令和7年)07月築 建築確認 第R07SHC103245号
建物構造 木造 2階建 工法
主要採光 南向 バルコニー
保証・評価 フラット35S適合証明書・設計住宅性能評価書・建設住宅性能評価書(新築時)
分譲情報
土地面積 107.21㎡(32.43坪) 接道 南側(公道)幅 約4.4m
私道 セットバック
地目 宅地 地勢
権利 所有権
都市計画 市街化区域
用途地域 工業
建ぺい/容積率 60% / 200% 土地国土法
許可番号 建築基準法
法令制限
小学区 玉川小学校 徒歩5分 (約350m) 中学区 昭和橋中学校 徒歩8分 (約600m)
現況 完工済 引渡
その他費用
周辺環境 名古屋市立玉川小学校 徒歩5分 (約350m)
名古屋市立昭和橋中学校 徒歩8分 (約600m)
マックスバリュ港十番店 徒歩9分 (約670m)
ファミリーマート熱田八番二丁目店 徒歩10分 (約770m)
ゲンキー中川玉川店 徒歩5分 (約340m)
名古屋六番町郵便局 徒歩12分 (約900m)
名古屋銀行六番町支店 徒歩14分 (約1110m)
昭和橋公園 徒歩3分 (約170m)
名古屋市立十番保育園 徒歩7分 (約530m)
名古屋掖済会病院 徒歩20分 (約1560m)
備考
物件番号 4253289 取引態様 媒介

取扱店舗情報

ハウスドゥ 中川四女子  GLエステイト株式会社 店舗詳細ページへ

電話番号 052-655-4201
所在地 〒454-0822
愛知県名古屋市中川区四女子町4丁目1
営業時間 10:00~18:00
定休日 火曜日、水曜日
宅建免許番号 愛知県知事(2)第23553号
アクセス 店舗への地図はこちら

ハウスドゥ  中川四女子の外観

この物件に関する資料請求・お問合せ

通話料無料 0120-420-177

お問い合わせの際に「ホームページを見た」といっていただくとお話がスムーズになります。

来店ご予約

ウィンドウを閉じる

ハウスドゥ 中川四女子  GLエステイト株式会社への地図

  • ハウスドゥ  中川四女子の地図
  • ハウスドゥ  中川四女子の外観

GoogleMapで地図を見る

ウィンドウを閉じる

愛知県名古屋市中川区で価格が似ている物件はこちら

戻る

次へ

愛知県名古屋市中川区の 新築一戸建て 一覧から探す

愛知県名古屋市中川区で種別を変更して探す

愛知県
マイページ物件数
30,485

マイページサービス

新規登録(無料)
  • 物件探しがもっと便利に
  • 希望情報をいち早くお届け
  • マイページ物件が閲覧可能

愛知県新築一戸建て新着物件

お近くの店舗を探す

おすすめ物件

無料アプリ