東大阪市善根寺町1丁目新築戸建10号地
掲載情報更新日:2025年12月30日 次回更新予定日:2026年01月13日
- 3,880万円
-
- 借入ご希望金額
万円 - 借入期間
年 - 借入金利
% - 月々のお支払い金額
円
- 借入ご希望金額
※ 月々のお支払例は目安の試算となりますので、実際の金額とは異なる場合がございます。詳しくは店舗までお問合わせください。
- 東大阪市善根寺町1丁目
-
近鉄難波・奈良線『石切』 徒歩30分 (約2400m)
近鉄けいはんな線『新石切』 徒歩40分 (約3200m)
四条畷線40001系統『孔舎衙小学校前』 徒歩13分 (約1040m)
東大阪市善根寺町1丁目新築戸建10号地一戸建て | 物件情報
◆敷地面積約150㎡以上を擁する大型分譲地 ◆全13区画販売開始 ◆庭付き+駐車場2台以上可
☆太陽光発電とエネファーム(発電)が装備された次世代型W発電住宅
☆防犯システム(アイルス)を標準装備
☆憧れの庭付き一戸建て
☆駐車場2台以上可、LDK、お部屋すべてがゆとりある間取り
・玄関にはシューズインクローク、全部屋収納完備
・水回り動線が固まっており家事も楽々
・リビング階段につき家族の出入りが分かりやすい
物件の設備
- 公営水道
- 下水道
- 都市ガス
- 食器洗浄乾燥機
- 食品庫
- コンロ三口
- グリル
- カウンターキッチン
- システムキッチン
- オートバス
- 浴室暖房
- 浴室乾燥機
- 浴室に窓
- トイレ
- トイレ2箇所
- 温水洗浄便座
- 室内洗濯機置場
- 洗髪洗面化粧台
- 洗面所独立
- リビング階段
- モニタ付インターホン
- セキュリティシステム
- LDK18畳以上
- 3面採光
- 全室2面採光
- フローリング
- 全室フローリング
- クローゼット3箇所
- ウォークインクローゼット
- 全居室収納
- 庭
物件の特徴
- 2沿線利用可
- 前道6m以上
- 緑豊かな住宅地
- 閑静な住宅街
- 通風良好
- 陽当り良好
- 2階建
- 開発分譲地内
- 即入居可
物件詳細情報
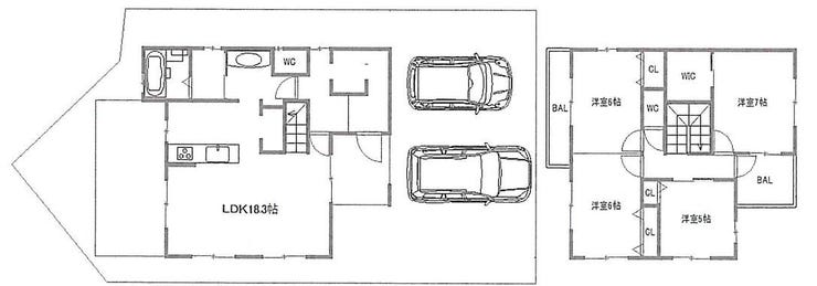
| 価格 | 3,880万円 | 間取り | 4LDK |
|---|---|---|---|
| 物件種別 | 新築一戸建て | ||
| 所在地 | 大阪府東大阪市善根寺町1丁目 | ||
| アクセス |
|
||
| 建物面積 | 公107.02㎡ | 駐車場 | あり 普通:2台 |
| 築年月 | 2024年(令和6年)12月築 | 建築確認 | |
| 建物構造 | 木造 2階建 | 工法 | |
| 主要採光 | 東向 | バルコニー | |
| 保証・評価 | |||
| 土地面積 | 公161.4㎡(48.82坪) | 接道 | 東側幅 約6.7m 間口 約10.00m |
| 私道 | セットバック | ||
| 地目 | 宅地 | 地勢 | 傾斜地 |
| 権利 | 所有権 |
||
| 都市計画 | 市街化区域 |
用途地域 | 1種低層 |
| 建ぺい/容積率 | 60% / 150% | 土地国土法 | |
| 許可番号 | 建築基準法 | ||
| 法令制限 | 準防火地域 | ||
| 小学区 | 孔舎衙東小学校 徒歩9分 (約700m) | 中学区 | 孔舎衙中学校 徒歩6分 (約450m) |
| 現況 | 空 | 引渡 | 即 |
| その他費用 | |||
| 周辺環境 | 東大阪市立孔舎衙東小学校 徒歩9分 (約650m) 東大阪市立孔舎衙中学校 徒歩144分 (約11470m) セブンイレブン 東大阪善根寺町3丁目店 徒歩17分 (約1290m) 万代 善根寺店 徒歩14分 (約1060m) ココカラファイン 日下店 徒歩18分 (約1380m) 阪奈病院 徒歩30分 (約2380m) 東大阪日下郵便局 徒歩15分 (約1190m) JA大阪中河内 孔舎衙支店 徒歩13分 (約1030m) ビオスキッズ山の手保育園 徒歩144分 (約11470m) 善根寺東第2公園 徒歩144分 (約11470m) |
||
| 備考 | ・外構費用別途100万円(税込) ・表題表記・司法書士:売主指定 |
||
| 物件番号 | 4255711 | 取引態様 | 媒介 |
取扱店舗情報
| 電話番号 | 06-6167-8666 |
|---|---|
| 所在地 | 〒535-0005 大阪府大阪市旭区赤川2丁目2-4 PHOERME城北公園1階 |
| 営業時間 | 9:00~18:00 |
| 定休日 | |
| 宅建免許番号 | 大阪府知事(1)第64057号 |
| アクセス | 店舗への地図はこちら |

来店ご予約
大阪府東大阪市で価格が似ている物件はこちら
- 大阪府
マイページ物件数 - 16,153件
最近見た物件
-
-

-
- 中古マンション
- 1,298万円
-
名古屋市天白区笹原町
-
名古屋市桜通線野並
-
大阪府新築一戸建て新着物件
-
-

-
- 新築一戸建て
- 4,480万円
-
豊中市曽根南町3丁目
-
阪急電鉄宝塚線曽根駅
-
-
-

-
- 新築一戸建て
- 5,490万円
-
豊中市螢池東町3丁目
-
阪急電鉄宝塚線蛍池駅
-
-
-

-
- 新築一戸建て
- 4,980万円
-
茨木市鮎川1丁目
-
阪急電鉄京都線茨木市駅
-
-
-

-
- 新築一戸建て
- 4,399万円
-
高槻市春日町
-
阪急電鉄京都線高槻市駅
-
-
-

-
- 新築一戸建て
- 3,180万円
-
東大阪市花園東町2丁目
-
近鉄難波・奈良線東花園駅
-
-
-

-
- 新築一戸建て
- 2,990万円
-
貝塚市脇浜4丁目
-
南海電鉄本線二色浜駅
-
-
-

-
- 新築一戸建て
- 4,290万円
-
高槻市栄町4丁目
-
阪急電鉄京都線富田駅
-
- お近くの店舗を探す
-
おすすめ物件
-
-

-
- 新築一戸建て
- 3,080万円
-
高槻市西町
-
阪急電鉄京都線富田
-
-
-

-
- 新築一戸建て
- 3,850万円
-
泉大津市昭和町
-
南海電鉄本線泉大津
-
-
-

-
- 新築一戸建て
- 3,480万円
-
茨木市新和町
-
阪急電鉄京都線南茨木
-
-
-

-
- 新築一戸建て
- 5,180万円
-
高槻市北昭和台町
-
阪急電鉄京都線総持寺
-
-
-

-
- 新築一戸建て
- 4,800万円
-
高槻市日吉台四番町
-
JR東海道線高槻
-
-
-

-
- 新築一戸建て
- 3,480万円
-
茨木市橋の内1丁目
-
阪急電鉄京都線総持寺
-
-
-

-
- 新築一戸建て
- 5,080万円
-
大阪市住之江区粉浜西3丁目
-
南海電鉄本線住吉大社
-
-
-

-
- 新築一戸建て
- 5,998万円
-
高槻市川西町3丁目
-
JR東海道線高槻
-
-
-

-
- 新築一戸建て
- 3,899万円
-
高槻市川西町1丁目
-
JR東海道線高槻
-
-
-

-
- 新築一戸建て
- 2,380万円
-
松原市天美北3丁目
-
近鉄南大阪線河内天美
-






























担当エージェント:日野 蓮太郎
●弊社について
弊社は不動産売買専門の仲介会社とし、全国700店舗展開中のハウスドゥ城北公園でございます。
大阪市、守口市、門真市を中心に物件のご提案をさせていただいております。
購入・売却に関する様々なご相談承っております。
弊社は他社様が掲載されている物件でもご紹介可能です。お気軽にご相談くださいませ。