霧島市国分剣之宇都町の新築戸建
掲載情報更新日:2026年04月14日 次回更新予定日:2026年04月28日
- 2,880万円
-
- 借入ご希望金額
万円 - 借入期間
年 - 借入金利
% - 月々のお支払い金額
円
- 借入ご希望金額
※ 月々のお支払例は目安の試算となりますので、実際の金額とは異なる場合がございます。詳しくは店舗までお問合わせください。
- 霧島市国分剣之宇都町
-
JR肥薩線『日当山』 徒歩33分 (約2640m)
霧島市国分剣之宇都町一戸建て | 物件情報
霧島市国分剣之宇都町に建売が登場!! 日当たりも良好 周辺には買い物施設も充実しています!
駐車3台可!!
・ドラッグストアモリ 剣之宇都店・・・徒歩約4分(約350m)
・鮮ど市場 霧島店・・・徒歩約3分(約350m)
・セブンイレブン 霧島姫城店・・・徒歩約10分(850m)
・日当山小学校・・・徒歩約15分(約1300m)
・日当山中学校・・・徒歩約18分(約1500m)
物件の設備
- 電気
- オール電化
- 上水道
- 公営水道
- 浄化槽
- 個別浄化槽
- 給湯
- 食器洗浄乾燥機
- IHクッキングヒータ
- 電気コンロ
- コンロ二口
- グリル
- システムキッチン
- バス
- オートバス
- バス1坪以上
- 追焚機能
- 浴室暖房
- 浴室乾燥機
- トイレ
- 温水洗浄便座
- 室内洗濯機置場
- 洗髪洗面化粧台
- エアコン
- 照明器具
- ダウンライト
- 人感照明センサー
- 省エネ給湯器
- ディンプルキー
- モニタ付インターホン
- 火災警報器/報知機
- LDK20畳以上
- 和室
- 2面採光
- 天井高2.5m以上
- 全居室複層ガラス
- フローリング
- クッションフロア
- 24時間換気システム
- 網戸
- クローゼット2箇所
- ウォークインクローゼット
- シューズインクローク
物件の特徴
- 南向
- 高断熱住宅
- 南側道路面す
- スーパーが近い
- 山が見える
- 陽当り良好
- 外壁サイディング
- 建築確認完了検査済証
- BELS/省エネ基準適合
- 省エネルギー対策
物件詳細情報
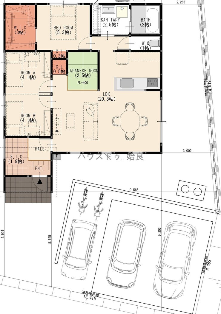
| 価格 | 2,880万円 | 間取り | 3LDK |
|---|---|---|---|
| 物件種別 | 新築一戸建て | ||
| 所在地 | 鹿児島県霧島市国分剣之宇都町 | ||
| アクセス |
|
||
| 建物面積 | 実82.39㎡ | 駐車場 | あり 普通:3台 軽:1台 |
| 築年月 | 2026年(令和8年)06月予定 | 建築確認 | 第2023霧建099号 |
| 建物構造 | 木造 1階建 | 工法 | |
| 主要採光 | 東向 | バルコニー | |
| 保証・評価 | |||
| 土地面積 | 公239.52㎡(72.45坪) | 接道 | 南側(公道)幅 約5.0m 間口 約12.41m |
| 私道 | セットバック | ||
| 地目 | 宅地 | 地勢 | |
| 権利 | 所有権 |
||
| 都市計画 | 非線引区域 |
用途地域 | 指定無 |
| 建ぺい/容積率 | 70% / 300% | 土地国土法 | |
| 許可番号 | 建築基準法 | ||
| 法令制限 | |||
| 小学区 | 日当山小学校 徒歩17分 (約1300m) | 中学区 | 日当山中学校 徒歩19分 (約1500m) |
| 現況 | 未着工 | 引渡 | 未記入 |
| その他費用 | |||
| 周辺環境 | 鮮ど市場霧島店 徒歩4分 (約300m) ドラッグストアモリ剣之宇都店 徒歩5分 (約380m) セブンイレブン隼人姫城店 徒歩12分 (約940m) 日当山小学校 徒歩17分 (約1290m) 日当山中学校 徒歩20分 (約1550m) |
||
| 備考 | |||
| 物件番号 | 4257777 | 取引態様 | 売主 |
取扱店舗情報
| 電話番号 | 0995-73-3778 |
|---|---|
| 所在地 | 〒899-5431 鹿児島県姶良市西餅田134番地14 |
| 営業時間 | 8:30~17:30 |
| 定休日 | 水曜日、木曜日 |
| 宅建免許番号 | 鹿児島県知事(4)第5597号 |
| アクセス | 店舗への地図はこちら |

来店ご予約
鹿児島県霧島市で価格が似ている物件はこちら
- 鹿児島県
マイページ物件数 - 5,762件
最近見た物件
-
-

-
- 中古一戸建て
- 1,340万円
-
泉南市信達市場
-
JR阪和線和泉砂川
-
-
-

-
- 中古一戸建て
- 1,250万円
-
伊達市舟岡町
-
JR室蘭本線北舟岡
-
-
-

-
- 中古マンション
- 1,599万円
-
名古屋市千種区星が丘元町
-
名古屋市東山線星ヶ丘
-
鹿児島県新築一戸建て新着物件
-
-

-
- 新築一戸建て
- 2,480万円
-
鹿児島市自由ヶ丘1丁目
-
JR指宿枕崎線谷山駅
-
-
-

-
- 新築一戸建て
- 3,898万円
-
鹿児島市紫原6丁目
-
鹿交紫原七丁目
-
-
-

-
- 新築一戸建て
- 3,998万円
-
鹿児島市紫原6丁目
-
鹿交紫原七丁目
-
-
-

-
- 新築一戸建て
- 3,898万円
-
鹿児島市紫原6丁目
-
鹿交紫原七丁目
-
-
-

-
- 新築一戸建て
- 2,980万円
-
鹿児島市西坂元町
-
JR鹿児島本線鹿児島駅
-
-
-

-
- 新築一戸建て
- 2,980万円
-
鹿児島市西坂元町
-
鹿交西坂元公民館前バス停
-
-
-

-
- 新築一戸建て
- 2,480万円
-
鹿児島市自由ヶ丘1丁目
-
JR九州新幹線鹿児島中央駅
-
- お近くの店舗を探す
-
おすすめ物件
-
-

-
- 新築一戸建て
- 2,480万円
-
鹿児島市石谷町
-
南国健生苑バス停
-
-
-

-
- 新築一戸建て
- 3,190万円
-
鹿児島市吉野町
-
南国特別支援学校前バス停
-
-
-

-
- 新築一戸建て
- 3,380万円
-
鹿児島市城山1丁目
-
市営座禅石公園バス停
-
-
-

-
- 新築一戸建て
- 2,760万円
-
鹿児島市坂之上2丁目
-
JR指宿枕崎線坂之上
-
-
-

-
- 新築一戸建て
- 2,980万円
-
鹿児島市下伊敷3丁目
-
JR九州新幹線鹿児島中央
-
-
-

-
- 新築一戸建て
- 3,580万円
-
鹿児島市田上5丁目
-
JR日豊本線鹿児島中央
-
-
-

-
- 新築一戸建て
- 2,098万円
-
鹿児島市吉野町
-
南国松十文字バス停
-
-
-

-
- 新築一戸建て
- 3,898万円
-
鹿児島市下荒田4丁目
-
市電谷山線騎射場
-
-
-

-
- 新築一戸建て
- 2,980万円
-
鹿児島市東坂元4丁目
-
南国辻ヶ丘団地バス停
-
-
-

-
- 新築一戸建て
- 2,280万円
-
鹿児島市伊敷7丁目
-
JR九州新幹線鹿児島中央
-















(事前に必ず予約してください)
時間/10:00~17:30
現地案内会(事前に必ずお問合せください)
時間/10:00~17:30(時間外でのご希望もお気軽にご相談ください)
ご相談の所要時間や内容は下記をご参考にしてください
◆現地・物件ご見学(20分~)
◆ご希望条件のご相談(15分~)
◆資金計画のご相談(15分~)
◆住宅ローンのお話(15分~)
◆土地・家の探し方のご相談(30分~)
〇現地ご見学会を随時受け付けております。
〇お客様のご都合に合わせて「知りたい情報だけ」という短時間のご案内も可能です!
〇場所がわからない方は、近くの分かりやすい場所からご一緒にご案内します♪
〇事前にこんな情報が欲しい!こんなことを聞いてみたい!といったお声などもお気軽にお寄せください!
※ Googleマップの位置は目安になります。当日は旗・看板等を目安にご来場ください