島尻郡八重瀬町字具志頭の新築戸建
掲載情報更新日:2025年10月17日 次回更新予定日:2025年10月31日
- 2,730万円
-
- 借入ご希望金額
万円 - 借入期間
年 - 借入金利
% - 月々のお支払い金額
円
- 借入ご希望金額
※ 月々のお支払例は目安の試算となりますので、実際の金額とは異なる場合がございます。詳しくは店舗までお問合わせください。
- 島尻郡八重瀬町字具志頭
-
『具志頭バス停』 徒歩3分 (約240m)
島尻郡八重瀬町字具志頭一戸建て | 物件情報
物件の設備
- 上水道
- 下水道
- プロパンガス
- 浄水器
- カウンターキッチン
- システムキッチン
- 浴室乾燥機
- トイレ2箇所
- 温水洗浄便座
- 洗髪洗面化粧台
- モニタ付インターホン
- ウォークインクローゼット
- 床下収納
物件詳細情報
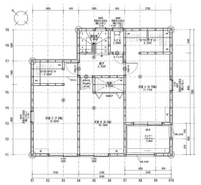
価格 | 2,730万円 | 間取り | 3LDK |
---|---|---|---|
物件種別 | 新築一戸建て | ||
所在地 | 沖縄県島尻郡八重瀬町字具志頭 | ||
アクセス |
|
||
建物面積 | 106.82㎡ | 駐車場 | あり 普通:2台 |
築年月 | 2025年(令和7年)08月予定 | 建築確認 | 八重第34号 |
建物構造 | 木造 | 工法 | |
主要採光 | バルコニー | ||
保証・評価 | |||
土地面積 | 135.6㎡(41.01坪) | 接道 | |
私道 | セットバック | ||
地目 | 宅地 | 地勢 | |
権利 | |||
都市計画 | 区域外 |
用途地域 | |
建ぺい/容積率 | 40% / 80% | 土地国土法 | |
許可番号 | 建築基準法 | ||
法令制限 | |||
小学区 | 具志頭小学校 徒歩7分 (約540m) | 中学区 | 具志頭中学校 徒歩8分 (約610m) |
現況 | 建築中 | 引渡 | 期日指定:2025年08月31日 |
その他費用 | |||
周辺環境 | 八重瀬町立具志頭小学校 徒歩7分 (約540m) 八重瀬町立具志頭中学校 徒歩8分 (約610m) ローソン 八重瀬玻名城店 徒歩11分 (約860m) ローソン 向陽高校前店 徒歩18分 (約1420m) 沖縄県立向陽高等学校 徒歩18分 (約1410m) 沖縄県立南部工業高等学校 徒歩39分 (約3070m) |
||
備考 | |||
物件番号 | 4261183 | 取引態様 | 媒介 |
取扱店舗情報
ハウスドゥ 八重瀬・南城 creates champs株式会社 店舗詳細ページへ
電話番号 | 098-960-8880 |
---|---|
所在地 | 〒901-0412 沖縄県島尻郡八重瀬町字上田原11-1 NK5 1-A |
営業時間 | 9:30~18:30 |
定休日 | 水曜日、年末年始 |
宅建免許番号 | 沖縄県知事(1)第5727号 |
アクセス | 店舗への地図はこちら |
来店ご予約
沖縄県島尻郡八重瀬町で価格が似ている物件はこちら
- 沖縄県
マイページ物件数 - 4,169件
最近見た物件
-
-
-
- 中古マンション
- 4,780万円
-
大阪市西区川口2丁目
-
大阪市中央線阿波座
-
-
-
-
- 中古マンション
- 3,680万円
-
島尻郡南風原町字宮平
-
当間原 徒歩約
-
-
-
-
- 中古マンション
- 4,498万円
-
浦添市牧港5丁目
-
沖縄都市モノレール浦添前田
-
沖縄県新築一戸建て新着物件
- お近くの店舗を探す
-
おすすめ物件
-
-
-
- 新築一戸建て
- 1億1,800万円
-
豊見城市字豊崎
-
アウトレットモールあしびなー前
-
-
-
-
- 新築一戸建て
- 4,590万円
-
豊見城市字根差部
-
根差部バス停
-
-
-
-
- 新築一戸建て
- 5,280万円
-
中頭郡北谷町字桑江
-
バス停高宮城バス停前
-
-
-
-
- 新築一戸建て
- 3,898万円
-
糸満市字大里
-
大里 バス停
-
-
-
-
- 新築一戸建て
- 3,690万円
-
豊見城市字饒波
-
団地内郵便局前バス停
-
-
-
-
- 新築一戸建て
- 3,698万円
-
国頭郡今帰仁村字平敷
-
平敷バス停
-
-
-
-
- 新築一戸建て
- 4,898万円
-
豊見城市字我那覇
-
松川
-
-
-
-
- 新築一戸建て
- 3,498万円
-
国頭郡宜野座村字松田
-
松田小学校前バス停
-
-
-
-
- 新築一戸建て
- 3,790万円
-
豊見城市字饒波
-
団地内郵便局前バス停
-
-
-
-
- 新築一戸建て
- 4,280万円
-
那覇市具志2丁目
-
沖縄都市モノレール赤嶺
-