相模原市中央区青葉2丁目の新築戸建
掲載情報更新日:2025年10月25日 次回更新予定日:2025年11月08日
- 3,380万円
-
- 借入ご希望金額
万円 - 借入期間
年 - 借入金利
% - 月々のお支払い金額
円
- 借入ご希望金額
※ 月々のお支払例は目安の試算となりますので、実際の金額とは異なる場合がございます。詳しくは店舗までお問合わせください。
- 相模原市中央区青葉2丁目
-
JR横浜線『淵野辺』 バス乗車11分 淵野辺公園 停 徒歩5分 (約400m)
相模原市中央区青葉2丁目一戸建て | 物件情報
物件の設備
- 都市ガス
- 浄水器
- 食器洗浄乾燥機
- TV付バス
- 浴室乾燥機
- 浴室に窓
- トイレ2箇所
- 室内洗濯機置場
- カードキー
- モニタ付インターホン
- LDK20畳以上
- フローリング
- クローゼット
- 床下収納
- 全居室収納
- 屋根裏収納
- シューズボックス
- L字型バルコニー
- 2WAYバルコニー
物件の特徴
- スーパーが近い
- 2階建
物件詳細情報
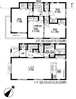
| 価格 | 3,380万円 | 間取り | 4LDK |
|---|---|---|---|
| 物件種別 | 新築一戸建て | ||
| 所在地 | 神奈川県相模原市中央区青葉2丁目 2号棟/4区画 | ||
| アクセス |
|
||
| 建物面積 | 公100.82㎡ | 駐車場 | なし |
| 築年月 | 2025年(令和7年)12月予定 | 建築確認 | 第25UDI1K建00156号 |
| 建物構造 | 木造 2階建 | 工法 | |
| 主要採光 | バルコニー | ||
| 保証・評価 | |||
| 分譲情報 | 【販売戸数】:4戸 【価格】:3,380万円 ~3,580万円 |
||
| 土地面積 | 公102.11㎡(30.88坪) | 接道 | |
| 私道 | セットバック | ||
| 地目 | 畑 | 地勢 | |
| 権利 | 所有権 |
||
| 都市計画 | 市街化区域 |
用途地域 | 1種住居 |
| 建ぺい/容積率 | 60% / 200% | 土地国土法 | |
| 許可番号 | 建築基準法 | ||
| 法令制限 | 準防火地域 | ||
| 小学区 | 光が丘小学校 徒歩25分 (約1965m) | 中学区 | 緑が丘中学校 徒歩13分 (約1000m) |
| 現況 | 建築中 | 引渡 | 期日指定:2025年12月下旬 |
| その他費用 | |||
| 備考 | ■和泉保育園・・・約149m(徒歩2分) ■星が丘幼稚園・・・約2500m(徒歩31分) ■JA直売所 JA相模原市 直売所ベジたべーな・・・約201m(徒歩3分) ■ファミリーマート 相模原緑が丘店・・・約504m(徒歩7分) ■クリエイトエスディー 相模原青葉店・・・約288m(徒歩4分) ■青葉ふたまたクリニック・・・約174m(徒歩3分) ■若葉公園・・・約64m(徒歩1分) |
||
| 物件番号 | 4272443 | 取引態様 | 媒介 |
取扱店舗情報
ハウスドゥ!相模原横山台店 夢のなかまたち株式会社 店舗詳細ページへ
| 電話番号 | 042-851-3970 |
|---|---|
| 所在地 | 〒252-0241 神奈川県相模原市中央区横山台2丁目13番1号1F |
| 営業時間 | 9:00~18:00 |
| 定休日 | 火曜日、水曜日 |
| 宅建免許番号 | 神奈川県知事(2)第30659号 |
| アクセス | 店舗への地図はこちら |

来店ご予約
神奈川県相模原市中央区で価格が似ている物件はこちら
- 神奈川県
マイページ物件数 - 3,188件
最近見た物件
-
-

-
- 新築一戸建て
- 3,350万円
-
相模原市中央区田名
-
JR相模線橋本
-
-
-

-
- 土地
- 973万円
-
松山市西垣生町
-
木材団地口
-
-
-

-
- 土地
- 800万円
-
明石市大久保町谷八木
-
山陽電鉄本線中八木
-
神奈川県新築一戸建て新着物件
- お近くの店舗を探す
-












