和泉市和気町1丁目の新築戸建
掲載情報更新日:2026年04月08日 次回更新予定日:2026年04月22日
- 2,080万円
-
- 借入ご希望金額
万円 - 借入期間
年 - 借入金利
% - 月々のお支払い金額
円
- 借入ご希望金額
※ 月々のお支払例は目安の試算となりますので、実際の金額とは異なる場合がございます。詳しくは店舗までお問合わせください。
- 和泉市和気町1丁目
-
JR阪和線『和泉府中』 バス乗車7分 和気 停 徒歩7分 (約560m)
JR阪和線『和泉府中』 徒歩21分 (約1630m)
南海電鉄泉北線『和泉中央』 バス乗車13分 和気 停 徒歩5分 (約400m)
和泉市和気町1丁目一戸建て | 物件情報
一緒におうち探ししてみませんか?迷ったらこちらへ→検索♪【ハウスドゥ和泉和気】でお待ちしております
(店舗情報)
ハウスドゥ和泉和気では和泉市の物件をマイページにて公開中!
物件情報に加え、お家探しに役立つコンテンツをご紹介します。
まずは物件の『資料請求』をクリック!
https://izumiwake-housedo.com
お急ぎの方はコチラからどうぞ!■0120-30-3008■
お気軽にご相談ください!
物件の設備
- 上水道
- 公共下水
- 都市ガス
- 食器洗浄乾燥機
- コンロ三口
- システムキッチン
- バス
- 追焚機能
- 浴室乾燥機
- トイレ
- トイレ2箇所
- 温水洗浄便座
- 室内洗濯機置場
- 洗髪洗面化粧台
- 洗面所独立
- 省エネ給湯器
- モニタ付インターホン
- 複層ガラス
- 全室フローリング
- クローゼット
- 全居室収納
- シューズインクローク
- 2面バルコニー
物件の特徴
- 南向
- 地盤調査済
- 耐震構造
- 総合病院徒歩10分以内
- 小学校徒歩10分以内
- 閑静な住宅街
- 市街地が近い
- 3階建以上
- バリアフリー
- 建築確認完了検査済証
- 省エネルギー対策
- 即入居可
- フラット35Sに対応
物件詳細情報
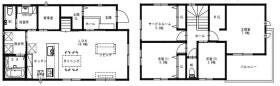
| 価格 | 2,080万円 | 間取り | 3LDK |
|---|---|---|---|
| 物件種別 | 新築一戸建て | ||
| 所在地 | 大阪府和泉市和気町1丁目 | ||
| アクセス |
|
||
| 建物面積 | 公77.76㎡ | 駐車場 | あり 普通:1台 |
| 築年月 | 2025年(令和7年)06月築 | 建築確認 | 第OKBC22C01-02144 |
| 建物構造 | 木造 3階建 | 工法 | |
| 主要採光 | バルコニー | ||
| 保証・評価 | |||
| 土地面積 | 公47.31㎡(14.31坪) | 接道 | 北西側(公道)幅 約4.0m 間口 約4.16m |
| 私道 | セットバック | ||
| 地目 | 宅地 | 地勢 | |
| 権利 | 所有権 |
||
| 都市計画 | 市街化区域 |
用途地域 | 1種中高 |
| 建ぺい/容積率 | 60% / 200% | 土地国土法 | |
| 許可番号 | 建築基準法 | ||
| 法令制限 | 準防火地域 | ||
| 小学区 | 和気小学校 徒歩8分 (約610m) | 中学区 | 郷荘中学校 徒歩14分 (約1110m) |
| 現況 | 完工済 | 引渡 | 即 |
| その他費用 | |||
| 周辺環境 | すいせん保育園 徒歩4分 (約270m) ウエルシア和泉和気店 徒歩7分 (約490m) 和泉市立和気小学校 徒歩8分 (約610m) ドラッグストアコスモス和泉和気店 徒歩9分 (約690m) セブンイレブン和泉小田店 徒歩9分 (約720m) 和泉市立総合医療センター 徒歩11分 (約850m) スギ薬局和泉府中東店 徒歩12分 (約940m) セブンイレブン和泉桑原町店 徒歩12分 (約940m) 和泉市立国府幼稚園 徒歩14分 (約1060m) 和泉市立郷荘中学校 徒歩14分 (約1110m) |
||
| 備考 | 外構費込み、オープンハウス開催中 | ||
| 物件番号 | 4291590 | 取引態様 | 媒介 |
取扱店舗情報
ハウスドゥ 和泉和気 株式会社エムアンドエム 店舗詳細ページへ
| 電話番号 | 0725-90-7373 |
|---|---|
| 所在地 | 〒594-0073 大阪府和泉市和気町1丁目26-51 |
| 営業時間 | 9:00~18:00 |
| 定休日 | 水曜日、年末年始 |
| 宅建免許番号 | 大阪府知事(1)第66315号 |
| アクセス | 店舗への地図はこちら |

来店ご予約
大阪府和泉市で価格が似ている物件はこちら
- 大阪府
マイページ物件数 - 18,247件
最近見た物件
-
-

-
- 中古一戸建て
- 850万円
-
守口市八雲中町1丁目
-
大阪市谷町線守口
-
-
-

-
- 中古一戸建て
- 4,000万円
-
大分市大字里
-
JR日豊本線坂ノ市
-
-
-

-
- 土地
- 1,590万円
-
名古屋市緑区大将ケ根1丁目
-
名鉄名古屋本線中京競馬場前
-
大阪府新築一戸建て新着物件
-
-

-
- 新築一戸建て
- 3,990万円
-
高槻市寿町3丁目
-
阪急電鉄京都線富田駅
-
-
-

-
- 新築一戸建て
- 2,990万円
-
東大阪市小若江3丁目
-
近鉄大阪線長瀬駅
-
-
-

-
- 新築一戸建て
- 4,498万円
-
八尾市久宝園2丁目
-
近鉄大阪線久宝寺口駅
-
-
-

-
- 新築一戸建て
- 3,980万円
-
八尾市南太子堂6丁目
-
JR関西本線久宝寺駅
-
-
-

-
- 新築一戸建て
- 4,580万円
-
大阪市鶴見区緑3丁目
-
大阪市今里筋線新森古市駅
-
-
-

-
- 新築一戸建て
- 3,880万円
-
高槻市唐崎中1丁目
-
阪急電鉄京都線高槻市駅
-
-
-

-
- 新築一戸建て
- 2,680万円
-
岸和田市岡山町
-
JR阪和線久米田駅
-
- お近くの店舗を探す
-
おすすめ物件
-
-

-
- 新築一戸建て
- 3,980万円
-
大阪市住之江区北島3丁目
-
南海電鉄本線住ノ江
-
-
-

-
- 新築一戸建て
- 4,350万円
-
東大阪市新家2丁目
-
大阪市中央線長田
-
-
-

-
- 新築一戸建て
- 3,480万円
-
高槻市津之江町2丁目
-
JR東海道線摂津富田
-
-
-

-
- 新築一戸建て
- 4,680万円
-
堺市北区百舌鳥本町2丁
-
JR阪和線百舌鳥
-
-
-

-
- 新築一戸建て
- 3,680万円
-
高槻市安岡寺町2丁目
-
JR東海道線高槻
-
-
-

-
- 新築一戸建て
- 3,480万円
-
大阪市東住吉区住道矢田4丁目
-
近鉄南大阪線矢田
-
-
-

-
- 新築一戸建て
- 3,080万円
-
泉大津市下条町
-
南海電鉄本線泉大津
-
-
-

-
- 新築一戸建て
- 4,198万円
-
摂津市三島2丁目
-
大阪モノレール摂津
-
-
-

-
- 新築一戸建て
- 3,480万円
-
高槻市津之江町2丁目
-
JR東海道線摂津富田
-
-
-

-
- 新築一戸建て
- 3,290万円
-
摂津市南別府町
-
大阪市今里筋線井高野
-



































担当エージェント:髙田 雅
家を買うなら【ハウスドゥ和泉和気】へ!
■同エリアのHP未掲載物件も同時にご紹介いたします!
■不動産の購入・売却・建築、住宅ローンのご相談ならハウスドゥ和泉和気にお任せください!
■駐車場5台以上完備!
■キッズスペースもございます。小さなお子さまもご一緒にお家探しをしましょう!
電話でのお問合せはこちら!
↓↓
0120-30-3008
お気軽にご相談ください!