熊本市北区明徳町の新築戸建
掲載情報更新日:2026年03月15日 次回更新予定日:2026年03月29日
- 2,980万円
-
- 借入ご希望金額
万円 - 借入期間
年 - 借入金利
% - 月々のお支払い金額
円
- 借入ご希望金額
※ 月々のお支払例は目安の試算となりますので、実際の金額とは異なる場合がございます。詳しくは店舗までお問合わせください。
- 熊本市北区明徳町
-
JR鹿児島本線『植木』 徒歩38分 (約3000m)
熊本電気鉄道『熊本高専前』 徒歩67分 (約5300m)
『向坂』 徒歩14分 (約1100m)
熊本市北区明徳町一戸建て | 物件情報
《一気見ツアー今すぐOK》☆ご成約で9万円以内のお好きな家具家電等プレゼント♪(当社から指定なし)
【内覧ツアー×最安値保証】ネットの物件、すべて当社で紹介可能!交渉力で「理想の価格」を叶えます
☆9万円以内のお好きな家具家電等プレゼント!※景品表示法の範囲内でプレゼント!
売主様への価格交渉も得意なので、どこよりもお安くご購入いただけるよう徹底サポートします!
他社様でお見積もりを取った後でも大丈夫!もっと安く買えるのでは?そんな悩みは当社が解決します
【内覧ツアー】
熊本県内全域の気になる物件をすべて当社でご内覧いただける『内覧ツアー』を実施中☆
新築・中古・中古マンションも!見学されたい物件を1日で内覧可能♪
窓口を一つに絞れるから、手間も時間もかかりません。
【最安値保証】
\最 安 値 徹 底 宣 言/
他社様よりも必ずお得にご購入いただけることをお約束します
当社ではオプション費用(エアコン、網戸、太陽光等)もお客様に代わり相見積もりします
トータルの費用が100万円以上変わることも!
全国700店舗以上展開!
ハウスドゥだからこその豊富な物件数・情報量でお客様のお家選びをトータルサポートいたします!
物件の設備
- 電気
- オール電化
- 上水道
- 公営水道
- 下水道
- 公共下水
- 給湯
- 浄水器
- 食器乾燥機
- 食器洗浄乾燥機
- IHクッキングヒータ
- コンロ三口
- グリル
- カウンターキッチン
- システムキッチン
- バス
- ユニットバス
- バス1坪以上
- 追焚機能
- 浴室暖房
- 浴室乾燥機
- トイレ
- トイレ2箇所
- 温水洗浄便座
- 室内洗濯機置場
- 洗髪洗面化粧台
- 洗面所独立
- ダウンライト
- リビング階段
- 省エネ給湯器
- ディンプルキー
- ダブルロックキー
- モニタ付インターホン
- 火災警報器/報知機
- LDK15畳以上
- 複層ガラス
- 全居室複層ガラス
- フローリング
- 全室フローリング
- シャッター雨戸
- 24時間換気システム
- 網戸
- クローゼット
- クローゼット3箇所
- ウォークインクローゼット
- ウォークインクローゼット2箇所
- 床下収納
- 全居室収納
- シューズボックス
- 庭
物件の特徴
- 制震構造
- 2沿線利用可
- 閑静な住宅街
- 通風良好
- 陽当り良好
- 2階建
物件詳細情報
| 価格 | 2,980万円 | 間取り | 4LDK |
|---|---|---|---|
| 物件種別 | 新築一戸建て | ||
| 所在地 | 熊本県熊本市北区明徳町904付近 3号地 | ||
| アクセス |
|
||
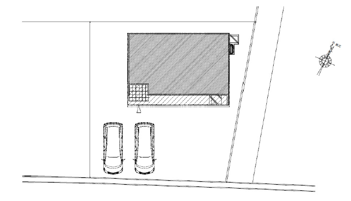
| 建物面積 | 105.98㎡ | 駐車場 | あり 普通:2台 |
| 築年月 | 2025年(令和7年)07月築 | 建築確認 | 第ACS第240570号 |
| 建物構造 | 木造 2階建 | 工法 | |
| 主要採光 | バルコニー | ||
| 保証・評価 | |||
| 土地面積 | 200.24㎡(60.57坪) | 接道 | |
| 私道 | セットバック | ||
| 地目 | 宅地 | 地勢 | |
| 権利 | 所有権 |
||
| 都市計画 | 調整区域 開発許可等による分譲地内 |
用途地域 | 指定無 |
| 建ぺい/容積率 | 40% / 80% | 土地国土法 | |
| 許可番号 | 建築基準法 | ||
| 法令制限 | 下水道処理区域 | ||
| 小学区 | 川上小学校 徒歩28分 (約2200m) | 中学区 | 北部中学校 徒歩32分 (約2500m) |
| 現況 | 完工済 | 引渡 | 期日指定:2025年07月上旬 |
| その他費用 | |||
| 周辺環境 | 川上小学校 徒歩28分 (約2200m) 北部中学校 徒歩32分 (約2500m) 梶尾保育園 徒歩35分 (約2770m) セブン-イレブン 熊本鹿子木町店 徒歩23分 (約1790m) ディスカウントドラッグコスモス 植木南店 徒歩22分 (約1710m) 業務スーパー植木店 徒歩32分 (約2530m) グッデイ 植木店 徒歩16分 (約1280m) 北部郵便局 徒歩32分 (約2520m) 熊本銀行 植木支店 徒歩31分 (約2430m) 北部まちづくりセンター 徒歩29分 (約2270m) |
||
| 備考 | ・川上小学校まで徒歩28分(約2200m) ・熊本市立 北部中学校まで徒歩32分(約2500m) ・梶尾保育園まで徒歩35分(約2770m) ・セブン-イレブン 熊本鹿子木町店まで徒歩23分(約1790m) ・ディスカウントドラッグコスモス植木南店まで徒歩22分(約1710m) ・業務スーパー植木店まで徒歩32分(約2530m) ・グッデイ 植木店まで徒歩16分(約1280m) ・北部郵便局まで徒歩32分(約2520m) ・熊本銀行植木支店まで徒歩31分(約2430m) ・北部まちづくりセンターまで徒歩29分(約2270m) |
||
| 物件番号 | 4295213 | 取引態様 | 媒介 |
取扱店舗情報
ハウスドゥ 御幸田迎 株式会社Remado 店舗詳細ページへ
| 電話番号 | 096-243-3000 |
|---|---|
| 所在地 | 〒861-4108 熊本県熊本市南区幸田1丁目7-20 |
| 営業時間 | 10:00~18:00 |
| 定休日 | お盆、年末年始 |
| 宅建免許番号 | 熊本県知事(1)第5556号 |
| アクセス | 店舗への地図はこちら |

来店ご予約
熊本県熊本市北区で価格が似ている物件はこちら
- 熊本県
マイページ物件数 - 2,974件
熊本県新築一戸建て新着物件
-
-

-
- 新築一戸建て
- 2,990万円
-
熊本市北区麻生田5丁目
-
熊本電気鉄道須屋駅
-
-
-

-
- 新築一戸建て
- 2,590万円
-
八代市高小原町
-
JR九州新幹線新八代駅
-
-
-

-
- 新築一戸建て
- 2,690万円
-
熊本市北区西梶尾町
-
JR鹿児島本線西里駅
-
-
-

-
- 新築一戸建て
- 3,599万円
-
合志市須屋
-
熊本電気鉄道新須屋駅
-
-
-

-
- 新築一戸建て
- 3,599万円
-
合志市須屋
-
熊本電気鉄道新須屋駅
-
-
-

-
- 新築一戸建て
- 3,588万円
-
熊本市東区御領3丁目
-
JR豊肥本線東海学園前駅
-
-
-

-
- 新築一戸建て
- 3,688万円
-
熊本市東区御領3丁目
-
JR豊肥本線東海学園前駅
-
- お近くの店舗を探す
-
おすすめ物件
-
-

-
- 新築一戸建て
- 3,090万円
-
熊本市東区月出7丁目
-
JR豊肥本線水前寺
-
-
-

-
- 新築一戸建て
- 3,280万円
-
熊本市南区御幸笛田7丁目
-
JR豊肥本線南熊本
-
-
-

-
- 新築一戸建て
- 3,898万円
-
熊本市中央区帯山5丁目
-
JR豊肥本線東海学園前
-
-
-

-
- 新築一戸建て
- 2,790万円
-
熊本市南区野田2丁目
-
JR鹿児島本線川尻
-
-
-

-
- 新築一戸建て
- 3,580万円
-
熊本市東区桜木4丁目
-
熊本市健軍線健軍町
-
-
-

-
- 新築一戸建て
- 3,490万円
-
熊本市中央区国府4丁目
-
JR豊肥本線新水前寺
-
-
-

-
- 新築一戸建て
- 3,698万円
-
熊本市中央区帯山5丁目
-
JR豊肥本線東海学園前
-
-
-

-
- 新築一戸建て
- 3,298万円
-
熊本市北区清水新地1丁目
-
熊本電気鉄道堀川
-
-
-

-
- 新築一戸建て
- 2,990万円
-
熊本市南区野田2丁目
-
JR鹿児島本線川尻
-
-
-

-
- 新築一戸建て
- 3,580万円
-
熊本市西区田崎1丁目
-
熊本市健軍線田崎橋
-



























担当エージェント:片山 久瑠実
【月々の支払い例】
3000万円借り入れの場合
月々60,398円(頭金・ボーナス払いなし)
金利0.780%の場合(SBI新生銀行、金利優遇有)
変動金利 返済期間50年
※あくまで一例。条件有。
【周辺環境】
・川上小学校まで徒歩28分(約2200m)
・熊本市立 北部中学校まで徒歩32分(約2500m)
・梶尾保育園まで徒歩35分(約2770m)
・セブン-イレブン 熊本鹿子木町店まで徒歩23分(約1790m)
・ディスカウントドラッグコスモス植木南店まで徒歩22分(約1710m)
・業務スーパー植木店まで徒歩32分(約2530m)
・グッデイ 植木店まで徒歩16分(約1280m)
・北部郵便局まで徒歩32分(約2520m)
・熊本銀行植木支店まで徒歩31分(約2430m)
・北部まちづくりセンターまで徒歩29分(約2270m)
いつでもお気軽にご連絡ください☆彡
お問い合わせは『株式会社Remado』まで♪