伊予郡松前町大字筒井の新築戸建
掲載情報更新日:2026年03月17日 次回更新予定日:2026年03月31日
- 2,280万円
-
- 借入ご希望金額
万円 - 借入期間
年 - 借入金利
% - 月々のお支払い金額
円
- 借入ご希望金額
※ 月々のお支払例は目安の試算となりますので、実際の金額とは異なる場合がございます。詳しくは店舗までお問合わせください。
- 伊予郡松前町大字筒井
-
伊予鉄道郡中線『松前』 徒歩13分 (約1040m)
伊予郡松前町大字筒井一戸建て | 物件情報
家計と環境に優しいオール電化♪スーパー・薬局・コンビニ・銀行・公園など周辺環境充実♪全居室収納付き♪
●オール電化で快適エコライフ♪
●スーパー・薬局・コンビニ・銀行・公園など周辺環境充実♪
●駐車スペース1~2台!普通車も停められる♪
●駅まで徒歩13分!通勤や通学に便利♪
●便利な全居室収納スペース付き♪
●ご家族と会話を楽しみながらお料理が出来る対面式キッチン♪
●開放感のあるルーフバルコニー!大量の洗濯物も干す場所に困らない♪
●1階の和室は子どもたちの遊び場や来客・家事スペースなど使い方自由♪
物件の設備
- 電気
- オール電化
- 公営水道
- システムキッチン
- 浴室暖房
- 浴室乾燥機
- トイレ
- トイレ2箇所
- 洗髪洗面化粧台
- 人感照明センサー
- モニタ付インターホン
- 防犯カメラ
- LDK15畳以上
- 全居室複層ガラス
物件の特徴
- 2階建
- 即入居可
物件詳細情報
| 価格 | 2,280万円 | 間取り | 4LDK |
|---|---|---|---|
| 物件種別 | 新築一戸建て | ||
| 所在地 | 愛媛県伊予郡松前町大字筒井 2号棟 | ||
| アクセス |
|
||
| 建物面積 | 108.13㎡ | 駐車場 | あり 普通:1台 軽:1台 |
| 築年月 | 2025年(令和7年)09月築 | 建築確認 | 第R07SHC109749号 |
| 建物構造 | 木造 サイディング 2階建 | 工法 | |
| 主要採光 | バルコニー | ||
| 保証・評価 | |||
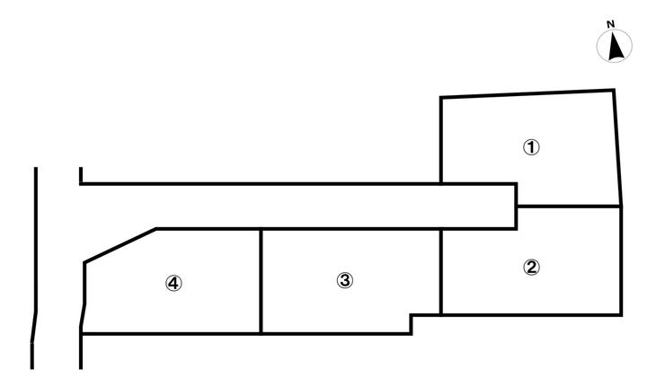
| 分譲情報 | 【販売戸数】:4戸 |
||
| 土地面積 | 137.22㎡(41.50坪) | 接道 | |
| 私道 | セットバック | ||
| 地目 | 宅地 | 地勢 | |
| 権利 | 所有権 |
||
| 都市計画 | 市街化区域 |
用途地域 | 1種住居 |
| 建ぺい/容積率 | 60%(一部70% 含む) / 172% | 土地国土法 | |
| 許可番号 | 建築基準法 | ||
| 法令制限 | |||
| 小学区 | 松前小学校 徒歩18分 (約1400m) | 中学区 | 松前中学校 徒歩17分 (約1300m) |
| 現況 | 完工済 | 引渡 | 即 |
| その他費用 | |||
| 周辺環境 | フジ松前店 徒歩5分 (約380m) 松前郵便局 徒歩7分 (約510m) くすりのレディ松前筒井店 徒歩10分 (約770m) 伊予鉄道郡中線 松前駅 徒歩13分 (約1040m) 塩屋公園 徒歩16分 (約1210m) 認定こども園コモドまさき園 徒歩14分 (約1110m) 松前中学校 徒歩17分 (約1320m) 松前町役場 徒歩15分 (約1160m) |
||
| 備考 | ●オール電化で快適エコライフ♪ ●スーパー・薬局・コンビニ・銀行・公園など周辺環境充実♪ ●駐車スペース1~2台!普通車も停められる♪ ●駅まで徒歩13分!通勤や通学に便利♪ ●便利な全居室収納スペース付き♪ ●ご家族と会話を楽しみながらお料理が出来る対面式キッチン♪ ●開放感のあるルーフバルコニー!大量の洗濯物も干す場所に困らない♪ ●1階の和室は子どもたちの遊び場や来客・家事スペースなど使い方自由♪ |
||
| 物件番号 | 4295547 | 取引態様 | 媒介 |
取扱店舗情報
| 電話番号 | 089-989-9258 |
|---|---|
| 所在地 | 〒791-3120 愛媛県伊予郡松前町筒井955番1 |
| 営業時間 | 9:30~18:00 |
| 定休日 | 水曜日、年末年始 |
| 宅建免許番号 | 愛媛県知事(6)第4310号 |
| アクセス | 店舗への地図はこちら |

来店ご予約
愛媛県伊予郡松前町で価格が似ている物件はこちら
- 愛媛県
マイページ物件数 - 3,770件
愛媛県新築一戸建て新着物件
- お近くの店舗を探す
-










































ハウスドゥ 松前・伊予は、地域密着の情報量が強みとなっておりますので、
このほかにも多数の物件情報を公開しております!
松前・伊予・松山市城南城西周辺をお探しの方はぜひ当店へお気軽にお問い合わせください♪
住宅を購入される方のほとんどが利用される住宅ローン!!!!!
どの銀行が自分に合っているのか、自分は審査に通るのか、
そもそも住宅ローンの仕組みがよくわからない方など、
不安なことや心配なことがある方はお気軽にご相談ください!
お客様一人ひとりに合った住宅ローンのご提案をさせていただきます◎
住宅を購入するためにも、勉強のためにもぜひお問い合わせください♪
この他にも、リフォームなど様々なご相談を受け付けております!
少しでも分からないこと・教えてほしいことがございましたら、お声掛けください(^^)