熊本市中央区黒髪3丁目の新築戸建
掲載情報更新日:2025年09月27日 次回更新予定日:2025年10月11日
- 2,580万円
-
- 借入ご希望金額
万円 - 借入期間
年 - 借入金利
% - 月々のお支払い金額
円
- 借入ご希望金額
※ 月々のお支払例は目安の試算となりますので、実際の金額とは異なる場合がございます。詳しくは店舗までお問合わせください。
- 熊本市中央区黒髪3丁目
-
熊本電気鉄道『黒髪町』 徒歩10分 (約800m)
熊本電気鉄道『坪井川公園』 徒歩11分 (約880m)
『済々黌前』 徒歩4分 (約320m)
熊本市中央区黒髪3丁目一戸建て | 物件情報
《本日案内可能》☆仲介手数料無料物件☆(83万円相当がお得!)お気軽にお問合せください♪
【最安値へ挑戦!】
当店は通常かかる仲介手数料(物件価格の3%+6万円)が無料!(例:3000万円の場合、90万円相当)
諸費用の中で1番大きな割合を占める『 仲介手数料 』を節約できます♪
さらに!他社様のお見積もりよりも必ずお安くご購入いただける『最安値保証』をしております!
まずはお気軽にお問合せください☆
【内覧ツアー】
熊本県内全域の気になる物件を全て当店でご内覧いただける『内覧ツアー』を実施中☆新築・中古・中古マンションも!見学されたい物件を1日で内覧可能♪忙しいお客様のお時間を無駄にさせません!
【最安値保証】
もっとお得にお家を購入したい!そんな方はぜひ『ハウスドゥ御幸田迎』にお任せください!
他社様よりも必ずお得にご購入いただけることをお約束いたします。
当店ではオプション費用(エアコン、網戸、太陽光等)もお客様に代わり相見積もりいたします!
住宅ローンにも自信あり!(承認率約90%♪)ご相談ください!
不動産のプロ『ハウスドゥ 御幸田迎』が年間契約数200件以上の経験を活かし、後悔のないお家選びを全力でお手伝いします!
物件の設備
- 上水道
- 公営水道
- 下水道
- 公共下水
- プロパンガス
- 個別プロパン
- 浄水器
- コンロ三口
- グリル
- カウンターキッチン
- システムキッチン
- バス
- ユニットバス
- オートバス
- バス1坪以上
- 浴室に窓
- トイレ
- 温水洗浄便座
- 室内洗濯機置場
- 洗髪洗面化粧台
- 洗面所独立
- 省エネ給湯器
- モニタ付インターホン
- クローゼット
- ウォークインクローゼット
- 納戸
- シューズボックス
- バルコニー
- インナーバルコニー
物件の特徴
- 2沿線利用可
- 小学校徒歩10分以内
- 市街地が近い
- 都市近郊
- 通風良好
- 陽当り良好
- 2階建
- 即入居可
物件詳細情報
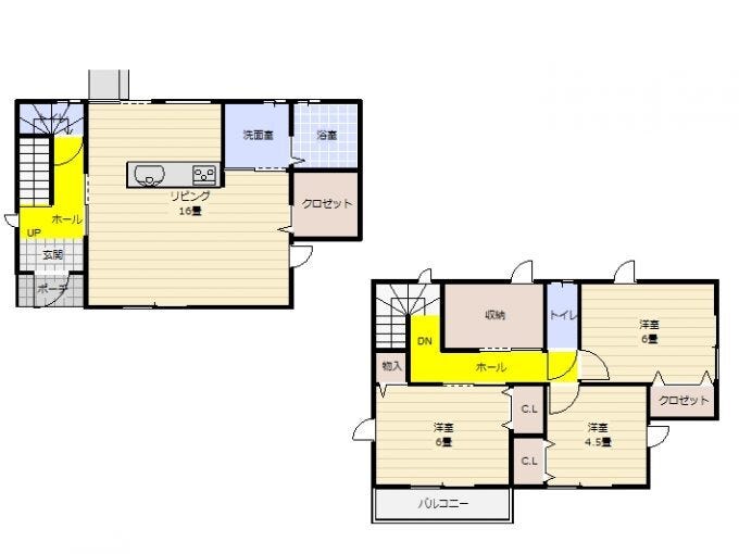
価格 | 2,580万円 | 間取り | 3LDK+S |
---|---|---|---|
物件種別 | 新築一戸建て | ||
所在地 | 熊本県熊本市中央区黒髪3丁目14-1付近 1号地 | ||
アクセス |
|
||
建物面積 | 96.04㎡ | 駐車場 | あり 普通:2台 |
築年月 | 2025年(令和7年)06月築 | 建築確認 | 第20243010号 |
建物構造 | 木造 2階建 | 工法 | |
主要採光 | バルコニー | ||
保証・評価 | |||
土地面積 | 124.66㎡(37.70坪) | 接道 | |
私道 | セットバック | ||
地目 | 宅地 | 地勢 | |
権利 | 所有権 |
||
都市計画 | 用途地域 | 1種中高 | |
建ぺい/容積率 | 60% / 150% | 土地国土法 | |
許可番号 | 建築基準法 | ||
法令制限 | |||
小学区 | 黒髪小学校 徒歩9分 (約700m) | 中学区 | 桜山中学校 徒歩13分 (約1000m) |
現況 | 完工済 | 引渡 | 即 |
その他費用 | |||
周辺環境 | 熊本市立 桜山中学校 徒歩14分 (約1060m) 黒髪小学校 徒歩9分 (約650m) 黒髪幼愛園 徒歩8分 (約580m) ファミリーマート熊本済々黌高前店 徒歩4分 (約280m) マルショク子飼店 徒歩14分 (約1110m) 熊本黒髪二郵便局 徒歩9分 (約680m) くまもと成城病院 徒歩10分 (約770m) 黒髪西公園 徒歩4分 (約300m) マツモトキヨシ黒髪店 徒歩10分 (約740m) ルーテル学院中学・高等学校 徒歩5分 (約370m) |
||
備考 | ・熊本市立 桜山中学校まで徒歩14分(約1060m) ・黒髪小学校まで徒歩9分(約650m) ・黒髪幼愛園まで徒歩8分(約580m) ・ファミリーマート熊本済々黌高前店まで徒歩4分(約280m) ・マルショク子飼店まで徒歩14分(約1110m) ・熊本黒髪二郵便局まで徒歩9分(約680m) ・くまもと成城病院まで徒歩10分(約770m) ・黒髪西公園まで徒歩4分(約300m) ・マツモトキヨシ黒髪店まで徒歩10分(約740m) ・ルーテル学院中学・高等学校まで徒歩5分(約370m) |
||
物件番号 | 4314867 | 取引態様 | 媒介 |
取扱店舗情報
ハウスドゥ 御幸田迎 株式会社Remado 店舗詳細ページへ
電話番号 | 096-243-3000 |
---|---|
所在地 | 〒861-4108 熊本県熊本市南区幸田1丁目7-20 |
営業時間 | 9:30~18:00 |
定休日 | お盆、年末年始 |
宅建免許番号 | 熊本県知事(1)第5556号 |
アクセス | 店舗への地図はこちら |
来店ご予約
熊本県熊本市中央区で価格が似ている物件はこちら
- 熊本県
マイページ物件数 - 2,988件
最近見た物件
-
-
-
- 新築一戸建て
- 2,499万円
-
熊本市中央区黒髪4丁目
-
熊本電気鉄道北熊本
-
-
-
-
- 新築一戸建て
- 2,590万円
-
八代市井上町
-
JR九州新幹線新八代
-
熊本県新築一戸建て新着物件
-
-
-
- 新築一戸建て
- 3,298万円
-
熊本市東区吉原町
-
JR豊肥本線武蔵塚駅
-
-
-
-
- 新築一戸建て
- 3,280万円
-
熊本市北区池田3丁目
-
熊本電気鉄道池田駅
-
-
-
-
- 新築一戸建て
- 2,598万円
-
宇城市松橋町松橋
-
JR鹿児島本線松橋駅
-
-
-
-
- 新築一戸建て
- 2,498万円
-
宇城市松橋町松橋
-
JR鹿児島本線松橋駅
-
-
-
-
- 新築一戸建て
- 3,380万円
-
熊本市北区池田3丁目
-
熊本電気鉄道池田駅
-
-
-
-
- 新築一戸建て
- 3,080万円
-
熊本市西区池田3丁目
-
JR鹿児島本線崇城大学前駅
-
-
-
-
- 新築一戸建て
- 3,180万円
-
熊本市西区池田3丁目
-
JR鹿児島本線崇城大学前駅
-
- お近くの店舗を探す
-
おすすめ物件
-
-
-
- 新築一戸建て
- 2,880万円
-
熊本市中央区出水6丁目
-
JR豊肥本線南熊本
-
-
-
-
- 新築一戸建て
- 3,390万円
-
熊本市東区湖東3丁目
-
JR豊肥本線新水前寺
-
-
-
-
- 新築一戸建て
- 3,288万円
-
熊本市南区幸田2丁目
-
JR豊肥本線平成
-
-
-
-
- 新築一戸建て
- 3,498万円
-
熊本市東区江津2丁目
-
熊本市健軍線神水交差点
-
-
-
-
- 新築一戸建て
- 2,998万円
-
熊本市東区戸島本町
-
JR豊肥本線光の森
-
-
-
-
- 新築一戸建て
- 3,398万円
-
熊本市北区清水新地1丁目
-
熊本電気鉄道堀川
-
-
-
-
- 新築一戸建て
- 3,499万円
-
熊本市東区尾ノ上3丁目
-
熊本市健軍線神水交差点
-
-
-
-
- 新築一戸建て
- 3,198万円
-
合志市御代志
-
熊本電気鉄道御代志
-
担当エージェント:片山 久瑠実
【月々の支払い例】
2600万円借り入れの場合
月々50743円(頭金・ボーナス払いなし)
金利 0.648%(ネット銀行、金利優遇有)
変動金利 返済期間50年
※あくまでも一例です。条件あり
【周辺環境】
・熊本市立 桜山中学校まで徒歩14分(約1060m)
・黒髪小学校まで徒歩9分(約650m)
・黒髪幼愛園まで徒歩8分(約580m)
・ファミリーマート熊本済々黌高前店まで徒歩4分(約280m)
・マルショク子飼店まで徒歩14分(約1110m)
・熊本黒髪二郵便局まで徒歩9分(約680m)
・くまもと成城病院まで徒歩10分(約770m)
・黒髪西公園まで徒歩4分(約300m)
・マツモトキヨシ黒髪店まで徒歩10分(約740m)
・ルーテル学院中学・高等学校まで徒歩5分(約370m)
いつでもお気軽にご連絡ください☆彡
お問い合わせはハウスドゥ御幸田迎(096-243-3000)まで♪