堺市北区金岡町の新築戸建
掲載情報更新日:2025年11月08日 次回更新予定日:2025年11月22日
- 4,480万円
-
- 借入ご希望金額
万円 - 借入期間
年 - 借入金利
% - 月々のお支払い金額
円
- 借入ご希望金額
※ 月々のお支払例は目安の試算となりますので、実際の金額とは異なる場合がございます。詳しくは店舗までお問合わせください。
- 堺市北区金岡町
-
大阪市御堂筋線『新金岡』 徒歩10分 (約800m)
堺市北区金岡町一戸建て | 物件情報
・駐車スペースあり♪新築3階建♪ ・2Fに水回りがあり家事も楽々♪ ・周辺生活環境も充実♪♪
◆弊社限定!◆
《オプション工事・家具・家電等プレゼントキャンペーン実施中》
・駐車スペースあり♪新築3階建♪♪
・2Fに水回りがあり家事も楽々♪
・各居室に収納スペース充実♪ウォークインクローゼットあり♪
・小学校にも近く、徒歩圏内に生活環境充実♪
物件の設備
- 電気
- 公営水道
- 公共下水
- 都市ガス
- 浄水器
- カウンターキッチン
- システムキッチン
- オートバス
- バス1坪以上
- 浴室乾燥機
- 浴室に窓
- トイレ2箇所
- 温水洗浄便座
- 室内洗濯機置場
- 洗髪洗面化粧台
- 洗面所独立
- モニタ付インターホン
- LDK15畳以上
- 複層ガラス
- ウォークインクローゼット
- 床下収納
- 全居室収納
- ハイルーフ駐車可能
物件の特徴
- 小学校徒歩10分以内
- スーパーが近い
- 市街地が近い
- 通風良好
- 陽当り良好
- 3階建以上
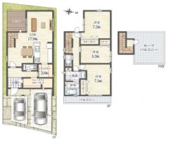
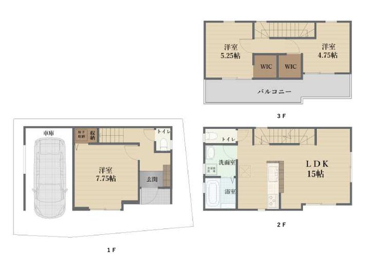
物件詳細情報
| 価格 | 4,480万円 | 間取り | 3LDK |
|---|---|---|---|
| 物件種別 | 新築一戸建て | ||
| 所在地 | 大阪府堺市北区金岡町 | ||
| アクセス |
|
||
| 建物面積 | 公93.41㎡ | 駐車場 | あり 普通:1台 |
| 築年月 | 2025年(令和7年)09月築 | 建築確認 | 第KS125-0420-51672 |
| 建物構造 | 木造 3階建 | 工法 | 軸組工法 |
| 主要採光 | バルコニー | ||
| 保証・評価 | |||
| 土地面積 | 公61.02㎡(18.45坪) | 接道 | 北側(公道)幅 約4.0m |
| 私道 | セットバック | ||
| 地目 | 宅地 | 地勢 | |
| 権利 | 所有権 |
||
| 都市計画 | 市街化区域 |
用途地域 | 1種住居 |
| 建ぺい/容積率 | 60% / 200% | 土地国土法 | |
| 許可番号 | 建築基準法 | ||
| 法令制限 | |||
| 小学区 | 金岡小学校 徒歩5分 (約350m) | 中学区 | 金岡南中学校 徒歩13分 (約1000m) |
| 現況 | 未着工 | 引渡 | 期日指定:2025年10月中旬 |
| その他費用 | |||
| 備考 | |||
| 物件番号 | 4316763 | 取引態様 | 媒介 |
取扱店舗情報
| 電話番号 | 072-242-4735 |
|---|---|
| 所在地 | 〒591-8041 大阪府堺市北区東雲東町1丁6-2 市駅ハイツ101 |
| 営業時間 | 10:00~19:00 |
| 定休日 | 水曜日 |
| 宅建免許番号 | 大阪府知事(1)第64974号 |
| アクセス | 店舗への地図はこちら |

来店ご予約
大阪府堺市北区で価格が似ている物件はこちら
- 大阪府
マイページ物件数 - 15,622件
最近見た物件
-
-

-
- 中古マンション
- 3,400万円
-
松山市三番町1丁目
-
伊予鉄道環状線勝山町
-
大阪府新築一戸建て新着物件
- お近くの店舗を探す
-
おすすめ物件
-
-

-
- 新築一戸建て
- 3,880万円
-
泉大津市条南町
-
南海電鉄本線松ノ浜
-
-
-

-
- 新築一戸建て
- 4,780万円
-
堺市北区新金岡町5丁
-
大阪市御堂筋線新金岡
-
-
-

-
- 新築一戸建て
- 5,180万円
-
高槻市北昭和台町
-
阪急電鉄京都線総持寺
-
-
-

-
- 新築一戸建て
- 2,599万円
-
泉大津市東助松町3丁目
-
南海電鉄本線北助松
-
-
-

-
- 新築一戸建て
- 4,580万円
-
大阪市西淀川区佃3丁目
-
阪神電鉄本線千船
-
-
-

-
- 新築一戸建て
- 4,480万円
-
堺市北区金岡町
-
大阪市御堂筋線新金岡
-
-
-

-
- 新築一戸建て
- 4,580万円
-
堺市北区長曽根町
-
大阪市御堂筋線新金岡
-
-
-

-
- 新築一戸建て
- 3,900万円
-
茨木市橋の内3丁目
-
阪急電鉄京都線総持寺
-
-
-

-
- 新築一戸建て
- 2,380万円
-
松原市天美北3丁目
-
近鉄南大阪線河内天美
-
-
-

-
- 新築一戸建て
- 2,948万円
-
泉大津市松之浜町2丁目
-
南海電鉄本線松ノ浜
-










