新築戸建 本牧原戸建C号棟
掲載情報更新日:2026年05月19日 次回更新予定日:2026年06月02日
- 6,980万円
-
- 借入ご希望金額
万円 - 借入期間
年 - 借入金利
% - 月々のお支払い金額
円
- 借入ご希望金額
※ 月々のお支払例は目安の試算となりますので、実際の金額とは異なる場合がございます。詳しくは店舗までお問合わせください。
- 横浜市中区本牧原
-
横浜高速鉄道みなとみらい線『元町・中華街』 バス乗車14分 本牧原 停 徒歩2分 (約160m)
新築戸建 本牧原戸建C号棟一戸建て | 物件情報
物件の設備
- 公営水道
- 公共下水
- 都市ガス
- 給湯
- 浄水器
- 食器乾燥機
- 食器洗浄乾燥機
- コンロ三口
- カウンターキッチン
- システムキッチン
- オートバス
- 追焚機能
- 浴室暖房
- 浴室乾燥機
- 室内洗濯機置場
- 床暖房
- 全室エアコン
- モニタ付インターホン
- LDK20畳以上
- 全室フローリング
- 納戸
- 全居室収納
- バルコニー
- 南面バルコニー
物件の特徴
- 小学校徒歩10分以内
- 閑静な住宅街
- 3階建以上
- 平坦地
- 即入居可
物件詳細情報
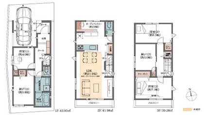
| 価格 | 6,980万円 | 間取り | 4LDK+S |
|---|---|---|---|
| 物件種別 | 新築一戸建て | ||
| 所在地 | 神奈川県横浜市中区本牧原 | ||
| アクセス |
|
||
| 建物面積 | 125.19㎡ | 駐車場 | なし |
| 築年月 | 2024年(令和6年)09月築 | 建築確認 | 第KB1ーYKH24-10-0127号 |
| 建物構造 | 木造 3階建 | 工法 | |
| 主要採光 | 南向 | バルコニー | |
| 保証・評価 | |||
| 土地面積 | 69.62㎡(21.06坪) | 接道 | |
| 私道 | セットバック | ||
| 地目 | 宅地 | 地勢 | |
| 権利 | 所有権 |
||
| 都市計画 | 市街化区域 |
用途地域 | 近隣商業 |
| 建ぺい/容積率 | 80% / 300% | 土地国土法 | |
| 許可番号 | 建築基準法 | ||
| 法令制限 | |||
| 小学区 | 本牧小学校 徒歩7分 (約550m) | 中学区 | 大鳥中学校 徒歩4分 (約260m) |
| 現況 | 空 | 引渡 | 即 |
| その他費用 | |||
| 備考 | |||
| 物件番号 | 4331985 | 取引態様 | 媒介 |
取扱店舗情報
ハウスドゥ 横浜公園前 トランクトラスト株式会社 店舗詳細ページへ
| 電話番号 | 045-307-3166 |
|---|---|
| 所在地 | 〒231-0023 神奈川県横浜市中区山下町252番地 グランベル横浜ビル6階D号 |
| 営業時間 | 9:00~18:00 |
| 定休日 | 水曜日 |
| 宅建免許番号 | 神奈川県知事(2)第30620号 |
| アクセス | 店舗への地図はこちら |

来店ご予約
神奈川県横浜市中区で価格が似ている物件はこちら
- 神奈川県
マイページ物件数 - 3,347件
神奈川県新築一戸建て新着物件
-
-

-
- 新築一戸建て
- 3,480万円
-
横須賀市二葉2丁目
-
京急本線浦賀駅
-
-
-

-
- 新築一戸建て
- 3,080万円
-
横須賀市鴨居3丁目
-
京急本線浦賀駅
-
-
-

-
- 新築一戸建て
- 4,699万円
-
横須賀市ハイランド2丁目
-
京急久里浜線YRP野比駅
-
-
-

-
- 新築一戸建て
- 3,180万円
-
厚木市愛名
-
小田急小田原線本厚木駅
-
-
-

-
- 新築一戸建て
- 2,980万円
-
厚木市愛名
-
小田急小田原線本厚木駅
-
-
-

-
- 新築一戸建て
- 3,080万円
-
横須賀市汐見台3丁目
-
JR横須賀線衣笠駅
-
-
-

-
- 新築一戸建て
- 3,580万円
-
厚木市愛名
-
小田急小田原線本厚木駅
-
- お近くの店舗を探す
-
おすすめ物件
-
-

-
- 新築一戸建て
- 6,798万円
-
相模原市南区上鶴間8丁目
-
小田急江ノ島線中央林間
-
-
-

-
- 新築一戸建て
- 3,980万円
-
町田市薬師台1丁目
-
小田急小田原線町田
-
-
-

-
- 新築一戸建て
- 3,480万円
-
平塚市達上ケ丘
-
JR東海道本線平塚
-
-
-

-
- 新築一戸建て
- 4,699万円
-
相模原市南区若松3丁目
-
小田急小田原線相模大野
-
-
-

-
- 新築一戸建て
- 4,480万円
-
横浜市中区本牧原
-
JR根岸線石川町
-

































