岡崎市稲熊町字4丁目の新築戸建
掲載情報更新日:2026年01月09日 次回更新予定日:2026年01月23日
- 3,980万円
-
- 借入ご希望金額
万円 - 借入期間
年 - 借入金利
% - 月々のお支払い金額
円
- 借入ご希望金額
※ 月々のお支払例は目安の試算となりますので、実際の金額とは異なる場合がございます。詳しくは店舗までお問合わせください。
- 岡崎市稲熊町字4丁目
-
名鉄名古屋本線『東岡崎』 徒歩25分 (約2000m)
名鉄バス『「梅園小学校東」停』 徒歩3分 (約190m)
岡崎市稲熊町字4丁目一戸建て | 物件情報
2025年1月完成済み!分譲平屋!ウッドデッキ付き!小学校まで徒歩約3分!周辺環境充実!
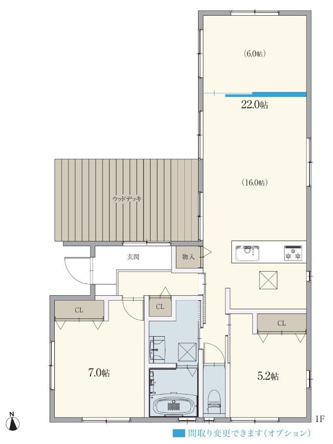
・吹き抜けのある約22帖リビング!ご家族の生活環境に合わせて間取り変更可能です!
・対面式キッチンのため、ご家族とのコミュニケーションが取りやすいです!
・スーパー、薬局、コンビニまで徒歩10分圏内でお買い物にも便利な立地です!
物件の設備
- 電気
- 公営水道
- 公共下水
- 都市ガス
- 食器洗浄乾燥機
- コンロ三口
- カウンターキッチン
- システムキッチン
- 浴室暖房
- 浴室乾燥機
- 浴室に窓
- 室内洗濯機置場
- 洗髪洗面化粧台
- EV車充電設備
- モニタ付インターホン
- LDK20畳以上
- 複層ガラス
- 全室フローリング
- 24時間換気システム
- クローゼット
- 床下収納
- 全居室収納
- ウッドデッキ
物件の特徴
- 小学校徒歩10分以内
- 南側道路面す
- スーパーが近い
- 即入居可
- 間取変更可能
物件詳細情報
| 価格 | 3,980万円 | 間取り | 2LDK |
|---|---|---|---|
| 物件種別 | 新築一戸建て | ||
| 所在地 | 愛知県岡崎市稲熊町字4丁目 Aタイプ | ||
| アクセス |
|
||
| 建物面積 | 76.81㎡ | 駐車場 | あり 普通:2台 |
| 築年月 | 2025年(令和7年)01月築 | 建築確認 | 第KS124-0410-56798号 |
| 建物構造 | 木造 1階建 | 工法 | |
| 主要採光 | バルコニー | ||
| 保証・評価 | |||
| 分譲情報 | 【販売戸数】:2戸 |
||
| 土地面積 | 175㎡(52.93坪) | 接道 | 南側(公道)幅 約3.9m |
| 私道 | セットバック | ||
| 地目 | 宅地 | 地勢 | |
| 権利 | 所有権 |
||
| 都市計画 | 市街化区域 |
用途地域 | 1種中高 |
| 建ぺい/容積率 | 60% / 160% | 土地国土法 | |
| 許可番号 | 建築基準法 | ||
| 法令制限 | |||
| 小学区 | 梅園小学校 徒歩3分 (約240m) | 中学区 | 甲山中学校 徒歩12分 (約940m) |
| 現況 | 完工済 | 引渡 | 即 |
| その他費用 | |||
| 周辺環境 | 梅園小学校 徒歩3分 (約240m) 甲山中学校 徒歩12分 (約940m) 梅園こども園 徒歩5分 (約350m) ドミー稲熊店 徒歩9分 (約710m) アオキスーパー伊賀店 徒歩10分 (約760m) スギ薬局稲熊店 徒歩8分 (約640m) ココカラファイン岡崎伊賀店 徒歩11分 (約850m) ファミリーマート岡崎稲熊一丁目店 徒歩7分 (約560m) 六供郵便局 徒歩6分 (約450m) 稲熊公園 徒歩9分 (約700m) |
||
| 備考 | ※南側公道3.9m~4.1m | ||
| 物件番号 | 4338015 | 取引態様 | 媒介 |
取扱店舗情報
| 電話番号 | 0564-65-2355 |
|---|---|
| 所在地 | 〒444-0009 愛知県岡崎市小呂町字2丁目4番地1 |
| 営業時間 | 9:00-18:00 |
| 定休日 | 水曜日 |
| 宅建免許番号 | 国土交通大臣(1)第10568号 |
| アクセス | 店舗への地図はこちら |

来店ご予約
愛知県岡崎市で価格が似ている物件はこちら
- 愛知県
マイページ物件数 - 31,899件
最近見た物件
-
-

-
- 中古一戸建て
- 2,480万円
-
松山市鉄砲町
-
伊予鉄道環状線鉄砲町
-
愛知県新築一戸建て新着物件
-
-

-
- 新築一戸建て
- 2,780万円
-
丹羽郡大口町外坪1丁目
-
名鉄犬山線扶桑駅
-
-
-

-
- 新築一戸建て
- 2,880万円
-
丹羽郡扶桑町大字高雄
-
名鉄犬山線扶桑駅
-
-
-

-
- 新築一戸建て
- 2,980万円
-
丹羽郡扶桑町大字高雄
-
名鉄犬山線扶桑駅
-
-
-

-
- 新築一戸建て
- 2,780万円
-
丹羽郡扶桑町大字高雄
-
名鉄犬山線扶桑駅
-
-
-

-
- 新築一戸建て
- 2,580万円
-
丹羽郡扶桑町大字高雄
-
名鉄犬山線扶桑駅
-
-
-

-
- 新築一戸建て
- 2,780万円
-
江南市宮田神明町天王
-
名鉄犬山線江南駅
-
-
-

-
- 新築一戸建て
- 5,080万円
-
名古屋市中村区大正町3丁目
-
名古屋市桜通線太閤通駅
-
- お近くの店舗を探す
-
おすすめ物件
-
-

-
- 新築一戸建て
- 6,180万円
-
名古屋市昭和区長戸町3丁目
-
名古屋市鶴舞線川名
-
-
-

-
- 新築一戸建て
- 2,680万円
-
知多市金沢字郷中
-
名鉄常滑線新舞子
-
-
-

-
- 新築一戸建て
- 5,280万円
-
豊田市山之手9丁目
-
愛知環状鉄道三河豊田
-
-
-

-
- 新築一戸建て
- 2,498万円
-
稲沢市祖父江町大牧稗田
-
名鉄尾西線上丸渕
-
-
-

-
- 新築一戸建て
- 3,690万円
-
豊田市大林町13丁目
-
愛知環状鉄道末野原
-
-
-

-
- 新築一戸建て
- 2,290万円
-
瀬戸市坂上町
-
名鉄瀬戸線三郷
-
-
-

-
- 新築一戸建て
- 3,440万円
-
知多市八幡字荒古後
-
名鉄常滑線寺本
-
-
-

-
- 新築一戸建て
- 3,699万円
-
刈谷市泉田町大久屋
-
名鉄名古屋本線富士松
-
-
-

-
- 新築一戸建て
- 3,490万円
-
豊川市豊栄町
-
名鉄豊川線豊川稲荷
-
-
-

-
- 新築一戸建て
- 3,590万円
-
西尾市住吉町6丁目
-
名鉄西尾線西尾
-























LDK約22帖の分譲平屋!解放感のある対面キッチンは、リビング全体を見わたせるので、ご家族を身近に感じられます!梅園小学校まで徒歩約3分、甲山中学校まで徒歩約12分で通学も安心です。