小平市仲町の新築戸建
掲載情報更新日:2026年01月02日 次回更新予定日:2026年01月16日
- 3,980万円
-
- 借入ご希望金額
万円 - 借入期間
年 - 借入金利
% - 月々のお支払い金額
円
- 借入ご希望金額
※ 月々のお支払例は目安の試算となりますので、実際の金額とは異なる場合がございます。詳しくは店舗までお問合わせください。
- 小平市仲町
-
西武新宿線『小平』 徒歩17分 (約1360m)
西武新宿線『小平』 バス乗車8分 学園東町 停 徒歩3分 (約240m)
小平市仲町一戸建て | 物件情報
西武新宿線「小平」駅徒歩17分!バス利用でJR中央線「国分寺」駅も利用可能!
物件の設備
- 電気
- 公営水道
- 公共下水
- 都市ガス
- 浄水器
- カウンターキッチン
- システムキッチン
- ユニットバス
- 浴室乾燥機
- トイレ
- 温水洗浄便座
- 室内洗濯機置場
- 洗髪洗面化粧台
- モニタ付インターホン
- ロフト
- フローリング
- 24時間換気システム
- クローゼット3箇所
- シューズボックス
- バルコニー
物件の特徴
- 南向
- 小学校徒歩10分以内
- 2階建
- 即入居可
物件詳細情報
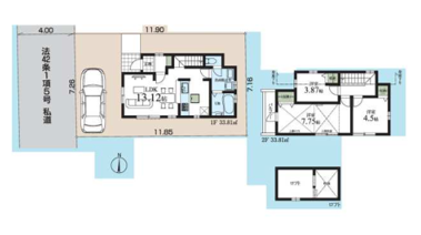
| 価格 | 3,980万円 | 間取り | 3LDK |
|---|---|---|---|
| 物件種別 | 新築一戸建て | ||
| 所在地 | 東京都小平市仲町 | ||
| アクセス |
|
||
| 建物面積 | 67.62㎡ | 駐車場 | あり 普通:1台 |
| 築年月 | 2025年(令和7年)06月築 | 建築確認 | |
| 建物構造 | 木造 2階建 | 工法 | |
| 主要採光 | 南向 | バルコニー | 西向3.00㎡ |
| 保証・評価 | |||
| 土地面積 | 85.88㎡(25.97坪) | 接道 | 西側(私道)幅 約4.0m |
| 私道 | セットバック | ||
| 地目 | 宅地 | 地勢 | |
| 権利 | 所有権 |
||
| 都市計画 | 市街化区域 |
用途地域 | 1種低層 |
| 建ぺい/容積率 | 40% / 80% | 土地国土法 | |
| 許可番号 | 建築基準法 | ||
| 法令制限 | |||
| 小学区 | 第二小学校 徒歩4分 (約250m) | 中学区 | 小平第一中学校 徒歩10分 (約750m) |
| 現況 | 空 | 引渡 | 即 |
| その他費用 | |||
| 周辺環境 | 天神こぶし公園 徒歩7分 (約510m) 小平市立小平第二小学校 徒歩5分 (約360m) 二葉むさしが丘学園 徒歩8分 (約620m) 小平天神郵便局 徒歩5分 (約390m) 天神こぶし公園 徒歩7分 (約510m) ファミリーマート 小平あかしあ通り店 徒歩9分 (約650m) 多摩信用金庫 学園東支店 徒歩6分 (約460m) ドラッグセイムス 小平東店 徒歩6分 (約440m) ina21小平天神店 徒歩8分 (約570m) 小平市立小平第一中学校 徒歩11分 (約860m) |
||
| 備考 | ※床面積70㎡未満の為、フラット35使用不可 ※網戸・照明・濃緑・カーテンレール・防水パン・カーポートはオプションとなります ※宅地内に電柱及び支線が入る場合があります ※司法書士は、当社指定になります ※図面と現況に相違がある場合は現況優先とします。 |
||
| 物件番号 | 4339625 | 取引態様 | 媒介 |
取扱店舗情報
ハウスドゥ 国分寺本町4丁目 株式会社エンジョイパパ 店舗詳細ページへ
| 電話番号 | 042-313-9555 |
|---|---|
| 所在地 | 〒185-0012 東京都国分寺市本町4丁目3番16号サンクレストビル101 |
| 営業時間 | 10:00~14:00 |
| 定休日 | 水曜日、土曜日、日曜日 |
| 宅建免許番号 | 東京都知事(1)第111593号 |
| アクセス | 店舗への地図はこちら |

来店ご予約
東京都小平市で価格が似ている物件はこちら
- 東京都
マイページ物件数 - 4,856件
最近見た物件
-
-

-
- 中古一戸建て
- 3,329万円
-
船橋市旭町1丁目
-
東武野田線塚田
-
-
-

-
- 中古一戸建て
- 1,580万円
-
北九州市八幡西区小嶺台1丁目
-
筑豊電気鉄道通谷
-
-
-

-
- 中古一戸建て
- 200万円
-
出雲市大津町
-
一畑電車北松江線大津町
-
東京都新築一戸建て新着物件
-
-

-
- 新築一戸建て
- 3,280万円
-
日野市日野台5丁目
-
JR中央本線豊田駅
-
-
-

-
- 新築一戸建て
- 3,580万円
-
日野市日野台5丁目
-
JR中央本線豊田駅
-
-
-

-
- 新築一戸建て
- 6,590万円
-
日野市日野本町4丁目
-
JR中央本線日野駅
-
-
-

-
- 新築一戸建て
- 1億5,980万円
-
世田谷区東玉川1丁目
-
東急目黒線奥沢駅
-
-
-

-
- 新築一戸建て
- 6,699万円
-
足立区伊興本町1丁目
-
東武伊勢崎・大師線竹ノ塚駅
-
-
-

-
- 新築一戸建て
- 6,999万円
-
足立区伊興本町1丁目
-
東武伊勢崎・大師線竹ノ塚駅
-
-
-

-
- 新築一戸建て
- 6,799万円
-
足立区伊興本町1丁目
-
東武伊勢崎・大師線竹ノ塚駅
-
- お近くの店舗を探す
-
おすすめ物件
-
-

-
- 新築一戸建て
- 5,999万円
-
国分寺市北町5丁目
-
西武国分寺線鷹の台
-
-
-

-
- 新築一戸建て
- 6,390万円
-
三鷹市中原4丁目
-
京王線つつじヶ丘
-
-
-

-
- 新築一戸建て
- 5,990万円
-
調布市深大寺北町1丁目
-
京王相模原線調布
-
-
-

-
- 新築一戸建て
- 3,980万円
-
足立区大谷田4丁目
-
東京メトロ千代田線北綾瀬
-
-
-

-
- 新築一戸建て
- 8,999万円
-
練馬区東大泉7丁目
-
西武池袋・豊島線大泉学園
-
-
-

-
- 新築一戸建て
- 4,580万円
-
調布市上石原3丁目
-
京王線西調布
-
-
-

-
- 新築一戸建て
- 2,680万円
-
八王子市大楽寺町
-
JR中央本線西八王子
-
-
-

-
- 新築一戸建て
- 9,980万円
-
世田谷区砧1丁目
-
小田急小田原線祖師ヶ谷大蔵
-
-
-

-
- 新築一戸建て
- 5,180万円
-
調布市富士見町2丁目
-
京王相模原線調布
-
-
-

-
- 新築一戸建て
- 6,790万円
-
狛江市東野川2丁目
-
小田急小田原線喜多見
-









担当エージェント:岩下直樹
3LDK+ロフト+カースペース1台!2階の各部屋に収納あり、ロフト付きで収納スペースが多い新築戸建です!吹抜けもあります!ぜひ一度ご覧ください!