熊本市中央区出水5丁目の新築戸建
掲載情報更新日:2026年04月17日 次回更新予定日:2026年05月01日
- 3,898万円
-
- 借入ご希望金額
万円 - 借入期間
年 - 借入金利
% - 月々のお支払い金額
円
- 借入ご希望金額
※ 月々のお支払例は目安の試算となりますので、実際の金額とは異なる場合がございます。詳しくは店舗までお問合わせください。
- 熊本市中央区出水5丁目
-
JR豊肥本線『新水前寺』 徒歩20分 (約1600m)
熊本市健軍線『新水前寺駅前』 徒歩20分 (約1600m)
『出水3丁目』 徒歩11分 (約880m)
熊本市中央区出水5丁目一戸建て | 物件情報
《一気見ツアー今すぐOK》☆仲介手数料無料物件(122万円相当がお得!)お気軽にお問合せください♪
【内覧ツアー×最安値保証】ネットの物件、すべて当社で紹介可能!交渉力で「理想の価格」を叶えます
当社は通常かかる仲介手数料(物件価格の3%+6万円)が無料(例:3000万円の場合、90万円相当)
売主様への価格交渉も得意なので、どこよりもお安くご購入いただけるよう徹底サポートします!
他社様でお見積もりを取った後でも大丈夫!もっと安く買えるのでは?そんな悩みは当社が解決します
【内覧ツアー】
熊本県内全域の気になる物件をすべて当社でご内覧いただける『内覧ツアー』を実施中☆
新築・中古・中古マンションも!見学されたい物件を1日で内覧可能♪
窓口を一つに絞れるから、手間も時間もかかりません。
【最安値保証】
\最 安 値 徹 底 宣 言/
他社様よりも必ずお得にご購入いただけることをお約束します
当社ではオプション費用(エアコン、網戸、太陽光等)もお客様に代わり相見積もりします
トータルの費用が100万円以上変わることも!
全国700店舗以上展開!
ハウスドゥだからこその豊富な物件数・情報量でお客様のお家選びをトータルサポートいたします!
物件の設備
- 電気
- オール電化
- 上水道
- 公営水道
- 下水道
- 公共下水
- 給湯
- 食器洗浄乾燥機
- IHクッキングヒータ
- コンロ三口
- グリル
- カウンターキッチン
- システムキッチン
- バス
- ユニットバス
- オートバス
- バス1坪以上
- 追焚機能
- 浴室暖房
- 浴室乾燥機
- トイレ
- トイレ2箇所
- 温水洗浄便座
- 室内洗濯機置場
- 洗髪洗面化粧台
- 洗面所独立
- 照明器具
- ダウンライト
- シーリングファン
- リビング階段
- 人感照明センサー
- 省エネ給湯器
- ディンプルキー
- ダブルロックキー
- モニタ付インターホン
- 火災警報器/報知機
- 2面採光
- 吹抜
- 複層ガラス
- 全居室複層ガラス
- フローリング
- 全室フローリング
- 24時間換気システム
- クローゼット
- ウォークインクローゼット
- 納戸
- 全居室収納
- シューズボックス
物件の特徴
- 高気密高断熱住宅
- 制震構造
- 2沿線利用可
- 小学校徒歩10分以内
- スーパーが近い
- 閑静な住宅街
- 市街地が近い
- 通風良好
- 陽当り良好
- 2階建
- バリアフリー
- 即入居可
オープンハウス・イベント情報
開催日時:毎週土日祝 09:00~19:00
開催場所:熊本県熊本市中央区
\\現地見学会ご予約受付中// ○平日・土日祝いつでも承ります!! 〇お仕事帰りもOK!早朝・19時以降も対応致します! ◇◆◇お問い合わせ◇◆◇ 電話:096-243-3000 または 見学予約フォームにて事前にご予約をお願いします♪ ◇◆◇見学のご予約◇◆◇ 事前にご希望日時…
物件詳細情報
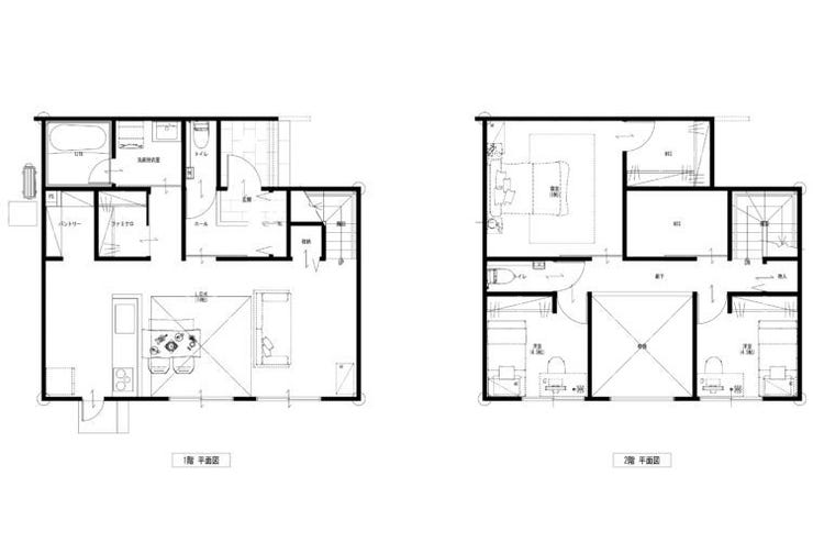
| 価格 | 3,898万円 | 間取り | 3LK+S |
|---|---|---|---|
| 物件種別 | 新築一戸建て | ||
| 所在地 | 熊本県熊本市中央区出水5丁目273-1付近 1号地 | ||
| アクセス |
|
||
| 建物面積 | 101.01㎡ | 駐車場 | あり 普通:2台 |
| 築年月 | 2025年(令和7年)10月築 | 建築確認 | 第202503510号 |
| 建物構造 | 木造 2階建 | 工法 | |
| 主要採光 | バルコニー | ||
| 保証・評価 | |||
| 分譲情報 | 【販売戸数】:2戸 |
||
| 土地面積 | 112.5㎡(34.03坪) | 接道 | 北側(公道)幅 約4.0m 間口 約10.52m |
| 私道 | セットバック | ||
| 地目 | 宅地 | 地勢 | |
| 権利 | 所有権 |
||
| 都市計画 | 市街化区域 |
用途地域 | 2種中高 |
| 建ぺい/容積率 | 60% / 200% | 土地国土法 | |
| 許可番号 | 建築基準法 | ||
| 法令制限 | |||
| 小学区 | 出水南小学校 徒歩6分 (約420m) | 中学区 | 出水中学校 徒歩4分 (約300m) |
| 現況 | 完工済 | 引渡 | 即 |
| その他費用 | |||
| 周辺環境 | 出水南小学校 徒歩6分 (約420m) 出水中学校 徒歩4分 (約300m) 出水の星保育園 徒歩8分 (約600m) ローソン熊本出水ふれあい通り店 徒歩9分 (約700m) ゆめマート 江津 徒歩9分 (約660m) 熊本国府二郵便局 徒歩10分 (約730m) 宮脇クリニック 徒歩6分 (約420m) 出水六丁目公園 徒歩7分 (約540m) マックスバリュくらし館 国府店 徒歩17分 (約1320m) |
||
| 備考 | ・出水南小学校まで徒歩6分(約420m) ・出水中学校まで徒歩4分(約300m) ・出水の星保育園まで徒歩8分(約600m) ・ローソン熊本出水ふれあい通り店まで徒歩9分(約700m) ・ゆめマート えづまで徒歩9分(約660m) ・熊本国府二郵便局まで徒歩10分(約730m) ・宮脇クリニックまで徒歩6分(約420m) ・出水六丁目公園まで徒歩7分(約540m) ・マックスバリュくらし館 国府店まで徒歩17分(約1320m) |
||
| 物件番号 | 4340411 | 取引態様 | 媒介 |
取扱店舗情報
ハウスドゥ 御幸田迎 株式会社Remado 店舗詳細ページへ
| 電話番号 | 096-243-3000 |
|---|---|
| 所在地 | 〒861-4108 熊本県熊本市南区幸田1丁目7-20 |
| 営業時間 | 10:00~18:00 |
| 定休日 | お盆、年末年始 |
| 宅建免許番号 | 熊本県知事(1)第5556号 |
| アクセス | 店舗への地図はこちら |

来店ご予約
熊本県熊本市中央区で価格が似ている物件はこちら
- 熊本県
マイページ物件数 - 3,026件
最近見た物件
-
-

-
- 土地
- 1,023万円
-
倉敷市菰池1丁目
-
JR本四備讃線児島
-
-
-

-
- 土地
- 780万円
-
豊橋市新栄町字東小向
-
JR飯田線船町
-
-
-

-
- 土地
- 500万円
-
境港市中野町
-
JR境線上道
-
熊本県新築一戸建て新着物件
-
-

-
- 新築一戸建て
- 3,048万円
-
合志市須屋
-
熊本電気鉄道須屋駅
-
-
-

-
- 新築一戸建て
- 3,298万円
-
熊本市東区新南部2丁目
-
JR豊肥本線竜田口駅
-
-
-

-
- 新築一戸建て
- 2,998万円
-
熊本市東区新南部2丁目
-
JR豊肥本線竜田口駅
-
-
-

-
- 新築一戸建て
- 4,090万円
-
菊池郡菊陽町大字津久礼
-
JR豊肥本線原水駅
-
-
-

-
- 新築一戸建て
- 3,898万円
-
熊本市東区湖東2丁目
-
熊本市健軍線神水交差点駅
-
-
-

-
- 新築一戸建て
- 4,080万円
-
菊池郡菊陽町大字津久礼
-
JR豊肥本線原水駅
-
-
-

-
- 新築一戸建て
- 3,798万円
-
熊本市東区湖東2丁目
-
熊本市健軍線神水交差点駅
-
- お近くの店舗を探す
-
おすすめ物件
-
-

-
- 新築一戸建て
- 2,349万円
-
熊本市北区鶴羽田4丁目
-
熊本電気鉄道三ツ石
-
-
-

-
- 新築一戸建て
- 1,998万円
-
合志市御代志
-
熊本電気鉄道御代志
-
-
-

-
- 新築一戸建て
- 1,698万円
-
菊池市亘
-
熊本電気鉄道御代志
-
-
-

-
- 新築一戸建て
- 1,830万円
-
宇城市松橋町両仲間
-
JR鹿児島本線松橋
-
-
-

-
- 新築一戸建て
- 2,180万円
-
菊池郡菊陽町向陽台
-
JR豊肥本線武蔵塚
-
-
-

-
- 新築一戸建て
- 2,590万円
-
熊本市南区野田2丁目
-
JR鹿児島本線川尻
-
-
-

-
- 新築一戸建て
- 2,230万円
-
熊本市西区花園7丁目
-
JR鹿児島本線崇城大学前
-
-
-

-
- 新築一戸建て
- 2,390万円
-
熊本市北区池田3丁目
-
熊本電気鉄道池田
-
-
-

-
- 新築一戸建て
- 1,880万円
-
菊池市泗水町吉富
-
熊本電気鉄道御代志
-
-
-

-
- 新築一戸建て
- 3,798万円
-
熊本市中央区帯山5丁目
-
JR豊肥本線東海学園前
-























担当エージェント:片山 久瑠実
【月々の支払い例】
3900万円借り入れの場合
月々78,517円(頭金・ボーナス払いなし)
金利0.780%の場合(SBI新生銀行、金利優遇有)
変動金利 返済期間50年
※あくまで一例。条件有。
【 周辺環境 】
・出水南小学校まで徒歩6分(約420m)
・出水中学校まで徒歩4分(約300m)
・出水の星保育園まで徒歩8分(約600m)
・ローソン熊本出水ふれあい通り店まで徒歩9分(約700m)
・ゆめマート えづまで徒歩9分(約660m)
・熊本国府二郵便局まで徒歩10分(約730m)
・宮脇クリニックまで徒歩6分(約420m)
・出水六丁目公園まで徒歩7分(約540m)
・マックスバリュくらし館 国府店まで徒歩17分(約1320m)
お気軽にご相談ください!
お問い合わせは『株式会社Remado』まで♪