最寄り駅8分!高根台1丁目
掲載情報更新日:2025年11月30日 次回更新予定日:2025年12月14日
- 3,640万円
-
- 借入ご希望金額
万円 - 借入期間
年 - 借入金利
% - 月々のお支払い金額
円
- 借入ご希望金額
※ 月々のお支払例は目安の試算となりますので、実際の金額とは異なる場合がございます。詳しくは店舗までお問合わせください。
- 船橋市高根台1丁目
-
京成電鉄松戸線『高根公団』 徒歩4分 (約320m)
京成電鉄松戸線『高根木戸』 徒歩12分 (約890m)
京成電鉄松戸線『滝不動』 徒歩14分 (約1120m)
最寄り駅8分!高根台1丁目一戸建て | 物件情報
物件の設備
- 電気
- 上水道
- 公営水道
- 下水道
- 都市ガス
- 給湯
- 浄水器
- 食器乾燥機
- 食器洗浄乾燥機
- コンロ三口
- システムキッチン
- ユニットバス
- 浴室乾燥機
- トイレ2箇所
- 温水洗浄便座
- モニタ付インターホン
- 電動シャッター
- 宅配BOX
物件の特徴
- 南向
- 2沿線利用可
- 3沿線以上利用可
- 2階建
物件詳細情報
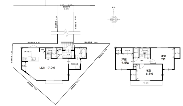
| 価格 | 3,640万円 | 間取り | 3LDK |
|---|---|---|---|
| 物件種別 | 新築一戸建て | ||
| 所在地 | 千葉県船橋市高根台1丁目 | ||
| アクセス |
|
||
| 建物面積 | 公89.01㎡ | 駐車場 | なし |
| 築年月 | 2025年(令和7年)11月予定 | 建築確認 | 第25UDI1C建01060号 |
| 建物構造 | 木造 2階建 | 工法 | |
| 主要採光 | バルコニー | ||
| 保証・評価 | |||
| 土地面積 | 公113.33㎡(34.28坪) | 接道 | |
| 私道 | セットバック | ||
| 地目 | その他 | 地勢 | 平坦 |
| 権利 | 所有権 |
||
| 都市計画 | 市街化区域 |
用途地域 | 1種中高 |
| 建ぺい/容積率 | 60% / 200% | 土地国土法 | |
| 許可番号 | 建築基準法 | ||
| 法令制限 | |||
| 小学区 | 高根台第三小学校 徒歩7分 (約550m) | 中学区 | 高根台中学校 徒歩18分 (約1400m) |
| 現況 | 建築中 | 引渡 | 期日指定:2025年11月中旬 |
| その他費用 | |||
| 周辺環境 | 高根台病院 徒歩10分 (約730m) 千葉銀行高根台支店 高根木戸駅前出張店 徒歩10分 (約750m) ローソン船橋西習志野一丁目店 徒歩12分 (約930m) 京葉銀行高根支店 徒歩11分 (約820m) 鳥海内科 徒歩11分 (約850m) 高根木戸整形外科クリニック 徒歩11分 (約850m) 高根耳鼻咽喉科 徒歩11分 (約850m) 東京ベイ信用金庫 高根支店 徒歩13分 (約1000m) イオン高根木戸店 徒歩12分 (約930m) 船橋こどもの木保育園 徒歩13分 (約980m) |
||
| 備考 | |||
| 物件番号 | 4340472 | 取引態様 | 媒介 |
取扱店舗情報
ハウスドゥ 薬園台駅前 合同会社ネクステージ 店舗詳細ページへ
| 電話番号 | 047-401-0440 |
|---|---|
| 所在地 | 〒274-0077 千葉県船橋市薬円台6丁目5-1 |
| 営業時間 | 10:00~18:00 |
| 定休日 | 火曜日、水曜日 |
| 宅建免許番号 | 千葉県知事(1)第18892号 |
| アクセス | 店舗への地図はこちら |

来店ご予約
千葉県船橋市で価格が似ている物件はこちら
- 千葉県
マイページ物件数 - 2,842件
最近見た物件
-
-

-
- 新築一戸建て
- 2,880万円
-
一宮市大赤見字神明東
-
名鉄名古屋本線名鉄一宮
-
-
-

-
- 土地
- 1,297万円
-
菊川市西方
-
JR東海道本線菊川
-
-
-

-
- 土地
- 600万円
-
掛川市本郷
-
天竜浜名湖鉄道原谷
-
千葉県新築一戸建て新着物件
-
-

-
- 新築一戸建て
- 3,880万円
-
千葉市中央区寒川町3丁目
-
JR外房線本千葉駅
-
-
-

-
- 新築一戸建て
- 5,290万円
-
千葉市美浜区磯辺3丁目
-
JR京葉線検見川浜駅
-
-
-

-
- 新築一戸建て
- 5,290万円
-
千葉市美浜区磯辺3丁目
-
JR京葉線検見川浜駅
-
-
-

-
- 新築一戸建て
- 3,090万円
-
鎌ケ谷市南鎌ケ谷2丁目
-
京成電鉄松戸線鎌ヶ谷大仏駅
-
-
-

-
- 新築一戸建て
- 2,890万円
-
鎌ケ谷市南鎌ケ谷2丁目
-
京成電鉄松戸線鎌ヶ谷大仏駅
-
-
-

-
- 新築一戸建て
- 5,099万円
-
流山市鰭ケ崎
-
JR武蔵野線南流山駅
-
-
-

-
- 新築一戸建て
- 5,899万円
-
松戸市常盤平西窪町
-
JR武蔵野線新八柱駅
-
- お近くの店舗を探す
-
おすすめ物件
-
-

-
- 新築一戸建て
- 3,680万円
-
成田市寺台
-
JR成田線成田
-
-
-

-
- 新築一戸建て
- 4,280万円
-
流山市鰭ケ崎
-
JR武蔵野線南流山
-
-
-

-
- 新築一戸建て
- 4,880万円
-
流山市野々下5丁目
-
東武野田線豊四季
-
-
-

-
- 新築一戸建て
- 4,399万円
-
松戸市平賀
-
JR千代田・常磐緩行線北小金
-
-
-

-
- 新築一戸建て
- 4,999万円
-
流山市東初石1丁目
-
東武野田線初石
-
-
-

-
- 新築一戸建て
- 3,780万円
-
成田市寺台
-
JR成田線成田
-
-
-

-
- 新築一戸建て
- 4,090万円
-
柏市西原4丁目
-
東武野田線江戸川台
-
-
-

-
- 新築一戸建て
- 4,480万円
-
流山市鰭ケ崎
-
JR武蔵野線南流山
-
-
-

-
- 新築一戸建て
- 5,388万円
-
流山市鰭ケ崎
-
つくばエクスプレス南流山
-
-
-

-
- 新築一戸建て
- 5,299万円
-
流山市江戸川台西1丁目
-
東武野田線江戸川台
-



