明石市大久保町西脇の新築戸建
掲載情報更新日:2026年02月10日 次回更新予定日:2026年02月24日
- 4,987万円
-
- 借入ご希望金額
万円 - 借入期間
年 - 借入金利
% - 月々のお支払い金額
円
- 借入ご希望金額
※ 月々のお支払例は目安の試算となりますので、実際の金額とは異なる場合がございます。詳しくは店舗までお問合わせください。
- 明石市大久保町西脇
-
JR山陽本線『魚住』 バス乗車9分 茜南 停 徒歩7分 (約560m)
JR山陽本線『魚住』 車11分(約3.6km)
山陽電鉄本線『江井ヶ島』 車10分(約3.8km)
明石市大久保町西脇一戸建て | 物件情報
不動産会社のイメージを変えたい。全国700店舗展開中!不動産はハウスドゥ明石藤江におまかせください!
【ハウスドゥ明石藤江】おすすめ
□オール電化住宅
□3帖ファミリークローゼット
現地へ行って陽当りや周辺環境、街並みを確かめよう!
お気軽にお問合せください!
山手小学校 約800m(徒歩約12分)
大久保北中学校 約1400m(徒歩約20分)
【ハウスドゥ明石藤江】ご来店サービス♪
♪お客様を駅まで送迎いたします!JR「西明石」「大久保」駅 山陽電鉄線もご相談ください♪
♪ご来店のお客様へウェルカムドリンクのご提供♪ゆっくりと店内でご相談ください♪
どんな小さな事でもご相談ください!エージェントが全力でお手伝い・サポートさせていただきます!
【ハウスドゥ明石藤江】はお客様のより近くにある安心・便利・信頼されるお店づくりを展開中!
【ハウスドゥ明石藤江】はすべての物件情報を公開中!
お問合せはこちらまで →0120-077-712
物件の設備
- 電気
- オール電化
- 上水道
- 公営水道
- 下水道
- 給湯
- コンロ三口
- カウンターキッチン
- システムキッチン
- バス
- オートバス
- バス1坪以上
- 浴室に窓
- トイレ
- トイレ2箇所
- 温水洗浄便座
- 高機能トイレ
- 室内洗濯機置場
- 洗髪洗面化粧台
- 洗面所独立
- リビング階段
- 省エネ給湯器
- モニタ付インターホン
- 2面採光
- 複層ガラス
- クローゼット
- ウォークインクローゼット
- 床下収納
- 全居室収納
- シューズボックス
- シューズインクローク
- 庭
物件の特徴
- 3沿線以上利用可
- 前道6m以上
- 南側道路面す
- 緑豊かな住宅地
- 閑静な住宅街
- 周辺交通量少なめ
- 眺望良好
- 通風良好
- 陽当り良好
- 2階建
- 外壁サイディング
- フラット35Sに対応
物件詳細情報
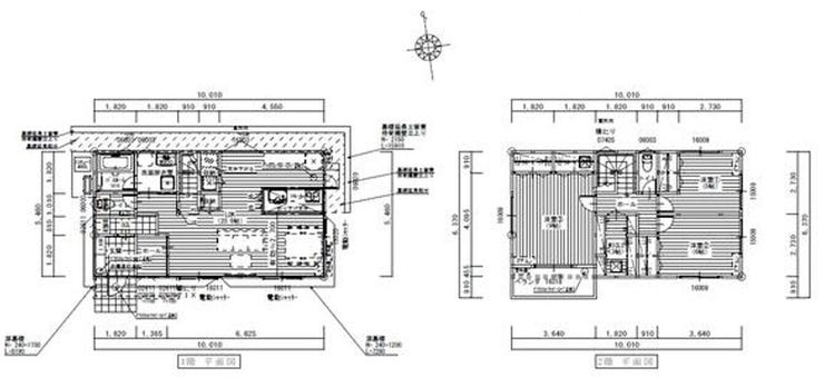
| 価格 | 4,987万円 | 間取り | 3LDK |
|---|---|---|---|
| 物件種別 | 新築一戸建て | ||
| 所在地 | 兵庫県明石市大久保町西脇 | ||
| アクセス |
|
||
| 建物面積 | 107.64㎡ | 駐車場 | あり 普通:2台 |
| 築年月 | 2025年(令和7年)02月予定 | 建築確認 | 第HK24-20933号 |
| 建物構造 | 木造 2階建 | 工法 | |
| 主要採光 | 南向 | バルコニー | |
| 保証・評価 | |||
| 土地面積 | 公143.06㎡(43.27坪) | 接道 | 南側(私道)幅 約6.0m(位置指定) |
| 私道 | セットバック | ||
| 地目 | 宅地 | 地勢 | |
| 権利 | 所有権 |
||
| 都市計画 | 市街化区域 |
用途地域 | 1種低層 |
| 建ぺい/容積率 | 50% / 100% | 土地国土法 | |
| 許可番号 | 建築基準法 | ||
| 法令制限 | |||
| 小学区 | 山手小学校 徒歩10分 (約800m) | 中学区 | 大久保北中学校 徒歩18分 (約1400m) |
| 現況 | 建築中 | 引渡 | 期日指定:2025年02月 |
| その他費用 | |||
| 備考 | □オール電化住宅 □ファミリークローゼット □SIC □駐車場2台 □システムキッチン・全室収納 |
||
| 物件番号 | 4342026 | 取引態様 | 媒介 |
取扱店舗情報
| 電話番号 | 078-962-7712 |
|---|---|
| 所在地 | 〒673-0044 兵庫県明石市藤江927-5 |
| 営業時間 | 10:00~18:00 |
| 定休日 | 水曜日 |
| 宅建免許番号 | 兵庫県知事(1)第401744号 |
| アクセス | 店舗への地図はこちら |

来店ご予約
兵庫県明石市で価格が似ている物件はこちら
- 兵庫県
マイページ物件数 - 3,395件
兵庫県新築一戸建て新着物件
-
-

-
- 新築一戸建て
- 3,290万円
-
明石市松江
-
山陽電鉄本線林崎松江海岸駅
-
-
-

-
- 新築一戸建て
- 3,480万円
-
姫路市城北新町1丁目
-
JR播但線野里駅
-
-
-

-
- 新築一戸建て
- 4,480万円
-
神戸市垂水区塩屋北町1丁目
-
JR山陽本線垂水駅
-
-
-

-
- 新築一戸建て
- 3,780万円
-
姫路市田寺7丁目
-
JR山陽本線姫路駅
-
-
-

-
- 新築一戸建て
- 5,180万円
-
神戸市須磨区大黒町1丁目
-
山陽電鉄本線板宿駅
-
-
-

-
- 新築一戸建て
- 3,890万円
-
三木市緑が丘町東1丁目
-
神戸電鉄粟生線緑が丘駅
-
-
-

-
- 新築一戸建て
- 2,980万円
-
姫路市伊伝居
-
JR播但線京口駅
-
- お近くの店舗を探す
-
おすすめ物件
-
-

-
- 新築一戸建て
- 4,390万円
-
神戸市中央区坂口通3丁目
-
阪急電鉄神戸線春日野道
-
-
-

-
- 新築一戸建て
- 2,698万円
-
姫路市上大野4丁目
-
JR播但線野里
-
-
-

-
- 新築一戸建て
- 3,380万円
-
加古川市尾上町長田
-
山陽電鉄本線尾上の松
-
-
-

-
- 新築一戸建て
- 2,980万円
-
姫路市飾磨区中島
-
山陽電鉄本線飾磨
-
-
-

-
- 新築一戸建て
- 2,798万円
-
姫路市上大野4丁目
-
JR播但線野里
-
-
-

-
- 新築一戸建て
- 2,080万円
-
高砂市百合丘
-
JR山陽本線宝殿
-
-
-

-
- 新築一戸建て
- 2,998万円
-
加古川市加古川町美乃利
-
JR山陽本線加古川
-
-
-

-
- 新築一戸建て
- 3,180万円
-
姫路市御立西6丁目
-
JR山陽本線姫路
-
-
-

-
- 新築一戸建て
- 2,990万円
-
加古川市尾上町長田
-
山陽電鉄本線浜の宮
-


































納得のお住まい購入をお手伝い。より多くの住まい情報をお客様に迅速にお届けし、お住まいをご自由にお選びいただける環境を作り出すよう最善を尽くします。お客様の10年後、20年後の将来を考えたお住まいのご提案を目指します。お住まいのご購入が終わった後も、末永いお付き合いをお約束し誠意を持って対応させていただくことを誓います。全国のネットワークを通じ、情報収集し、お客様に最良のお住まいをご提案いたします。