好立地・カースペース2台完備 習志野台5丁目 B号棟
掲載情報更新日:2025年12月04日 次回更新予定日:2025年12月18日
- 4,980万円
-
- 借入ご希望金額
万円 - 借入期間
年 - 借入金利
% - 月々のお支払い金額
円
- 借入ご希望金額
※ 月々のお支払例は目安の試算となりますので、実際の金額とは異なる場合がございます。詳しくは店舗までお問合わせください。
- 船橋市習志野台5丁目
-
京成電鉄松戸線『習志野』 徒歩17分 (約1310m)
京成電鉄松戸線『北習志野』 徒歩18分 (約1430m)
京成電鉄松戸線『薬園台』 徒歩27分 (約2150m)
好立地・カースペース2台完備 習志野台5丁目 B号棟一戸建て | 物件情報
物件の設備
- オール電化
- 上水道
- 公営水道
- 下水道
- 都市ガス
- 浄水器
- 食器乾燥機
- コンロ三口
- カウンターキッチン
- システムキッチン
- オープンキッチン
- 追焚機能
- 浴室乾燥機
- トイレ2箇所
- 室内洗濯機置場
- 冷房
物件の特徴
- 2階建
物件詳細情報
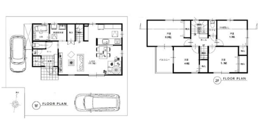
| 価格 | 4,980万円 | 間取り | 4LDK |
|---|---|---|---|
| 物件種別 | 新築一戸建て | ||
| 所在地 | 千葉県船橋市習志野台5丁目 | ||
| アクセス |
|
||
| 建物面積 | 102.67㎡ | 駐車場 | あり 普通:2台 |
| 築年月 | 2025年(令和7年)06月築 | 建築確認 | 第24UDI1C建05762号 |
| 建物構造 | 木造 2階建 | 工法 | |
| 主要採光 | バルコニー | ||
| 保証・評価 | |||
| 土地面積 | 163.38㎡(49.42坪) | 接道 | |
| 私道 | セットバック | ||
| 地目 | 宅地 | 地勢 | |
| 権利 | 所有権 |
||
| 都市計画 | 市街化区域 |
用途地域 | 1種中高 |
| 建ぺい/容積率 | 60% / 160% | 土地国土法 | |
| 許可番号 | 建築基準法 | ||
| 法令制限 | |||
| 小学区 | 習志野台第二小学校 徒歩2分 (約160m) | 中学区 | 習志野台中学校 徒歩7分 (約540m) |
| 現況 | 空 | 引渡 | 期日指定:2025年06月下旬 |
| その他費用 | |||
| 周辺環境 | 船橋市立習志野台第二小学校 徒歩2分 (約160m) 船橋市立習志野台中学校 徒歩7分 (約540m) UFO公園 徒歩7分 (約490m) ヨークマート習志野台店 徒歩6分 (約470m) 船橋市東図書館 徒歩6分 (約480m) セブンイレブン船橋習志野台4丁目店 徒歩9分 (約670m) 習志野台アベリア公園 徒歩9分 (約670m) オレンジ公園 徒歩9分 (約720m) 船橋いづみ幼稚園 徒歩10分 (約770m) 習志野台4丁目2号子供の広場 徒歩10分 (約740m) |
||
| 備考 | |||
| 物件番号 | 4352777 | 取引態様 | 媒介 |
取扱店舗情報
ハウスドゥ 薬園台駅前 合同会社ネクステージ 店舗詳細ページへ
| 電話番号 | 047-401-0440 |
|---|---|
| 所在地 | 〒274-0077 千葉県船橋市薬円台6丁目5-1 |
| 営業時間 | 10:00~18:00 |
| 定休日 | 火曜日、水曜日 |
| 宅建免許番号 | 千葉県知事(1)第18892号 |
| アクセス | 店舗への地図はこちら |

来店ご予約
千葉県船橋市で価格が似ている物件はこちら
- 千葉県
マイページ物件数 - 2,883件
最近見た物件
-
-

-
- 新築一戸建て
- 3,490万円
-
八尾市長池町2丁目
-
近鉄大阪線近鉄八尾
-
-
-

-
- 新築一戸建て
- 4,480万円
-
春日市若葉台西1丁目
-
JR鹿児島本線春日
-
-
-

-
- 新築一戸建て
- 6,690万円
-
長久手市久保山
-
愛知高速東部丘陵線杁ヶ池公園
-
千葉県新築一戸建て新着物件
- お近くの店舗を探す
-
おすすめ物件
-
-

-
- 新築一戸建て
- 4,299万円
-
松戸市平賀
-
JR千代田・常磐緩行線北小金
-
-
-

-
- 新築一戸建て
- 4,090万円
-
柏市西原4丁目
-
東武野田線江戸川台
-
-
-

-
- 新築一戸建て
- 4,480万円
-
流山市鰭ケ崎
-
JR武蔵野線南流山
-
-
-

-
- 新築一戸建て
- 4,280万円
-
流山市鰭ケ崎
-
JR武蔵野線南流山
-
-
-

-
- 新築一戸建て
- 3,480万円
-
成田市寺台
-
JR成田線成田
-
-
-

-
- 新築一戸建て
- 5,388万円
-
流山市鰭ケ崎
-
つくばエクスプレス南流山
-
-
-

-
- 新築一戸建て
- 5,299万円
-
流山市江戸川台西1丁目
-
東武野田線江戸川台
-
-
-

-
- 新築一戸建て
- 3,780万円
-
成田市寺台
-
JR成田線成田
-
-
-

-
- 新築一戸建て
- 4,680万円
-
流山市野々下5丁目
-
東武野田線豊四季
-
-
-

-
- 新築一戸建て
- 3,680万円
-
成田市寺台
-
JR成田線成田
-
































