小平市学園西町2丁目の新築戸建
掲載情報更新日:2025年10月30日 次回更新予定日:2025年11月13日
- 5,780万円
-
- 借入ご希望金額
万円 - 借入期間
年 - 借入金利
% - 月々のお支払い金額
円
- 借入ご希望金額
※ 月々のお支払例は目安の試算となりますので、実際の金額とは異なる場合がございます。詳しくは店舗までお問合わせください。
- 小平市学園西町2丁目
-
JR武蔵野線『新小平』 徒歩11分 (約880m)
西武多摩湖線『一橋学園』 徒歩11分 (約880m)
小平市学園西町2丁目一戸建て | 物件情報
2駅2路線利用可能で、且つ「国分寺駅」までのアクセスも良好(1駅4分)
周辺には教育・商業施設も豊富♪
太陽光パネル搭載物件、全区画整形地にて多種多様なライフスタイルを見据えたプランにて、
高品質デザイン住宅限定3邸堂々誕生!
物件の設備
- 電気
- 上水道
- 公営水道
- 下水道
- 都市ガス
- 浄水器
- 食器乾燥機
- 食器洗浄乾燥機
- 電気コンロ
- システムキッチン
- バス
- ユニットバス
- トイレ2箇所
- 温水洗浄便座
- 室内洗濯機置場
- 洗髪洗面化粧台
- 太陽光発電システム
- モニタ付インターホン
- 火災警報器/報知機
- ロフト
- LDK15畳以上
- LDK18畳以上
- フローリング
- 24時間換気システム
- バルコニー
物件の特徴
- 南向
- 小学校徒歩10分以内
- 2階建
- フラット35Sに対応
物件詳細情報
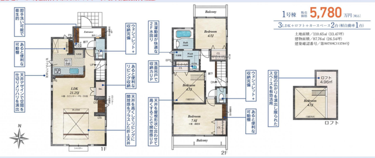
| 価格 | 5,780万円 | 間取り | 3LDK |
|---|---|---|---|
| 物件種別 | 新築一戸建て | ||
| 所在地 | 東京都小平市学園西町2丁目 | ||
| アクセス |
|
||
| 建物面積 | 87.76㎡ | 駐車場 | あり |
| 築年月 | 2025年(令和7年)12月予定 | 建築確認 | 第R07SHC113784号 |
| 建物構造 | 木造 2階建 | 工法 | |
| 主要採光 | 南向 | バルコニー | |
| 保証・評価 | |||
| 土地面積 | 110.65㎡(33.47坪) | 接道 | |
| 私道 | セットバック | ||
| 地目 | 宅地 | 地勢 | |
| 権利 | 所有権 |
||
| 都市計画 | 市街化区域 |
用途地域 | 1種低層 |
| 建ぺい/容積率 | 40% / 80% | 土地国土法 | |
| 許可番号 | 建築基準法 | ||
| 法令制限 | 高度地区・景観法・法22条区域 | ||
| 小学区 | 第十五小学校 徒歩10分 (約780m) | 中学区 | 小平第四中学校 徒歩15分 (約1200m) |
| 現況 | 建築中 | 引渡 | 期日指定:2026年01月下旬 |
| その他費用 | |||
| 備考 | 住宅設備機器修理サービス対象物件⇒あんしんプラチナパック15年保証12万円(税込) 「耐震等級3」、「断熱等性能等級5」、「一次エネルギー消費量等級6」取得予定!※物件完成後に取得予定。地震に強く、冷暖房のエネルギー消費が少ない住まいです。高品質低コストを追求した分譲住宅。 |
||
| 物件番号 | 4357934 | 取引態様 | 媒介 |
取扱店舗情報
ハウスドゥ 国分寺本町4丁目 株式会社エンジョイパパ 店舗詳細ページへ
| 電話番号 | 042-313-9555 |
|---|---|
| 所在地 | 〒185-0012 東京都国分寺市本町4丁目3番16号サンクレストビル101 |
| 営業時間 | 10:00~14:00 |
| 定休日 | 水曜日、土曜日、日曜日 |
| 宅建免許番号 | 東京都知事(1)第111593号 |
| アクセス | 店舗への地図はこちら |

来店ご予約
東京都小平市で価格が似ている物件はこちら
- 東京都
マイページ物件数 - 5,436件
最近見た物件
-
-

-
- 新築一戸建て
- 5,480万円
-
国立市青柳1丁目
-
JR南武線矢川
-
東京都新築一戸建て新着物件
- お近くの店舗を探す
-
おすすめ物件
-
-

-
- 新築一戸建て
- 5,390万円
-
調布市佐須町1丁目
-
京王線布田
-
-
-

-
- 新築一戸建て
- 5,999万円
-
国分寺市北町5丁目
-
西武国分寺線鷹の台
-
-
-

-
- 新築一戸建て
- 8,180万円
-
大田区中央6丁目
-
東急池上線池上
-
-
-

-
- 新築一戸建て
- 7,580万円
-
大田区中央6丁目
-
東急池上線池上
-
-
-

-
- 新築一戸建て
- 6,590万円
-
狛江市東野川2丁目
-
小田急小田原線喜多見
-
-
-

-
- 新築一戸建て
- 1億4,990万円
-
世田谷区上馬5丁目
-
東急田園都市線駒沢大学
-
-
-

-
- 新築一戸建て
- 7,580万円
-
調布市国領町7丁目
-
京王線国領
-
-
-

-
- 新築一戸建て
- 7,880万円
-
横浜市青葉区たちばな台2丁目
-
東急田園都市線青葉台
-
-
-

-
- 新築一戸建て
- 6,780万円
-
三鷹市中原2丁目
-
京王線つつじヶ丘
-
-
-

-
- 新築一戸建て
- 8,199万円
-
江戸川区南葛西5丁目
-
JR京葉線葛西臨海公園
-










