沖縄市古謝1丁目の新築戸建
掲載情報更新日:2025年10月28日 次回更新予定日:2025年11月11日
- 3,698万円
-
- 借入ご希望金額
万円 - 借入期間
年 - 借入金利
% - 月々のお支払い金額
円
- 借入ご希望金額
※ 月々のお支払例は目安の試算となりますので、実際の金額とは異なる場合がございます。詳しくは店舗までお問合わせください。
- 沖縄市古謝1丁目
-
バス 『古謝』 徒歩3分 (約240m)
沖縄市古謝1丁目一戸建て | 物件情報
物件の設備
- 電気
- 上水道
- 公営水道
- 下水道
- 公共下水
- プロパンガス
- 浄水器
- 食器洗浄乾燥機
- コンロ三口
- カウンターキッチン
- システムキッチン
- バス
- ユニットバス
- バス1坪以上
- 追焚機能
- 浴室暖房
- 浴室乾燥機
- トイレ
- トイレ2箇所
- 温水洗浄便座
- 室内洗濯機置場
- 洗髪洗面化粧台
- 洗面所独立
- モニタ付インターホン
- LDK18畳以上
- フローリング
- 全室フローリング
- 24時間換気システム
- 網戸
- クローゼット
- クローゼット3箇所
- ウォークインクローゼット
- 床下収納
- 全居室収納
- シューズボックス
物件の特徴
- 2階建
- フラット35Sに対応
物件詳細情報
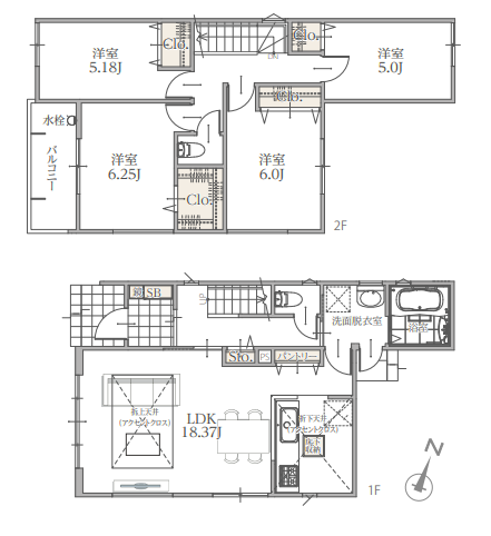
| 価格 | 3,698万円 | 間取り | 4LDK |
|---|---|---|---|
| 物件種別 | 新築一戸建て | ||
| 所在地 | 沖縄県沖縄市古謝1丁目 2号棟 | ||
| アクセス |
|
||
| 建物面積 | 99.46㎡ | 駐車場 | あり 普通:2台 |
| 築年月 | 2025年(令和7年)07月築 | 建築確認 | 第BVJ-YOK25-10-0051号 |
| 建物構造 | 木造 2階建 | 工法 | |
| 主要採光 | バルコニー | ||
| 保証・評価 | |||
| 分譲情報 | 【販売戸数】:2戸 【価格】:3,898万円 ~3,998万円 【土地面積】:123.70㎡ ~125.53㎡ |
||
| 土地面積 | 123.7㎡(37.41坪) | 接道 | 西側(公道)幅 約4.1m |
| 私道 | セットバック | ||
| 地目 | 宅地 | 地勢 | |
| 権利 | 所有権 |
||
| 都市計画 | 非線引区域 |
用途地域 | 指定無 |
| 建ぺい/容積率 | 70% / 200% | 土地国土法 | |
| 許可番号 | 建築基準法 | ||
| 法令制限 | |||
| 小学区 | 美東小学校 徒歩9分 (約700m) | 中学区 | 沖縄東中学校 徒歩12分 (約950m) |
| 現況 | 完工済 | 引渡 | 未記入 |
| その他費用 | |||
| 備考 | □美東幼稚園‥‥‥‥‥‥徒歩約10分 □サンエーV21食品館‥‥‥徒歩約6分 □フレッシュプラザユニオン‥‥徒歩約8分 □あわせモール‥‥‥‥‥‥徒歩約8分 □マツモトキヨシ‥‥‥‥‥‥徒歩約7分 |
||
| 物件番号 | 4361355 | 取引態様 | 媒介 |
取扱店舗情報
ハウスドゥ うるまみどり町 合同会社ヒロ商事 店舗詳細ページへ
| 電話番号 | 098-988-5580 |
|---|---|
| 所在地 | 〒904-2215 沖縄県うるま市みどり町4丁目6-7 |
| 営業時間 | 9:00~18:00 |
| 定休日 | 水曜日、年末年始、お盆休暇 |
| 宅建免許番号 | 沖縄県知事(2)第5047号 |
| アクセス | 店舗への地図はこちら |

来店ご予約
沖縄県沖縄市で価格が似ている物件はこちら
- 沖縄県
マイページ物件数 - 3,958件
沖縄県新築一戸建て新着物件
- お近くの店舗を探す
-
おすすめ物件
-
-

-
- 新築一戸建て
- 3,698万円
-
国頭郡今帰仁村字平敷
-
平敷バス停
-
-
-

-
- 新築一戸建て
- 3,790万円
-
豊見城市字饒波
-
団地内郵便局前バス停
-
-
-

-
- 新築一戸建て
- 4,280万円
-
那覇市具志2丁目
-
沖縄都市モノレール赤嶺
-
-
-

-
- 新築一戸建て
- 3,690万円
-
豊見城市字饒波
-
団地内郵便局前バス停
-
-
-

-
- 新築一戸建て
- 3,498万円
-
国頭郡宜野座村字松田
-
松田小学校前バス停
-
-
-

-
- 新築一戸建て
- 4,490万円
-
豊見城市字根差部
-
根差部バス停
-
-
-

-
- 新築一戸建て
- 4,588万円
-
島尻郡与那原町字与那原
-
与那原小学校前バス停
-
-
-

-
- 新築一戸建て
- 5,198万円
-
豊見城市字我那覇
-
松川
-
-
-

-
- 新築一戸建て
- 3,390万円
-
糸満市字真栄里
-
糸満営業所バス停
-
-
-

-
- 新築一戸建て
- 1億800万円
-
豊見城市字豊崎
-
アウトレットモールあしびなー前
-










































