長野市上松5丁目の新築戸建
掲載情報更新日:2025年12月22日 次回更新予定日:2026年01月05日
- 2,820万円
-
- 借入ご希望金額
万円 - 借入期間
年 - 借入金利
% - 月々のお支払い金額
円
- 借入ご希望金額
※ 月々のお支払例は目安の試算となりますので、実際の金額とは異なる場合がございます。詳しくは店舗までお問合わせください。
- 長野市上松5丁目
-
長野電鉄長野線『本郷』 徒歩31分 (約2480m)
JR北陸新幹線『長野』 バス乗車17分 浅川農協前 停 徒歩3分 (約240m)
長野市上松5丁目一戸建て | 物件情報
駐車スペース3台以上! 高コスパの物件が登場♪
■追焚機能
■シャワー付き洗面化粧台
■温水洗浄便座
■浴室に窓あり
■カウンターキッチン
■システムキッチン
■3口以上コンロ
■全居室収納
■ウォークインクローゼット
■モニター付きインターホン
■上水道
■下水道
■庭
■ダウンライト
■火災警報器(報知器)
■複層ガラス
■Low-Eガラス
物件の設備
- 上水道
- 下水道
- コンロ三口
- カウンターキッチン
- システムキッチン
- 追焚機能
- 浴室に窓
- 温水洗浄便座
- 洗髪洗面化粧台
- ダウンライト
- モニタ付インターホン
- 火災警報器/報知機
- 複層ガラス
- クローゼット
- ウォークインクローゼット
- 全居室収納
物件の特徴
- 2階建
物件詳細情報
| 価格 | 2,820万円 | 間取り | 3LDK |
|---|---|---|---|
| 物件種別 | 新築一戸建て | ||
| 所在地 | 長野県長野市上松5丁目 | ||
| アクセス |
|
||
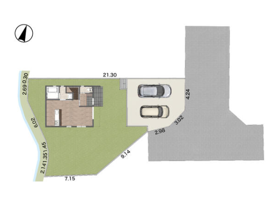
| 建物面積 | 72.04㎡ | 駐車場 | あり 普通:3台 |
| 築年月 | 2026年(令和8年)08月予定 | 建築確認 | 25NJK-10-00591号 |
| 建物構造 | 木造 2階建 | 工法 | |
| 主要採光 | 南向 | バルコニー | |
| 保証・評価 | |||
| 土地面積 | 実205.64㎡(62.20坪) | 接道 | 東側(公道)幅 約4.7m 間口 約10.20m |
| 私道 | セットバック | ||
| 地目 | 宅地 | 地勢 | |
| 権利 | 所有権 |
||
| 都市計画 | 市街化区域 |
用途地域 | 1種住居 |
| 建ぺい/容積率 | 60% / 200% | 土地国土法 | |
| 許可番号 | 建築基準法 | ||
| 法令制限 | |||
| 小学区 | 湯谷小学校 徒歩10分 (約800m) | 中学区 | 柳町中学校 徒歩38分 (約3000m) |
| 現況 | 建築中 | 引渡 | 期日指定:2026年08月以降 |
| その他費用 | |||
| 周辺環境 | 浅川中央保育園 徒歩8分 (約630m) 湯谷小学校 徒歩10分 (約800m) 柳町中学校 徒歩38分 (約3000m) デリシアうえまつ店 徒歩15分 (約1200m) 西友長野北店 徒歩17分 (約1300m) セブンイレブン長野浅川店 徒歩3分 (約180m) ローソン長野上松3丁目店 徒歩5分 (約400m) 浅川郵便局 徒歩6分 (約450m) |
||
| 備考 | ※完成後2ヶ月間モデルハウスとして利用させていただき、その後お客様へのお引渡しとなります | ||
| 物件番号 | 4366941 | 取引態様 | 媒介 |
取扱店舗情報
ハウスドゥ 西尾張部 株式会社アークビルド 店舗詳細ページへ
| 電話番号 | 026-217-7920 |
|---|---|
| 所在地 | 〒381-0031 長野県長野市西尾張部1003-1 |
| 営業時間 | 9:00~18:00 |
| 定休日 | 水曜日、年末年始 |
| 宅建免許番号 | 長野県知事(1)第5762号 |
| アクセス | 店舗への地図はこちら |

来店ご予約
長野県長野市で価格が似ている物件はこちら
- 長野県
マイページ物件数 - 1,300件
最近見た物件
長野県新築一戸建て新着物件
- お近くの店舗を探す
-
おすすめ物件
-
-

-
- 新築一戸建て
- 2,880万円
-
長野市吉田2丁目
-
長野電鉄長野線桐原
-
-
-

-
- 新築一戸建て
- 3,130万円
-
塩尻市大字広丘堅石
-
JR中央本線塩尻
-
-
-

-
- 新築一戸建て
- 2,880万円
-
塩尻市大字広丘野村
-
JR篠ノ井線広丘
-
-
-

-
- 新築一戸建て
- 3,080万円
-
塩尻市大字大門
-
JR中央本線塩尻
-
-
-

-
- 新築一戸建て
- 3,230万円
-
塩尻市大門八番町
-
JR中央本線塩尻
-
-
-

-
- 新築一戸建て
- 3,230万円
-
塩尻市大字広丘堅石
-
JR中央本線塩尻
-
-
-

-
- 新築一戸建て
- 3,290万円
-
長野市三本柳東3丁目
-
JR信越本線川中島
-
-
-

-
- 新築一戸建て
- 2,630万円
-
塩尻市大字塩尻町
-
JR中央本線みどり湖
-
-
-

-
- 新築一戸建て
- 2,680万円
-
安曇野市三郷明盛
-
JR大糸線一日市場
-
-
-

-
- 新築一戸建て
- 3,180万円
-
塩尻市大字大門
-
JR中央本線塩尻
-


























保育園、小学校が近く子育て世代も安心の立地です♪