船橋市習志野台4丁目 A号棟
掲載情報更新日:2026年01月16日 次回更新予定日:2026年01月30日
- 4,590万円
-
- 借入ご希望金額
万円 - 借入期間
年 - 借入金利
% - 月々のお支払い金額
円
- 借入ご希望金額
※ 月々のお支払例は目安の試算となりますので、実際の金額とは異なる場合がございます。詳しくは店舗までお問合わせください。
- 船橋市習志野台4丁目
-
京成電鉄松戸線『習志野』 徒歩8分 (約610m)
京成電鉄松戸線『北習志野』 徒歩12分 (約960m)
東葉高速鉄道『北習志野』 徒歩12分 (約960m)
船橋市習志野台4丁目 A号棟一戸建て | 物件情報
☆HouseDo薬園台駅前のアピールポイント☆
戸建て・マンション・土地など どんな物件でもご紹介可能!
ローンに不安がある方も安心、資金計画から丁寧にサポートさせて頂きます!
外国籍のお客様もご相談ください、安心してお取引いただけます。
地域密着ならではの最新情報と豊富な実績で、理想のお住まい探しをお手伝いします!
☆HouseDo薬園台駅前の営業内容☆
新築戸建・中古戸建・中古マンションの売買仲介
不動産の買取・査定・資産活用のご相談
住宅ローン相談・リフォーム提案
物件の設備
- 電気
- 公営水道
- 公共下水
- 都市ガス
- 給湯
- 浄水器
- コンロ三口
- カウンターキッチン
- システムキッチン
- ユニットバス
- 追焚機能
- トイレ
- トイレ2箇所
- 室内洗濯機置場
- 洗髪洗面化粧台
- 洗面所独立
- クローゼット
- ウォークインクローゼット
- 床下収納
- 全居室収納
物件の特徴
- 2階建
物件詳細情報
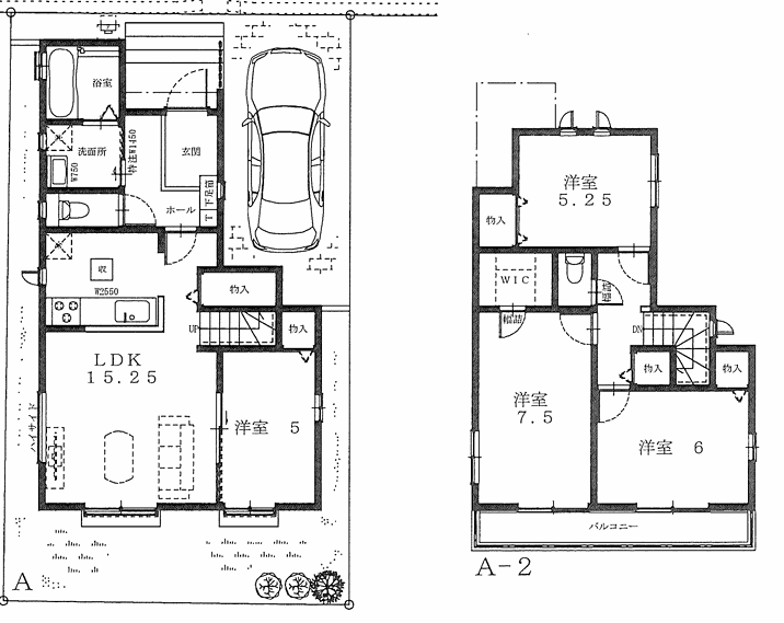
| 価格 | 4,590万円 | 間取り | 4LDK |
|---|---|---|---|
| 物件種別 | 新築一戸建て | ||
| 所在地 | 千葉県船橋市習志野台4丁目 A | ||
| アクセス |
|
||
| 建物面積 | 実95.43㎡ | 駐車場 | なし |
| 築年月 | 2025年(令和7年)12月予定 | 建築確認 | 第HPA-25-10384-1号 |
| 建物構造 | 木造 2階建 | 工法 | |
| 主要採光 | 南西向 | バルコニー | |
| 保証・評価 | |||
| 分譲情報 | |||
| 土地面積 | 実111.23㎡(33.64坪) | 接道 | |
| 私道 | セットバック | ||
| 地目 | 宅地 | 地勢 | |
| 権利 | 所有権 |
||
| 都市計画 | 市街化区域 |
用途地域 | 1種中高 |
| 建ぺい/容積率 | 60% / 200% | 土地国土法 | |
| 許可番号 | 建築基準法 | ||
| 法令制限 | |||
| 小学区 | 薬円台小学校 徒歩10分 (約730m) | 中学区 | 習志野台中学校 徒歩13分 (約1030m) |
| 現況 | 建築中 | 引渡 | 期日指定:2025年12月下旬以降 |
| その他費用 | |||
| 周辺環境 | 習志野駅 徒歩8分 (約610m) 北習志野駅 徒歩12分 (約960m) 習志野台ようこう公園 徒歩4分 (約320m) 瑞穂幼稚園 徒歩2分 (約160m) セブンイレブン船橋習志野台4丁目店 徒歩5分 (約360m) 船橋市東図書館 徒歩6分 (約480m) ヨークマート 習志野台店 徒歩7分 (約490m) 共立習志野台病院 徒歩6分 (約420m) せき内科クリニック 徒歩7分 (約490m) マルエツ習志野店 徒歩7分 (約500m) |
||
| 備考 | 図面なし | ||
| 物件番号 | 4372981 | 取引態様 | 媒介 |
取扱店舗情報
ハウスドゥ 薬園台駅前 合同会社ネクステージ 店舗詳細ページへ
| 電話番号 | 047-401-0440 |
|---|---|
| 所在地 | 〒274-0077 千葉県船橋市薬円台6丁目5-1 |
| 営業時間 | 10:00~18:00 |
| 定休日 | 火曜日、水曜日 |
| 宅建免許番号 | 千葉県知事(1)第18892号 |
| アクセス | 店舗への地図はこちら |

来店ご予約
千葉県船橋市で価格が似ている物件はこちら
- 千葉県
マイページ物件数 - 2,846件
千葉県新築一戸建て新着物件
-
-

-
- 新築一戸建て
- 5,490万円
-
松戸市三矢小台3丁目
-
北総鉄道矢切駅
-
-
-

-
- 新築一戸建て
- 4,890万円
-
松戸市三矢小台3丁目
-
北総鉄道矢切駅
-
-
-

-
- 新築一戸建て
- 5,790万円
-
松戸市新松戸6丁目
-
JR千代田・常磐緩行線新松戸駅
-
-
-

-
- 新築一戸建て
- 5,790万円
-
松戸市新松戸6丁目
-
JR千代田・常磐緩行線新松戸駅
-
-
-

-
- 新築一戸建て
- 4,790万円
-
松戸市新松戸6丁目
-
JR千代田・常磐緩行線新松戸駅
-
-
-

-
- 新築一戸建て
- 4,790万円
-
松戸市新松戸6丁目
-
JR千代田・常磐緩行線新松戸駅
-
-
-

-
- 新築一戸建て
- 4,690万円
-
松戸市二十世紀が丘美野里町
-
JR常磐線松戸駅
-
- お近くの店舗を探す
-













担当エージェント:むぎちゃん
★先着10組限定!今だけ!弊社独自キャンペーン★
物件内覧、弊社アンケートにご記入でギフトカード1,000円分プレゼントキャンペーン開催中!
※ご希望物件の内覧と弊社指定アンケートへのご記入をして頂いたお客様がキャンペーンの対象になります。
※弊社へのお問合せご利用が初めてのお客様に限ります。
※お客様の方から担当者に事前に必ずキャンペーンを見ましたとお伝え下さい。(こちらからのご案内はしませんのでご理解宜しくお願い致します。)
■当日見学OK■
営業時間内(10:00~18:00)は、下記電話フォームよりお電話をして頂けるとスムーズにご内覧のご案内ができます。