熊本市南区城南町高の新築戸建
掲載情報更新日:2025年12月01日 次回更新予定日:2025年12月15日
- 2,088万円
-
- 借入ご希望金額
万円 - 借入期間
年 - 借入金利
% - 月々のお支払い金額
円
- 借入ご希望金額
※ 月々のお支払例は目安の試算となりますので、実際の金額とは異なる場合がございます。詳しくは店舗までお問合わせください。
- 熊本市南区城南町高
-
JR三角線『川尻』 徒歩65分 (約5200m)
JR三角線『富合』 徒歩70分 (約5600m)
JR三角線『西熊本』 車14分(約6.8km)
熊本市南区城南町高一戸建て | 物件情報
物件の設備
- 電気
- オール電化
- 上水道
- 下水道
- IHクッキングヒータ
- コンロ三口
- グリル
- カウンターキッチン
- システムキッチン
- バス
- 追焚機能
- 浴室暖房
- 浴室乾燥機
- 浴室に窓
- トイレ
- 温水洗浄便座
- 室内洗濯機置場
- モニタ付インターホン
- 火災警報器/報知機
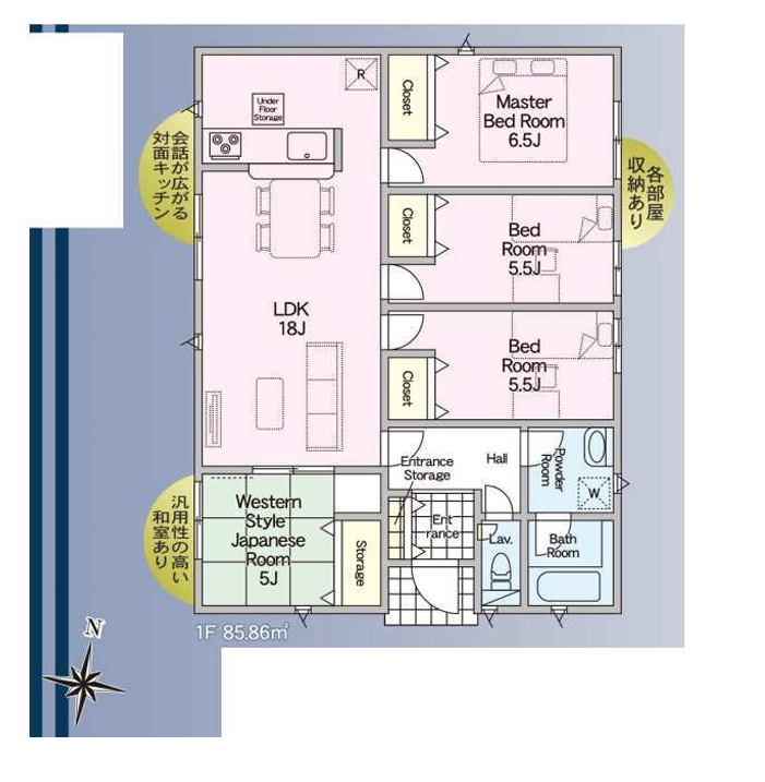
- LDK18畳以上
- 和室
- 複層ガラス
- フローリング
- 24時間換気システム
- クローゼット3箇所
- シューズボックス
物件の特徴
- 陽当り良好
- 平坦地
物件詳細情報
| 価格 | 2,088万円 | 間取り | 4LDK |
|---|---|---|---|
| 物件種別 | 新築一戸建て | ||
| 所在地 | 熊本県熊本市南区城南町高 1号 | ||
| アクセス |
|
||
| 建物面積 | 85.86㎡ | 駐車場 | あり |
| 築年月 | 2025年(令和7年)08月築 | 建築確認 | 第R7SHC108592号 |
| 建物構造 | 木造 1階建 | 工法 | |
| 主要採光 | バルコニー | ||
| 保証・評価 | |||
| 土地面積 | 222.43㎡(67.28坪) | 接道 | |
| 私道 | セットバック | ||
| 地目 | 宅地 | 地勢 | 平坦 |
| 権利 | 所有権 |
||
| 都市計画 | 調整区域 開発許可等による分譲地内 |
用途地域 | 指定無 |
| 建ぺい/容積率 | 40% / 80% | 土地国土法 | |
| 許可番号 | 建築基準法 | ||
| 法令制限 | 宅地造成工事規制区域 | ||
| 小学区 | 杉上小学校 徒歩25分 (約2000m) | 中学区 | 下益城城南中学校 徒歩44分 (約3500m) |
| 現況 | 建築中 | 引渡 | 未記入 |
| その他費用 | |||
| 周辺環境 | ローソン 熊本城南赤見店 徒歩13分 (約1040m) | ||
| 備考 | |||
| 物件番号 | 4374244 | 取引態様 | 媒介 |
取扱店舗情報
ハウスドゥ 大江 まつばや百貨店不動産株式会社 店舗詳細ページへ
| 電話番号 | 096-206-1230 |
|---|---|
| 所在地 | 〒862-0971 熊本県熊本市中央区大江1丁目2-19 |
| 営業時間 | 9:00~18:00 |
| 定休日 | 水曜日 |
| 宅建免許番号 | 熊本県知事(1)第5729号 |
| アクセス | 店舗への地図はこちら |

来店ご予約
熊本県熊本市南区で価格が似ている物件はこちら
- 熊本県
マイページ物件数 - 2,938件
最近見た物件
熊本県新築一戸建て新着物件
-
-

-
- 新築一戸建て
- 3,598万円
-
上益城郡嘉島町大字上仲間
-
JR三角線川尻駅
-
-
-

-
- 新築一戸建て
- 3,698万円
-
上益城郡嘉島町大字上仲間
-
JR三角線川尻駅
-
-
-

-
- 新築一戸建て
- 3,288万円
-
熊本市西区田崎3丁目
-
熊本市健軍線田崎橋駅
-
-
-

-
- 新築一戸建て
- 3,388万円
-
熊本市西区田崎3丁目
-
熊本市健軍線田崎橋駅
-
-
-

-
- 新築一戸建て
- 4,098万円
-
菊池郡菊陽町沖野3丁目
-
JR豊肥本線光の森駅
-
-
-

-
- 新築一戸建て
- 3,798万円
-
菊池郡菊陽町沖野3丁目
-
JR豊肥本線光の森駅
-
-
-

-
- 新築一戸建て
- 2,898万円
-
菊池郡菊陽町大字馬場楠
-
JR豊肥本線原水駅
-
- お近くの店舗を探す
-
おすすめ物件
-
-

-
- 新築一戸建て
- 3,298万円
-
熊本市北区清水新地1丁目
-
熊本電気鉄道堀川
-
-
-

-
- 新築一戸建て
- 3,499万円
-
熊本市東区尾ノ上3丁目
-
熊本市健軍線神水交差点
-
-
-

-
- 新築一戸建て
- 2,980万円
-
熊本市中央区出水6丁目
-
JR豊肥本線南熊本
-
-
-

-
- 新築一戸建て
- 2,998万円
-
熊本市南区幸田2丁目
-
JR豊肥本線平成
-
-
-

-
- 新築一戸建て
- 3,198万円
-
合志市御代志
-
熊本電気鉄道御代志
-





