相模原市中央区田名の新築戸建
掲載情報更新日:2026年01月19日 次回更新予定日:2026年02月02日
- 3,880万円
-
- 借入ご希望金額
万円 - 借入期間
年 - 借入金利
% - 月々のお支払い金額
円
- 借入ご希望金額
※ 月々のお支払例は目安の試算となりますので、実際の金額とは異なる場合がございます。詳しくは店舗までお問合わせください。
- 相模原市中央区田名
-
JR相模線『上溝』 バス乗車18分 四ツ谷 停 徒歩5分 (約400m)
JR横浜線『相模原』 バス乗車29分 四ツ谷 停 徒歩5分 (約400m)
相模原市中央区田名一戸建て | 物件情報
物件の設備
- 浴室に窓
- トイレ2箇所
- 室内洗濯機置場
- LDK18畳以上
- 全室2面採光
- フローリング
- ウォークインクローゼット
- 納戸
- 床下収納
- シューズボックス
- シューズインクローク
- 2WAYバルコニー
物件の特徴
- 2階建
物件詳細情報
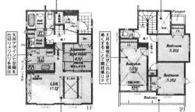
| 価格 | 3,880万円 | 間取り | 3LDK+S |
|---|---|---|---|
| 物件種別 | 新築一戸建て | ||
| 所在地 | 神奈川県相模原市中央区田名 1号棟/2区画 | ||
| アクセス |
|
||
| 建物面積 | 99.46㎡ | 駐車場 | あり |
| 築年月 | 2025年(令和7年)10月予定 | 建築確認 | 25KAK建確00784 |
| 建物構造 | 木造 2階建 | 工法 | |
| 主要採光 | バルコニー | ||
| 保証・評価 | |||
| 分譲情報 | 【販売戸数】:2戸 |
||
| 土地面積 | 114.89㎡(34.75坪) | 接道 | 南東側(公道)幅 約4.6m |
| 私道 | セットバック | ||
| 地目 | 宅地 | 地勢 | |
| 権利 | 所有権 |
||
| 都市計画 | 市街化区域 |
用途地域 | 1種住居 |
| 建ぺい/容積率 | 60% / 200% | 土地国土法 | |
| 許可番号 | 建築基準法 | ||
| 法令制限 | 宅地造成工事規制区域・準防火地域・日影制限有・隣地斜線制限・開発区域 | ||
| 小学区 | 田名北小学校 徒歩5分 (約354m) | 中学区 | 田名中学校 徒歩7分 (約527m) |
| 現況 | 完工済 | 引渡 | 相談 |
| その他費用 | |||
| 備考 | ■相模原市立田名保育園・・・約1200m(徒歩16分) ■うえだな幼稚園・・・約608m(徒歩8分) ■ヨークフーズ 田名店・・・約442m(徒歩6分) ■セブンイレブン 相模原田名堀之内店・・・約413m(徒歩6分) ■ウェルパーク 相模原田名店・・・約292m(徒歩4分) ■小野内科医院・・・約193m(徒歩3分) ■田名四ツ谷やよい公園・・・約275m(徒歩4分) |
||
| 物件番号 | 4375403 | 取引態様 | 媒介 |
取扱店舗情報
ハウスドゥ!相模原横山台店 夢のなかまたち株式会社 店舗詳細ページへ
| 電話番号 | 042-851-3970 |
|---|---|
| 所在地 | 〒252-0241 神奈川県相模原市中央区横山台2丁目13番1号1F |
| 営業時間 | 9:00~18:00 |
| 定休日 | 火曜日、水曜日 |
| 宅建免許番号 | 神奈川県知事(2)第30659号 |
| アクセス | 店舗への地図はこちら |

来店ご予約
神奈川県相模原市中央区で価格が似ている物件はこちら
- 神奈川県
マイページ物件数 - 3,133件
最近見た物件
-
-

-
- 土地
- 500万円
-
山口市小郡下郷津市上
-
JR山口線周防下郷
-
-
-

-
- 土地
- 980万円
-
川口市桜町6丁目
-
埼玉高速鉄道鳩ヶ谷
-
-
-

-
- 土地
- 690.17万円
-
倉敷市五日市
-
JR山陽本線倉敷
-
神奈川県新築一戸建て新着物件
-
-

-
- 新築一戸建て
- 5,699万円
-
横浜市磯子区杉田7丁目
-
京急本線杉田駅
-
-
-

-
- 新築一戸建て
- 4,999万円
-
横浜市南区六ツ川3丁目
-
JR横須賀線東戸塚駅
-
-
-

-
- 新築一戸建て
- 3,580万円
-
平塚市河内2丁目
-
JR東海道本線平塚駅
-
-
-

-
- 新築一戸建て
- 3,280万円
-
平塚市河内2丁目
-
JR東海道本線平塚駅
-
-
-

-
- 新築一戸建て
- 3,180万円
-
平塚市河内2丁目
-
JR東海道本線平塚駅
-
-
-

-
- 新築一戸建て
- 3,680万円
-
平塚市河内2丁目
-
JR東海道本線平塚駅
-
-
-

-
- 新築一戸建て
- 2,990万円
-
平塚市南金目
-
小田急小田原線東海大学前駅
-
- お近くの店舗を探す
-
おすすめ物件
-
-

-
- 新築一戸建て
- 7,180万円
-
横浜市中区本郷町3丁目
-
JR京浜東北・根岸線山手
-
-
-

-
- 新築一戸建て
- 4,580万円
-
厚木市妻田南1丁目
-
小田急小田原線本厚木
-
-
-

-
- 新築一戸建て
- 5,599万円
-
横浜市南区大岡3丁目
-
横浜市営地下鉄ブルーライン弘明寺
-
-
-

-
- 新築一戸建て
- 2,680万円
-
平塚市公所
-
JR東海道本線平塚
-






















