熊本市北区八景水谷1丁目の新築戸建
掲載情報更新日:2026年01月19日 次回更新予定日:2026年02月02日
- 3,788.10万円
-
- 借入ご希望金額
万円 - 借入期間
年 - 借入金利
% - 月々のお支払い金額
円
- 借入ご希望金額
※ 月々のお支払例は目安の試算となりますので、実際の金額とは異なる場合がございます。詳しくは店舗までお問合わせください。
- 熊本市北区八景水谷1丁目
-
熊本電気鉄道『堀川』 徒歩10分 (約750m)
熊本電気鉄道『新須屋』 徒歩19分 (約1500m)
熊本電気鉄道『八景水谷』 徒歩20分 (約1600m)
熊本市北区八景水谷1丁目一戸建て | 物件情報
物件の設備
- オール電化
- 食器洗浄乾燥機
- IHクッキングヒータ
- コンロ三口
- グリル
- カウンターキッチン
- システムキッチン
- オートバス
- バス1坪以上
- 追焚機能
- 浴室暖房
- 浴室乾燥機
- トイレ2箇所
- 温水洗浄便座
- 室内洗濯機置場
- 洗面所独立
- エアコン3基
- 省エネ給湯器
- ディンプルキー
- ダブルロックキー
- モニタ付インターホン
- 火災警報器/報知機
- 全室フローリング
- 24時間換気システム
- クローゼット3箇所
- ウォークインクローゼット
- 床下収納
- 全居室収納
- シューズボックス
- シューズインクローク
物件の特徴
- 閑静な住宅街
- 2階建
物件詳細情報
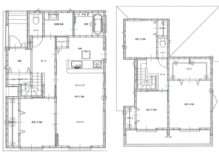
| 価格 | 3,788.10万円 | 間取り | 4LDK |
|---|---|---|---|
| 物件種別 | 新築一戸建て | ||
| 所在地 | 熊本県熊本市北区八景水谷1丁目 8号 | ||
| アクセス |
|
||
| 建物面積 | 118.41㎡ | 駐車場 | あり |
| 築年月 | 完成年月不詳 | 建築確認 | |
| 建物構造 | 木造 2階建 | 工法 | |
| 主要採光 | バルコニー | ||
| 保証・評価 | |||
| 土地面積 | 202.12㎡(61.14坪) | 接道 | |
| 私道 | セットバック | ||
| 地目 | 宅地 | 地勢 | |
| 権利 | 所有権 |
||
| 都市計画 | 市街化区域 |
用途地域 | 1種中高 |
| 建ぺい/容積率 | 60% / 150% | 土地国土法 | |
| 許可番号 | 建築基準法 | ||
| 法令制限 | |||
| 小学区 | 城北小学校 徒歩15分 (約1200m) | 中学区 | 清水中学校 徒歩19分 (約1500m) |
| 現況 | 完工済 | 引渡 | 相談 |
| その他費用 | |||
| 周辺環境 | ファミリーマート 八景水谷店 徒歩5分 (約390m) 熊本機能病院 徒歩7分 (約560m) DCM北部店 徒歩11分 (約850m) 熊本山室郵便局 徒歩12分 (約910m) 城北小学校 徒歩17分 (約1320m) |
||
| 備考 | |||
| 物件番号 | 4377342 | 取引態様 | 媒介 |
取扱店舗情報
ハウスドゥ 大江 まつばや百貨店不動産株式会社 店舗詳細ページへ
| 電話番号 | 096-206-1230 |
|---|---|
| 所在地 | 〒862-0971 熊本県熊本市中央区大江1丁目2-19 |
| 営業時間 | 9:00~18:00 |
| 定休日 | 水曜日 |
| 宅建免許番号 | 熊本県知事(1)第5729号 |
| アクセス | 店舗への地図はこちら |

来店ご予約
熊本県熊本市北区で価格が似ている物件はこちら
- 熊本県
マイページ物件数 - 2,582件
最近見た物件
-
-

-
- 中古一戸建て
- 2,398万円
-
西彼杵郡長与町高田郷
-
JR長崎本線高田
-
-
-

-
- 中古一戸建て
- 1,000万円
-
愛西市東保町中
-
名鉄尾西線佐屋
-
-
-

-
- 新築一戸建て
- 3,280万円
-
江南市江森町西
-
名鉄犬山線柏森
-
熊本県新築一戸建て新着物件
-
-

-
- 新築一戸建て
- 2,998万円
-
上益城郡益城町大字小池
-
土山
-
-
-

-
- 新築一戸建て
- 3,598万円
-
熊本市東区長嶺東3丁目
-
九州産交バス長嶺
-
-
-

-
- 新築一戸建て
- 3,298万円
-
熊本市東区三郎2丁目
-
JR豊肥本線東海学園前駅
-
-
-

-
- 新築一戸建て
- 2,898万円
-
上益城郡御船町大字小坂
-
熊本市健軍線健軍町駅
-
-
-

-
- 新築一戸建て
- 2,798万円
-
上益城郡御船町大字小坂
-
熊本市健軍線健軍町駅
-
-
-

-
- 新築一戸建て
- 4,090万円
-
熊本市中央区壺川1丁目
-
熊本電気鉄道藤崎宮前駅
-
-
-

-
- 新築一戸建て
- 3,890万円
-
熊本市中央区壺川1丁目
-
熊本電気鉄道藤崎宮前駅
-
- お近くの店舗を探す
-
おすすめ物件
-
-

-
- 新築一戸建て
- 2,590万円
-
熊本市南区御幸笛田1丁目
-
JR豊肥本線南熊本
-
-
-

-
- 新築一戸建て
- 3,198万円
-
合志市御代志
-
熊本電気鉄道御代志
-
-
-

-
- 新築一戸建て
- 2,580万円
-
熊本市南区御幸笛田1丁目
-
JR豊肥本線南熊本
-
-
-

-
- 新築一戸建て
- 2,998万円
-
熊本市南区幸田2丁目
-
JR豊肥本線平成
-
-
-

-
- 新築一戸建て
- 2,388万円
-
熊本市東区八反田1丁目
-
JR豊肥本線東海学園前
-
-
-

-
- 新築一戸建て
- 3,380万円
-
熊本市東区榎町
-
熊本市健軍線健軍町
-
-
-

-
- 新築一戸建て
- 3,298万円
-
熊本市北区清水新地1丁目
-
熊本電気鉄道堀川
-


