新築戸建 Terrechez門真市舟田町2期
掲載情報更新日:2025年12月06日 次回更新予定日:2025年12月20日
- 2,998万円
-
- 借入ご希望金額
万円 - 借入期間
年 - 借入金利
% - 月々のお支払い金額
円
- 借入ご希望金額
※ 月々のお支払例は目安の試算となりますので、実際の金額とは異なる場合がございます。詳しくは店舗までお問合わせください。
- 門真市舟田町
-
京阪本線『大和田』 徒歩19分 (約1520m)
京阪本線『古川橋』 徒歩20分 (約1600m)
京阪本線『門真市』 徒歩28分 (約2200m)
新築戸建 Terrechez門真市舟田町2期一戸建て | 物件情報
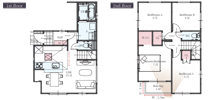
☆駅19分×4LDK×72.22㎡☆ 新築2階建て陽当り風通し◎♪
☆月々8.3万円~
☆2025年7月新築
☆最寄駅から京橋駅まで14分
☆陽当たり良好!
☆15.2帖LDK
☆駐車場1台
☆前面道路は交通量少。急なお子様の飛び出し安心です
☆近隣に学校、幼稚園、保育園、公園あり
☆ららぽーと門真まで自転車でアクセス可
【内覧会開催中】
本日ご案内可能な場合もございます。
複数件併せてご内見も可能♪
他の掲載物件もまとめてご内見頂けます。気になる物件をお教え下さい。
☆0120ー684-571
お気軽にお電話ください♪
☆立地のポイント
【大和田駅】徒歩約19分
物件の設備
- 電気
- 公営水道
- 下水道
- 都市ガス
物件の特徴
- セットバック済
- 2階建
物件詳細情報
| 価格 | 2,998万円 | 間取り | 4LDK |
|---|---|---|---|
| 物件種別 | 新築一戸建て | ||
| 所在地 | 大阪府門真市舟田町 | ||
| アクセス |
|
||
| 建物面積 | 96.62㎡ | 駐車場 | なし |
| 築年月 | 2025年(令和7年)07月築 | 建築確認 | |
| 建物構造 | 木造 2階建 | 工法 | |
| 主要採光 | バルコニー | ||
| 保証・評価 | |||
| 土地面積 | 72.22㎡(21.84坪) | 接道 | |
| 私道 | 含:24.69㎡ | セットバック | 済 |
| 地目 | 宅地 | 地勢 | |
| 権利 | 所有権 |
||
| 都市計画 | 市街化区域 |
用途地域 | 2種中高 |
| 建ぺい/容積率 | 60% / 160% | 土地国土法 | |
| 許可番号 | 建築基準法 | ||
| 法令制限 | |||
| 小学区 | 沖小学校 徒歩5分 (約400m) | 中学区 | 第二中学校 徒歩7分 (約550m) |
| 現況 | 空 | 引渡 | 相談 |
| その他費用 | |||
| 周辺環境 | 社会医療法人蒼生会 蒼生病院 徒歩12分 (約890m) 食品館アプロプラス門真店 徒歩15分 (約1160m) |
||
| 備考 | |||
| 物件番号 | 4380232 | 取引態様 | 媒介 |
取扱店舗情報
| 電話番号 | 050-5805-9447 |
|---|---|
| 所在地 | 〒536-0006 大阪府大阪市城東区野江4丁目10-13 クリエイト野江内代1F |
| 営業時間 | 10:00~19:00 |
| 定休日 | なし |
| 宅建免許番号 | 国土交通大臣(1)第10706号 |
| アクセス | 店舗への地図はこちら |

来店ご予約
大阪府門真市で価格が似ている物件はこちら
- 大阪府
マイページ物件数 - 15,887件
大阪府新築一戸建て新着物件
-
-

-
- 新築一戸建て
- 4,980万円
-
高槻市津之江町3丁目
-
阪急電鉄京都線富田駅
-
-
-

-
- 新築一戸建て
- 4,380万円
-
高槻市津之江町3丁目
-
阪急電鉄京都線富田駅
-
-
-

-
- 新築一戸建て
- 2,980万円
-
泉南郡熊取町大久保南4丁目
-
JR阪和線熊取駅
-
-
-

-
- 新築一戸建て
- 3,280万円
-
松原市高見の里5丁目
-
近鉄南大阪線高見ノ里駅
-
-
-

-
- 新築一戸建て
- 3,398万円
-
八尾市沼3丁目
-
JR関西本線柏原駅
-
-
-

-
- 新築一戸建て
- 2,690万円
-
柏原市国分本町2丁目
-
近鉄大阪線河内国分駅
-
-
-

-
- 新築一戸建て
- 3,280万円
-
大東市灰塚3丁目
-
JR片町線鴻池新田駅
-
- お近くの店舗を探す
-
おすすめ物件
-
-

-
- 新築一戸建て
- 4,580万円
-
茨木市島2丁目
-
阪急電鉄京都線南茨木
-
-
-

-
- 新築一戸建て
- 3,080万円
-
泉大津市下条町
-
南海電鉄本線泉大津
-
-
-

-
- 新築一戸建て
- 4,080万円
-
茨木市橋の内3丁目
-
阪急電鉄京都線総持寺
-
-
-

-
- 新築一戸建て
- 3,850万円
-
泉大津市昭和町
-
南海電鉄本線泉大津
-
-
-

-
- 新築一戸建て
- 4,680万円
-
堺市北区新金岡町5丁
-
大阪市御堂筋線新金岡
-
-
-

-
- 新築一戸建て
- 3,480万円
-
茨木市橋の内1丁目
-
阪急電鉄京都線総持寺
-
-
-

-
- 新築一戸建て
- 5,180万円
-
高槻市北昭和台町
-
阪急電鉄京都線総持寺
-
-
-

-
- 新築一戸建て
- 2,980万円
-
茨木市郡3丁目
-
JR東海道線茨木
-
-
-

-
- 新築一戸建て
- 5,080万円
-
大阪市住之江区粉浜西3丁目
-
南海電鉄本線住吉大社
-
-
-

-
- 新築一戸建て
- 2,948万円
-
泉大津市松之浜町2丁目
-
南海電鉄本線松ノ浜
-







担当エージェント:尾関 親代
最寄り駅から京橋まで14分の好立地!
落ち着いた住環境でファミリー層にも単身者にも◎♪
住宅ローン相談会開催中です!
ぜひお気軽にお問い合わせください!