世田谷区瀬田5丁目の新築戸建
掲載情報更新日:2025年10月31日 次回更新予定日:2025年11月14日
- 1億2,200万円
-
- 借入ご希望金額
万円 - 借入期間
年 - 借入金利
% - 月々のお支払い金額
円
- 借入ご希望金額
※ 月々のお支払例は目安の試算となりますので、実際の金額とは異なる場合がございます。詳しくは店舗までお問合わせください。
- 世田谷区瀬田5丁目
-
東急田園都市線『用賀』 徒歩15分 (約1200m)
世田谷区瀬田5丁目一戸建て | 物件情報
【世田谷区瀬田エリア】新築戸建THE PALMS COURT 瀬田
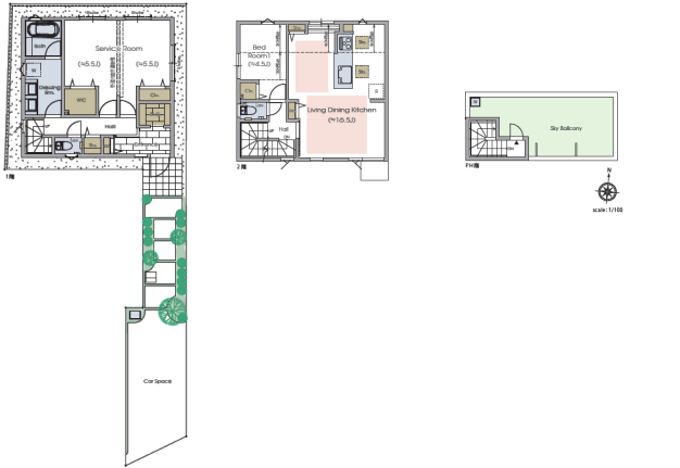
◆将来間仕切り可能な11帖の納戸
◆WIC、SIC完備の充実した収納スペース
◆開放性あるスカイバルコニー
物件の設備
- 公営水道
- 公共下水
- 都市ガス
物件の特徴
- 2階建
物件詳細情報
| 価格 | 1億2,200万円 | 間取り | 1LDK+S |
|---|---|---|---|
| 物件種別 | 新築一戸建て | ||
| 所在地 | 東京都世田谷区瀬田5丁目 | ||
| アクセス |
|
||
| 建物面積 | 駐車場 | なし | |
| 築年月 | 2025年(令和7年)06月築 | 建築確認 | |
| 建物構造 | 木造 2階建 | 工法 | |
| 主要採光 | バルコニー | ||
| 保証・評価 | |||
| 土地面積 | 95.2㎡(28.79坪) | 接道 | |
| 私道 | セットバック | ||
| 地目 | 宅地 | 地勢 | |
| 権利 | 所有権 |
||
| 都市計画 | 用途地域 | ||
| 建ぺい/容積率 | 土地国土法 | ||
| 許可番号 | 建築基準法 | ||
| 法令制限 | |||
| 小学区 | 中学区 | ||
| 現況 | 空 | 引渡 | 未記入 |
| その他費用 | |||
| 周辺環境 | 用賀駅前郵便局 徒歩11分 (約810m) セブン-イレブン世田谷用賀4丁目店 徒歩11分 (約810m) FUJI用賀店 徒歩11分 (約810m) 用賀駅 徒歩13分 (約970m) ココカラファイン用賀駅前店 徒歩14分 (約1050m) オーケー用賀駅前店 徒歩14分 (約1070m) みずほ銀行 玉川支店 徒歩17分 (約1300m) 明治屋 玉川ストアー 徒歩17分 (約1300m) 富澤商店 玉川高島屋SC店 徒歩17分 (約1300m) 三菱UFJ銀行 玉川支店 徒歩19分 (約1460m) |
||
| 備考 | |||
| 物件番号 | 4381794 | 取引態様 | 媒介 |
取扱店舗情報
ハウスドゥ 三軒茶屋 株式会社エルピープロ 店舗詳細ページへ
| 電話番号 | 03-6450-7233 |
|---|---|
| 所在地 | 〒154-0024 東京都世田谷区三軒茶屋2丁目34-1 1F |
| 営業時間 | 10:00~18:00 |
| 定休日 | 水曜日 |
| 宅建免許番号 | 東京都知事(3)第96562号 |
| アクセス | 店舗への地図はこちら |

来店ご予約
東京都世田谷区で価格が似ている物件はこちら
- 東京都
マイページ物件数 - 5,476件
最近見た物件
-
-

-
- 新築一戸建て
- 2,590万円
-
愛西市大井町前田面
-
JR関西本線永和
-
東京都新築一戸建て新着物件
- お近くの店舗を探す
-
おすすめ物件
-
-

-
- 新築一戸建て
- 7,190万円
-
狛江市東野川2丁目
-
小田急小田原線喜多見
-
-
-

-
- 新築一戸建て
- 2,980万円
-
八王子市下恩方町
-
JR中央本線高尾
-
-
-

-
- 新築一戸建て
- 7,680万円
-
世田谷区北烏山4丁目
-
京王線千歳烏山
-
-
-

-
- 新築一戸建て
- 7,880万円
-
横浜市青葉区たちばな台2丁目
-
東急田園都市線青葉台
-
-
-

-
- 新築一戸建て
- 2,998万円
-
八王子市大和田町7丁目
-
JR中央本線八王子
-
-
-

-
- 新築一戸建て
- 1億4,990万円
-
世田谷区上馬5丁目
-
東急田園都市線駒沢大学
-
-
-

-
- 新築一戸建て
- 5,780万円
-
調布市深大寺東町4丁目
-
京王線つつじヶ丘
-
-
-

-
- 新築一戸建て
- 6,780万円
-
三鷹市中原2丁目
-
京王線つつじヶ丘
-
-
-

-
- 新築一戸建て
- 2,980万円
-
八王子市下恩方町
-
JR中央本線高尾
-
-
-

-
- 新築一戸建て
- 2,950万円
-
八王子市諏訪町
-
JR中央本線西八王子
-











4棟同時販売中となっております。