足利市福富町の新築戸建
掲載情報更新日:2025年12月17日 次回更新予定日:2025年12月31日
- 2,099万円
-
- 借入ご希望金額
万円 - 借入期間
年 - 借入金利
% - 月々のお支払い金額
円
- 借入ご希望金額
※ 月々のお支払例は目安の試算となりますので、実際の金額とは異なる場合がございます。詳しくは店舗までお問合わせください。
- 足利市福富町
-
東武伊勢崎・大師線『東武和泉』 徒歩15分 (約1200m)
東武伊勢崎・大師線『足利市』 徒歩30分 (約2400m)
足利市福富町一戸建て | 物件情報
物件の設備
- 電気
- 公営水道
- 公共下水
- プロパンガス
- 個別プロパン
- 浄水器
- コンロ三口
- カウンターキッチン
- システムキッチン
- アイランドキッチン
- バス
- ユニットバス
- 浴室乾燥機
- 浴室に窓
- トイレ
- トイレ2箇所
- 温水洗浄便座
- 洗髪洗面化粧台
- ディンプルキー
- モニタ付インターホン
- 防犯カメラ
- LDK15畳以上
- 和室
- 複層ガラス
- 24時間換気システム
- クローゼット
- 床下収納
- 全居室収納
- ワイドバルコニー
- 2WAYバルコニー
物件の特徴
- スーパーが近い
- 閑静な住宅街
- 周辺交通量少なめ
- 市街地が近い
- 眺望良好
- 通風良好
- 陽当り良好
- 2階建
- 即入居可
物件詳細情報
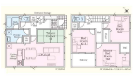
| 価格 | 2,099万円 | 間取り | 4LDK |
|---|---|---|---|
| 物件種別 | 新築一戸建て | ||
| 所在地 | 栃木県足利市福富町1971-8,1971-9 2号棟 | ||
| アクセス |
|
||
| 建物面積 | 102.06㎡ | 駐車場 | あり 普通:3台 |
| 築年月 | 2025年(令和7年)09月予定 | 建築確認 | 第HPA-25-06887-1号 |
| 建物構造 | 木造 2階建 | 工法 | |
| 主要採光 | バルコニー | ||
| 保証・評価 | |||
| 分譲情報 | |||
| 土地面積 | 195.27㎡(59.06坪) | 接道 | |
| 私道 | セットバック | ||
| 地目 | 山林 | 地勢 | |
| 権利 | 所有権 |
||
| 都市計画 | 市街化区域 |
用途地域 | 1種住居 |
| 建ぺい/容積率 | 60% / 200% | 土地国土法 | |
| 許可番号 | 建築基準法 | ||
| 法令制限 | 都市再生特別措置法・景観法・法22条区域・道路斜線制限 隣地斜線制限 日陰制限 | ||
| 小学区 | 梁田小学校 徒歩30分 (約2400m) | 中学区 | 協和中学校 徒歩43分 (約3400m) |
| 現況 | 空 | 引渡 | 即 |
| その他費用 | |||
| 備考 | |||
| 物件番号 | 4381902 | 取引態様 | 媒介 |
取扱店舗情報
| 電話番号 | 0284-40-1017 |
|---|---|
| 所在地 | 〒326-0025 栃木県足利市寿町14-1 |
| 営業時間 | 09:00~18:00 |
| 定休日 | 毎週水曜日 |
| 宅建免許番号 | 栃木県知事(1)第5296号 |
| アクセス | 店舗への地図はこちら |

来店ご予約
- 栃木県
マイページ物件数 - 6,780件
最近見た物件
-
-

-
- 中古一戸建て
- 2,299万円
-
豊橋市内張町
-
豊橋鉄道渥美線高師
-
-
-

-
- 中古一戸建て
- 560万円
-
加古郡播磨町本荘2丁目
-
山陽電鉄本線播磨町
-
-
-

-
- 土地
- 490万円
-
大分市南鶴崎3丁目
-
JR日豊本線鶴崎
-
栃木県新築一戸建て新着物件
- お近くの店舗を探す
-



































