沼津市西椎路の新築戸建
掲載情報更新日:2025年10月04日 次回更新予定日:2025年10月18日
- 2,980万円
-
- 借入ご希望金額
万円 - 借入期間
年 - 借入金利
% - 月々のお支払い金額
円
- 借入ご希望金額
※ 月々のお支払例は目安の試算となりますので、実際の金額とは異なる場合がございます。詳しくは店舗までお問合わせください。
- 沼津市西椎路
-
JR東海道本線『沼津』 徒歩20分 (約1600m)
沼津市西椎路一戸建て | 物件情報
静岡初!新築建売を自分好みにプチリノベ♪月々+1,400円でおしゃれに大変身。施工モニター募集中!
新築建売住宅って、どこも似たような内装でちょっと味気ない…そう感じたことはありませんか?
ハウスドゥ沼津香貫では 『ちょいリノベ』付き新築戸建てをご提案!
ほんの少しの費用をプラスするだけで、壁紙や照明、床材などをお好みにチェンジ。
アメリカ西海岸風、ホテルライク、北欧ナチュラル、カフェ風など、スタイルは自由自在。
母体はリノベーション専門の会社だから、
“お金をかけずにおしゃれに魅せる”
ノウハウ が豊富です。
だからこそ、ちょっとの工夫で驚くほどおしゃれで、『あなただけのオリジナル新築戸建て』が完成します。
例えば、2,000万円の新築建売戸建てを購入して50万円のちょいリノベを追加した場合、
月々のお支払いは6.24万円で家賃並み!
(例:住宅ローン金利0.9%・35年返済・諸費用込)
わずか月プラス1,400円で、毎日がもっとワクワクする住まいに変わります。
新築の安心感 × リノベのワクワク感。
静岡県初の新しい新築建売の選び方で、理想の住まいを手に入れてみませんか?
物件の設備
- 電気
- 上水道
- 公営水道
- 下水道
- 公共下水
- プロパンガス
- 個別プロパン
- 給湯
- コンロ三口
- グリル
- カウンターキッチン
- システムキッチン
- バス
- ユニットバス
- バス1坪以上
- 追焚機能
- 浴室乾燥機
- 浴室に窓
- トイレ
- トイレ2箇所
- 温水洗浄便座
- 室内洗濯機置場
- 洗髪洗面化粧台
- 洗面所独立
- モニタ付インターホン
- 防犯カメラ
- LDK15畳以上
- 和室
- 2面採光
- 複層ガラス
- フローリング
- クローゼット
- クローゼット2箇所
- クローゼット3箇所
- 全居室収納
- シューズボックス
- ルーフバルコニー
- ワイドバルコニー
物件の特徴
- 南向
- 高断熱住宅
- 耐震構造
- 制震構造
- 小学校徒歩10分以内
- 陽当り良好
- 2階建
- 整形地
- 区画整理地内
- 外壁サイディング
- BELS/省エネ基準適合
- フラット35Sに対応
物件詳細情報
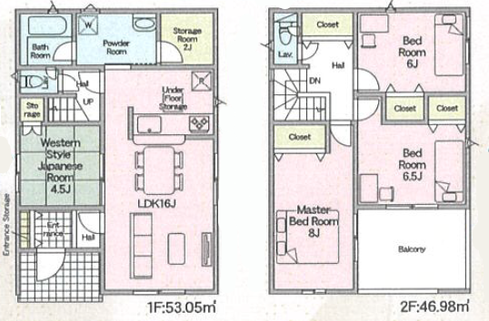
価格 | 2,980万円 | 間取り | 4LDK |
---|---|---|---|
物件種別 | 新築一戸建て | ||
所在地 | 静岡県沼津市西椎路 2 | ||
アクセス |
|
||
建物面積 | 公100.03㎡ | 駐車場 | あり 普通:2台 |
築年月 | 2025年(令和7年)11月予定 | 建築確認 | 第R07SHC111788号 |
建物構造 | 木造 2階建 | 工法 | |
主要採光 | 南向 | バルコニー | 9.72㎡ |
保証・評価 | |||
土地面積 | 公229.06㎡(69.29坪) | 接道 | 北側(私道)幅 約4.1m |
私道 | セットバック | ||
地目 | 宅地 | 地勢 | |
権利 | 所有権 |
||
都市計画 | 市街化区域 |
用途地域 | 2種中高 |
建ぺい/容積率 | 50% / 80% | 土地国土法 | |
許可番号 | 建築基準法 | ||
法令制限 | 宅地造成工事規制区域・法22条区域 | ||
小学区 | 愛鷹小学校 徒歩8分 (約568m) | 中学区 | 愛鷹中学校 徒歩10分 (約759m) |
現況 | 建築中 | 引渡 | 期日指定:2025年11月以降 |
その他費用 | |||
備考 | |||
物件番号 | 4382210 | 取引態様 | 媒介 |
取扱店舗情報
ハウスドゥ 沼津香貫 株式会社東静プランニング 店舗詳細ページへ
電話番号 | 055-935-6102 |
---|---|
所在地 | 〒410-0836 静岡県沼津市吉田町38-4 |
営業時間 | 10:00~19:00 |
定休日 | 水曜日、第一火曜日、年末年始 |
宅建免許番号 | 国土交通大臣(1)第10183号 |
アクセス | 店舗への地図はこちら |
来店ご予約
静岡県沼津市で価格が似ている物件はこちら
- 静岡県
マイページ物件数 - 2,765件
静岡県新築一戸建て新着物件
-
-
-
- 新築一戸建て
- 2,480万円
-
富士宮市山宮
-
JR身延線富士宮駅
-
-
-
-
- 新築一戸建て
- 2,580万円
-
富士宮市宮原
-
JR身延線富士宮駅
-
-
-
-
- 新築一戸建て
- 2,380万円
-
静岡市駿河区大谷3丁目
-
JR東海道本線静岡駅
-
-
-
-
- 新築一戸建て
- 2,380万円
-
静岡市駿河区大谷3丁目
-
JR東海道本線静岡駅
-
-
-
-
- 新築一戸建て
- 2,980万円
-
御殿場市川島田
-
JR御殿場線御殿場駅
-
-
-
-
- 新築一戸建て
- 3,080万円
-
御殿場市川島田
-
JR御殿場線御殿場駅
-
-
-
-
- 新築一戸建て
- 3,090万円
-
沼津市大岡
-
JR御殿場線大岡駅
-
- お近くの店舗を探す
-
おすすめ物件
-
-
-
- 新築一戸建て
- 3,080万円
-
駿東郡清水町長沢
-
JR東海道本線沼津
-
-
-
-
- 新築一戸建て
- 2,780万円
-
富士宮市源道寺町
-
JR身延線源道寺
-
-
-
-
- 新築一戸建て
- 3,480万円
-
御殿場市萩原
-
JR御殿場線御殿場
-
-
-
-
- 新築一戸建て
- 3,180万円
-
伊豆の国市大仁
-
伊豆箱根鉄道駿豆線大仁
-
-
-
-
- 新築一戸建て
- 2,980万円
-
富士市富士見台1丁目
-
岳南電車岳南原田
-
-
-
-
- 新築一戸建て
- 2,990万円
-
浜松市中央区高丘北1丁目
-
遠鉄バス「高丘郵便局」停
-
-
-
-
- 新築一戸建て
- 2,780万円
-
沼津市原
-
JR東海道本線原
-
-
-
-
- 新築一戸建て
- 2,780万円
-
富士市三ツ沢
-
岳南電車岳南原田
-
-
-
-
- 新築一戸建て
- 3,180万円
-
駿東郡小山町用沢
-
JR御殿場線足柄
-
-
-
-
- 新築一戸建て
- 2,780万円
-
富士市原田
-
岳南電車岳南原田
-
【ただいま施工モニター募集中!】
現在、当社では 施工モニター様を募集中です。
モニターになっていただいた方には、通常よりも『お得なリノベ費用』で“ちょいリノベ”をご体験いただけます。
詳しくは、公式LINEまたは
フリーダイヤル0120-722-778 までお気軽にお問い合わせください。
ハウスドゥ沼津香貫は 『建築が母体の会社』
お引き渡しから10年、20年経っても、建物メンテナンスや「ちょっと困った」へのご相談にしっかり対応いたします。
“売って終わり”ではなく、“住んでからの安心”まで長年にわたってお支えする会社です。