平塚市南金目の新築戸建
掲載情報更新日:2026年02月28日 次回更新予定日:2026年03月14日
- 2,580万円
-
- 借入ご希望金額
万円 - 借入期間
年 - 借入金利
% - 月々のお支払い金額
円
- 借入ご希望金額
※ 月々のお支払例は目安の試算となりますので、実際の金額とは異なる場合がございます。詳しくは店舗までお問合わせください。
- 平塚市南金目
-
JR東海道本線『平塚』 バス乗車22分 片岡 停 徒歩7分 (約560m)
平塚市南金目一戸建て | 物件情報
物件の設備
- 電気
- 公営水道
- プロパンガス
- 個別プロパン
物件の特徴
- 2階建
物件詳細情報
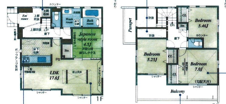
| 価格 | 2,580万円 | 間取り | 4LDK |
|---|---|---|---|
| 物件種別 | 新築一戸建て | ||
| 所在地 | 神奈川県平塚市南金目 1号棟 | ||
| アクセス |
|
||
| 建物面積 | 97.14㎡ | 駐車場 | あり 普通:1台 軽:1台 |
| 築年月 | 2025年(令和7年)12月築 | 建築確認 | 第R07SHC114953号 |
| 建物構造 | 木造 2階建 | 工法 | |
| 主要採光 | バルコニー | ||
| 保証・評価 | |||
| 分譲情報 | |||
| 土地面積 | 122.72㎡(37.12坪) | 接道 | 北側(公道)幅 約4.2m 西側(公道)幅 約4.0m |
| 私道 | セットバック | ||
| 地目 | 宅地 | 地勢 | |
| 権利 | 所有権 |
||
| 都市計画 | 市街化区域 |
用途地域 | 1種住居 |
| 建ぺい/容積率 | 60% / 200% | 土地国土法 | |
| 許可番号 | 建築基準法 | ||
| 法令制限 | |||
| 小学区 | 金目小学校 徒歩9分 (約650m) | 中学区 | 金目中学校 徒歩7分 (約500m) |
| 現況 | 未着工 | 引渡 | 期日指定:2026年01月上旬 |
| その他費用 | |||
| 周辺環境 | ファミリーマート平塚片岡店 徒歩5分 (約400m) 平塚市立金目中学校 徒歩7分 (約500m) 平塚西郵便局 徒歩7分 (約550m) ウエルシア平塚南金目店 徒歩10分 (約750m) 平塚市立金目小学校 徒歩9分 (約650m) |
||
| 備考 | |||
| 物件番号 | 4383000 | 取引態様 | 媒介 |
取扱店舗情報
| 電話番号 | 0463-74-5546 |
|---|---|
| 所在地 | 〒254-0901 神奈川県平塚市纒1丁目2番18号 福島ビル1F |
| 営業時間 | 10:00~18:00 |
| 定休日 | 火曜日・水曜日・年末年始 |
| 宅建免許番号 | 神奈川県知事(1)第31454号 |
| アクセス | 店舗への地図はこちら |

来店ご予約
神奈川県平塚市で価格が似ている物件はこちら
- 神奈川県
マイページ物件数 - 3,114件
神奈川県新築一戸建て新着物件
- お近くの店舗を探す
-
おすすめ物件
-
-

-
- 新築一戸建て
- 5,599万円
-
横浜市南区大岡3丁目
-
横浜市営地下鉄ブルーライン弘明寺
-
-
-

-
- 新築一戸建て
- 2,680万円
-
平塚市公所
-
JR東海道本線平塚
-
-
-

-
- 新築一戸建て
- 6,980万円
-
横浜市中区本郷町3丁目
-
JR京浜東北・根岸線山手
-












