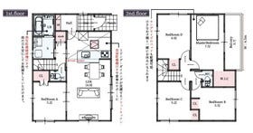
【本日ご案内可能】 新築戸建 明石市魚住町西岡
掲載情報更新日:2026年04月13日 次回更新予定日:2026年04月27日
- 2,980万円
-
- 借入ご希望金額
万円 - 借入期間
年 - 借入金利
% - 月々のお支払い金額
円
- 借入ご希望金額
※ 月々のお支払例は目安の試算となりますので、実際の金額とは異なる場合がございます。詳しくは店舗までお問合わせください。
- 明石市魚住町西岡
-
JR山陽本線『魚住』 徒歩17分 (約1360m)
【本日ご案内可能】 新築戸建 明石市魚住町西岡一戸建て | 物件環境・地図
※表示されている地図は周辺環境を示すものであり、実際の物件所在地とは異なる場合がございます。
詳細は必ず店舗までお問い合わせください。
物件周辺環境
兵庫県明石市で価格が似ている物件はこちら
- 兵庫県
マイページ物件数 - 3,140件
最近見た物件
-
-

-
- 中古一戸建て
- 1,950万円
-
四日市市別山3丁目
-
近鉄湯の山線伊勢川島
-
-
-

-
- 中古一戸建て
- 9,900万円
-
大東市北条3丁目
-
JR片町線四条畷
-
-
-

-
- 中古一戸建て
- 4,480万円
-
八王子市絹ケ丘2丁目
-
京王線北野
-
兵庫県新築一戸建て新着物件
- お近くの店舗を探す
-














