北名古屋市熊之庄山の前の新築戸建
掲載情報更新日:2026年05月21日 次回更新予定日:2026年06月04日
- 3,190万円
-
- 借入ご希望金額
万円 - 借入期間
年 - 借入金利
% - 月々のお支払い金額
円
- 借入ご希望金額
※ 月々のお支払例は目安の試算となりますので、実際の金額とは異なる場合がございます。詳しくは店舗までお問合わせください。
- 北名古屋市熊之庄山の前
-
名鉄犬山線『西春』 バス乗車10分 きたバス 熊之庄小烏西 停 徒歩5分 (約400m)
名鉄犬山線『徳重・名古屋芸大』 徒歩27分 (約2160m)
名鉄犬山線『大山寺』 徒歩31分 (約2480m)
北名古屋市熊之庄山の前一戸建て | 物件情報
物件の設備
- 電気
- 公営水道
- 浄化槽
- 個別浄化槽
- 都市ガス
- 給湯
- コンロ三口
- カウンターキッチン
- システムキッチン
- 浴室に窓
- トイレ2箇所
- 温水洗浄便座
- 室内洗濯機置場
- 洗髪洗面化粧台
- 洗面所独立
- モニタ付インターホン
- LDK15畳以上
- 和室
- 全居室複層ガラス
- 全室フローリング
- クローゼット3箇所
- ウォークインクローゼット
- 床下収納
- 全居室収納
- シューズボックス
- バルコニー
- ルーフバルコニー
- 南面バルコニー
- インナーバルコニー
物件の特徴
- 南向
- 小学校徒歩10分以内
- 南側道路面す
- 2階建
- 外壁サイディング
- 即入居可
- フラット35Sに対応
物件詳細情報
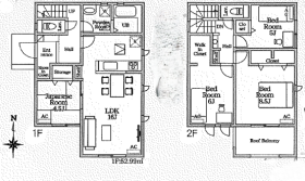
| 価格 | 3,190万円 | 間取り | 4LDK |
|---|---|---|---|
| 物件種別 | 新築一戸建て | ||
| 所在地 | 愛知県北名古屋市熊之庄山の前 | ||
| アクセス |
|
||
| 建物面積 | 105.98㎡ | 駐車場 | あり 普通:2台 |
| 築年月 | 2025年(令和7年)11月築 | 建築確認 | 第KS125-0420-54668号 |
| 建物構造 | 木造 2階建 | 工法 | |
| 主要採光 | 南向 | バルコニー | |
| 保証・評価 | |||
| 分譲情報 | |||
| 土地面積 | 142.67㎡(43.15坪) | 接道 | 南側(公道)幅 約4.0m 間口 約8.70m |
| 私道 | セットバック | ||
| 地目 | 宅地 | 地勢 | |
| 権利 | 所有権 |
||
| 都市計画 | 市街化区域 |
用途地域 | 1種中高 |
| 建ぺい/容積率 | 60% / 200% | 土地国土法 | |
| 許可番号 | 建築基準法 | ||
| 法令制限 | 法22条区域 | ||
| 小学区 | 師勝北小学校 徒歩6分 (約450m) | 中学区 | 熊野中学校 徒歩9分 (約700m) |
| 現況 | 完工済 | 引渡 | 即 |
| その他費用 | |||
| 備考 | ◇南接道!長期優良住宅!断熱性能6! ◎シューズインクローク! ◎ルーフバルコニー♪ ◎ウォークインクローゼット♪ ▼周辺環境 ◎西友藤島店まで徒歩16分 ◎ファミリーマートまで徒歩10分 |
||
| 物件番号 | 4391169 | 取引態様 | 媒介 |
取扱店舗情報
| 電話番号 | 052-325-7182 |
|---|---|
| 所在地 | 〒452-0824 愛知県名古屋市西区こも原町33番地 |
| 営業時間 | 9:00~18:00 |
| 定休日 | 火曜日・水曜日 |
| 宅建免許番号 | 愛知県知事(2)第23697号 |
| アクセス | 店舗への地図はこちら |

来店ご予約
愛知県北名古屋市で価格が似ている物件はこちら
- 愛知県
マイページ物件数 - 32,377件
最近見た物件
-
-

-
- 新築一戸建て
- 3,198万円
-
合志市御代志
-
熊本電気鉄道御代志
-
-
-

-
- 中古マンション
- 2,680万円
-
豊田市下市場町8丁目
-
名鉄三河線上挙母
-
-
-

-
- 新築一戸建て
- 3,080万円
-
小牧市大字池之内
-
名鉄小牧線味岡
-
愛知県新築一戸建て新着物件
-
-

-
- 新築一戸建て
- 4,380万円
-
名古屋市中村区岩塚町3丁目
-
名古屋市東山線岩塚駅
-
-
-

-
- 新築一戸建て
- 4,980万円
-
名古屋市中村区岩塚町3丁目
-
名古屋市東山線岩塚駅
-
-
-

-
- 新築一戸建て
- 3,290万円
-
北名古屋市熊之庄十二社
-
名鉄犬山線西春駅
-
-
-

-
- 新築一戸建て
- 3,390万円
-
北名古屋市熊之庄十二社
-
名鉄犬山線西春駅
-
-
-

-
- 新築一戸建て
- 2,680万円
-
一宮市萩原町築込字野中
-
名鉄尾西線玉野駅
-
-
-

-
- 新築一戸建て
- 2,480万円
-
一宮市萩原町築込字野中
-
名鉄尾西線玉野駅
-
-
-

-
- 新築一戸建て
- 3,480万円
-
一宮市森本5丁目
-
名鉄名古屋本線妙興寺駅
-
- お近くの店舗を探す
-
おすすめ物件
-
-

-
- 新築一戸建て
- 4,890万円
-
東海市養父町3丁目
-
名鉄常滑線尾張横須賀
-
-
-

-
- 新築一戸建て
- 6,980万円
-
名古屋市千種区春里町4丁目
-
名古屋市東山線本山
-
-
-

-
- 新築一戸建て
- 2,290万円
-
一宮市北方町北方字中土取
-
名鉄名古屋本線木曽川堤
-
-
-

-
- 新築一戸建て
- 2,490万円
-
津島市江東町3丁目
-
名鉄津島線津島
-
-
-

-
- 新築一戸建て
- 2,190万円
-
碧南市福清水町4丁目
-
名鉄三河線碧南中央
-
-
-

-
- 新築一戸建て
- 5,799万円
-
名古屋市昭和区吹上町1丁目
-
名古屋市桜通線吹上
-
-
-

-
- 新築一戸建て
- 2,950万円
-
半田市新居町3丁目
-
JR武豊線乙川
-
-
-

-
- 新築一戸建て
- 2,490万円
-
常滑市蒲池町2丁目
-
名鉄常滑線蒲池
-
-
-

-
- 新築一戸建て
- 3,330万円
-
半田市前田町
-
JR武豊線亀崎
-
-
-

-
- 新築一戸建て
- 3,380万円
-
津島市橘町5丁目
-
名鉄津島線津島
-





































