沼津市本郷町の新築戸建
掲載情報更新日:2026年05月05日 次回更新予定日:2026年05月19日
- 3,380万円
-
- 借入ご希望金額
万円 - 借入期間
年 - 借入金利
% - 月々のお支払い金額
円
- 借入ご希望金額
※ 月々のお支払例は目安の試算となりますので、実際の金額とは異なる場合がございます。詳しくは店舗までお問合わせください。
- 沼津市本郷町
-
JR東海道本線『沼津』 車5分(約1.9km)
JR東海道本線『沼津』 バス乗車13分 黒瀬 停 徒歩2分 (約160m)
沼津市本郷町一戸建て | 物件情報
静岡初!新築建売を自分好みにプチリノベ♪月々+1,400円でおしゃれに大変身。施工モニター募集中!
新築建売住宅って、どこも似たような内装でちょっと味気ない…そう感じたことはありませんか?
ハウスドゥ沼津香貫では 『ちょいリノベ』付き新築戸建てをご提案!
ほんの少しの費用をプラスするだけで、壁紙や照明、床材などをお好みにチェンジ。
アメリカ西海岸風、ホテルライク、北欧ナチュラル、カフェ風など、スタイルは自由自在。
母体はリノベーション専門の会社だから、
“お金をかけずにおしゃれに魅せる”
ノウハウ が豊富です。
だからこそ、ちょっとの工夫で驚くほどおしゃれで、『あなただけのオリジナル新築戸建て』が完成します。
例えば、2,000万円の新築建売戸建てを購入して50万円のちょいリノベを追加した場合、
月々のお支払いは6.24万円で家賃並み!
(例:住宅ローン金利0.9%・35年返済・諸費用込)
わずか月プラス1,400円で、毎日がもっとワクワクする住まいに変わります。
新築の安心感 × リノベのワクワク感。
静岡県初の新しい新築建売の選び方で、理想の住まいを手に入れてみませんか?
物件の設備
- 電気
- 上水道
- 公営水道
- 浄化槽
- 都市ガス
- 給湯
- 食品庫
- コンロ三口
- グリル
- カウンターキッチン
- システムキッチン
- バス
- ユニットバス
- バス1坪以上
- 浴室に窓
- トイレ
- トイレ2箇所
- 温水洗浄便座
- 室内洗濯機置場
- 洗髪洗面化粧台
- 洗面所独立
- モニタ付インターホン
- LDK15畳以上
- LDK18畳以上
- 2面採光
- 複層ガラス
- フローリング
- クローゼット
- ウォークインクローゼット
- ウォークインクローゼット2箇所
- 納戸
- 全居室収納
- シューズボックス
- シューズインクローク
- ワイドバルコニー
- 中庭
物件の特徴
- 高断熱住宅
- 耐震構造
- 陽当り良好
- 2階建
- 整形地
- 区画整理地内
- 省エネルギー対策
- フラット35Sに対応
物件詳細情報
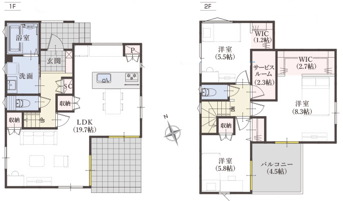
| 価格 | 3,380万円 | 間取り | 3LDK+S |
|---|---|---|---|
| 物件種別 | 新築一戸建て | ||
| 所在地 | 静岡県沼津市本郷町 1 | ||
| アクセス |
|
||
| 建物面積 | 公100.37㎡ | 駐車場 | あり 普通:2台 軽:1台 |
| 築年月 | 2026年(令和8年)03月築 | 建築確認 | 第KS125-0420-55123号 |
| 建物構造 | 木造 2階建 | 工法 | |
| 主要採光 | 南向 | バルコニー | |
| 保証・評価 | |||
| 土地面積 | 公130.33㎡(39.42坪) | 接道 | 北側(公道)幅 約5.3m |
| 私道 | セットバック | ||
| 地目 | 宅地 | 地勢 | |
| 権利 | 所有権 |
||
| 都市計画 | 市街化区域 |
用途地域 | 1種低層 |
| 建ぺい/容積率 | 50% / 80% | 土地国土法 | |
| 許可番号 | 建築基準法 | ||
| 法令制限 | |||
| 小学区 | 第四小学校 徒歩8分 (約640m) | 中学区 | 第四中学校 徒歩4分 (約320m) |
| 現況 | 完工済 | 引渡 | 期日指定:2026年03月以降 |
| その他費用 | |||
| 備考 | |||
| 物件番号 | 4391387 | 取引態様 | 媒介 |
取扱店舗情報
ハウスドゥ 沼津香貫 株式会社東静プランニング 店舗詳細ページへ
| 電話番号 | 055-935-6102 |
|---|---|
| 所在地 | 〒410-0836 静岡県沼津市吉田町38-4 |
| 営業時間 | 10:00~19:00 |
| 定休日 | 水曜日、第一火曜日、年末年始 |
| 宅建免許番号 | 国土交通大臣(1)第10183号 |
| アクセス | 店舗への地図はこちら |

来店ご予約
静岡県沼津市で価格が似ている物件はこちら
- 静岡県
マイページ物件数 - 2,717件
最近見た物件
-
-

-
- 中古一戸建て
- 2,050万円
-
春日井市神屋町
-
JR中央本線高蔵寺
-
-
-

-
- 新築一戸建て
- 3,480万円
-
豊橋市羽根井町
-
JR東海道本線豊橋
-
-
-

-
- 新築一戸建て
- 3,598万円
-
熊本市東区西原2丁目
-
鉄工団地入口
-
静岡県新築一戸建て新着物件
-
-

-
- 新築一戸建て
- 2,990万円
-
浜松市中央区富塚町
-
JR東海道本線浜松駅
-
-
-

-
- 新築一戸建て
- 3,190万円
-
浜松市中央区高丘北1丁目
-
JR東海道本線浜松駅
-
-
-

-
- 新築一戸建て
- 3,290万円
-
浜松市中央区高丘北1丁目
-
JR東海道本線浜松駅
-
-
-

-
- 新築一戸建て
- 3,150万円
-
浜松市浜名区中条
-
遠州鉄道遠州小松駅
-
-
-

-
- 新築一戸建て
- 2,990万円
-
浜松市浜名区中条
-
遠州鉄道遠州小松駅
-
-
-

-
- 新築一戸建て
- 4,470万円
-
静岡市駿河区みずほ2丁目
-
JR東海道本線安倍川駅
-
-
-

-
- 新築一戸建て
- 4,670万円
-
静岡市駿河区みずほ2丁目
-
JR東海道本線安倍川駅
-
- お近くの店舗を探す
-











【ただいま施工モニター募集中!】
現在、当社では 施工モニター様を募集中です。
モニターになっていただいた方には、通常よりも『お得なリノベ費用』で“ちょいリノベ”をご体験いただけます。
詳しくは、公式LINEまたは
フリーダイヤル0120-722-778 までお気軽にお問い合わせください。
ハウスドゥ沼津香貫は 『建築が母体の会社』
お引き渡しから10年、20年経っても、建物メンテナンスや「ちょっと困った」へのご相談にしっかり対応いたします。
“売って終わり”ではなく、“住んでからの安心”まで長年にわたってお支えする会社です。