ルーフバルコニー付、4LDK
掲載情報更新日:2025年11月14日 次回更新予定日:2025年11月28日
- 2,780万円
-
- 借入ご希望金額
万円 - 借入期間
年 - 借入金利
% - 月々のお支払い金額
円
- 借入ご希望金額
※ 月々のお支払例は目安の試算となりますので、実際の金額とは異なる場合がございます。詳しくは店舗までお問合わせください。
- 平塚市岡崎
-
JR東海道本線『平塚』 バス乗車23分 矢崎大橋 停 徒歩2分 (約160m)
ルーフバルコニー付、4LDK一戸建て | 物件情報
ルーフバルコニー付、4LDK
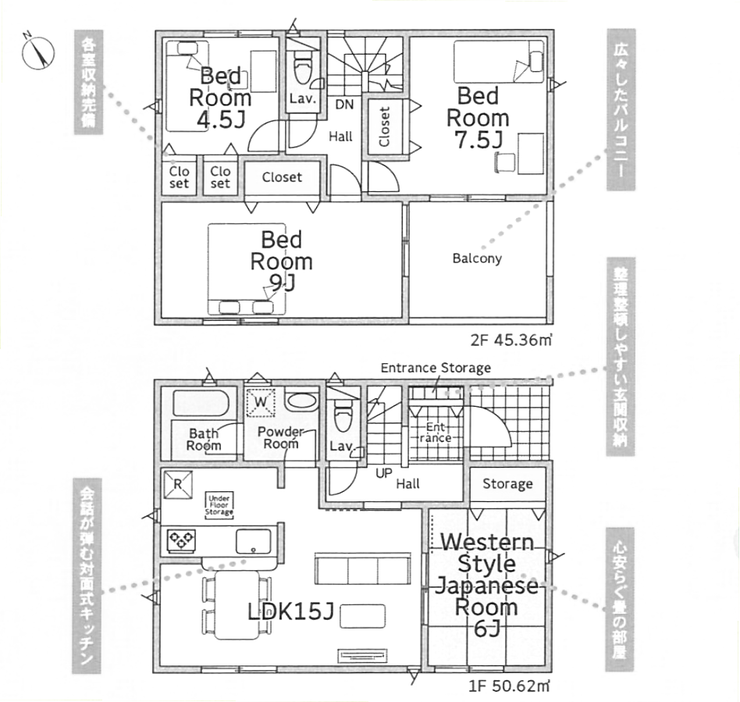
■岡崎小学校まで徒歩7分
■閑静な住宅街
■主寝室約9帖
■約6帖の和室
■カースペース2台分駐車可能
物件の設備
- 電気
- 公営水道
- 公共下水
- プロパンガス
- 個別プロパン
- コンロ三口
- カウンターキッチン
- システムキッチン
- 追焚機能
- 浴室暖房
- 浴室乾燥機
- 浴室に窓
- 温水洗浄便座
- 室内洗濯機置場
- 洗髪洗面化粧台
- モニタ付インターホン
- 防犯カメラ
- LDK15畳以上
- 和室
- 複層ガラス
- 全居室収納
- シューズボックス
- ルーフバルコニー
物件の特徴
- 耐震構造
- 小学校徒歩10分以内
- 閑静な住宅街
- 2階建
- 建設住宅性能評価付
- 設計住宅性能評価付
物件詳細情報
| 価格 | 2,780万円 | 間取り | 4LDK |
|---|---|---|---|
| 物件種別 | 新築一戸建て | ||
| 所在地 | 神奈川県平塚市岡崎 1号棟 | ||
| アクセス |
|
||
| 建物面積 | 公95.98㎡ | 駐車場 | あり 普通:2台 |
| 築年月 | 2025年(令和7年)11月予定 | 建築確認 | 第KBI-SGM25-10-2850号 |
| 建物構造 | 木造 2階建 | 工法 | |
| 主要採光 | バルコニー | 8.50㎡ | |
| 保証・評価 | 設計住宅性能評価書・建設住宅性能評価書(新築時) |
||
| 分譲情報 | |||
| 土地面積 | 公148.09㎡(44.79坪) | 接道 | 東側(公道)幅 約5.0m |
| 私道 | セットバック | ||
| 地目 | 宅地 | 地勢 | |
| 権利 | 所有権 |
||
| 都市計画 | 市街化区域 |
用途地域 | 1種低層 |
| 建ぺい/容積率 | 50% / 80% | 土地国土法 | |
| 許可番号 | 建築基準法 | ||
| 法令制限 | 法22条区域 | ||
| 小学区 | 岡崎小学校 徒歩7分 (約500m) | 中学区 | 大住中学校 徒歩19分 (約1500m) |
| 現況 | 建築中 | 引渡 | 期日指定:2025年11月 |
| その他費用 | |||
| 周辺環境 | 岡崎小学校 徒歩7分 (約500m) 大住中学校 徒歩19分 (約1500m) 平岡幼稚園 徒歩12分 (約930m) ファミリーマート おかざき店 徒歩11分 (約865m) クリエイトS・D 岡崎店 徒歩10分 (約799m) ユーコープ 岡崎店 徒歩14分 (約1090m) |
||
| 備考 | ■岡崎小学校まで徒歩7分 ■閑静な住宅街 ■主寝室約9帖 ■約6帖の和室 ■カースペース2台分駐車可能 |
||
| 物件番号 | 4391742 | 取引態様 | 媒介 |
取扱店舗情報
| 電話番号 | 0463-24-8885 |
|---|---|
| 所在地 | 〒254-0073 神奈川県平塚市西八幡2丁目9-1 |
| 営業時間 | 9:00~18:00 |
| 定休日 | 第1・3火曜日、水曜日、年末年始 |
| 宅建免許番号 | 神奈川県知事(3)第28824号 |
| アクセス | 店舗への地図はこちら |

来店ご予約
神奈川県平塚市で価格が似ている物件はこちら
- 神奈川県
マイページ物件数 - 3,105件
神奈川県新築一戸建て新着物件
-
-

-
- 新築一戸建て
- 3,280万円
-
厚木市緑ケ丘5丁目
-
小田急小田原線本厚木駅
-
-
-

-
- 新築一戸建て
- 4,180万円
-
厚木市林3丁目
-
小田急小田原線本厚木駅
-
-
-

-
- 新築一戸建て
- 3,380万円
-
海老名市社家2丁目
-
JR相模線社家駅
-
-
-

-
- 新築一戸建て
- 3,080万円
-
海老名市社家2丁目
-
JR相模線社家駅
-
-
-

-
- 新築一戸建て
- 3,380万円
-
海老名市門沢橋2丁目
-
JR相模線門沢橋駅
-
-
-

-
- 新築一戸建て
- 4,180万円
-
海老名市国分寺台3丁目
-
相模鉄道本線海老名駅
-
-
-

-
- 新築一戸建て
- 4,380万円
-
海老名市国分寺台3丁目
-
相模鉄道本線海老名駅
-
- お近くの店舗を探す
-







ハウスドゥ 湘南平塚(株式会社プレジャー)
[営業時間]9:00~18:00
[定休日]第1週・第3週の火曜日、及び毎週水曜日
JR東海道線「平塚」駅よりバス乗車6分
「八幡」停留所 目の前です。
●店舗前に5台分の駐車スペースがございます。
●平塚駅など近隣地への送迎いたします。
●キッズスペース、授乳室を完備しております。
お子様連れのお客様もご安心してご来店ください。
●すぐにご来店が難しいお客様もお気軽にご相談ください。