小田原市酒匂の新築戸建
掲載情報更新日:2025年10月31日 次回更新予定日:2025年11月14日
- 4,080万円
-
- 借入ご希望金額
万円 - 借入期間
年 - 借入金利
% - 月々のお支払い金額
円
- 借入ご希望金額
※ 月々のお支払例は目安の試算となりますので、実際の金額とは異なる場合がございます。詳しくは店舗までお問合わせください。
- 小田原市酒匂
-
JR東海道本線『鴨宮』 徒歩8分 (約640m)
小田原市酒匂一戸建て | 物件情報
物件の設備
- 電気
- 上水道
- 下水道
- 都市ガス
- 給湯
- 浄水器
- 食器洗浄乾燥機
- システムキッチン
- バス
- バス1坪以上
- 追焚機能
- 浴室に窓
- トイレ
- トイレ2箇所
- 温水洗浄便座
- 室内洗濯機置場
- 洗髪洗面化粧台
- 洗面所独立
- 室内物干機
- モニタ付インターホン
- 火災警報器/報知機
- LDK15畳以上
- 和室
- 2面採光
- 吹抜
- 複層ガラス
- フローリング
- クローゼット
- クローゼット3箇所
- 全居室収納
- シューズボックス
物件の特徴
- 2階建
- BELS/省エネ基準適合
- フラット35Sに対応
物件詳細情報
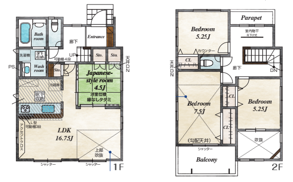
| 価格 | 4,080万円 | 間取り | 4LDK |
|---|---|---|---|
| 物件種別 | 新築一戸建て | ||
| 所在地 | 神奈川県小田原市酒匂 2号棟 | ||
| アクセス |
|
||
| 建物面積 | 98.95㎡ | 駐車場 | あり 普通:2台 |
| 築年月 | 2025年(令和7年)12月予定 | 建築確認 | 第R07SHC115082号 |
| 建物構造 | 木造 2階建 | 工法 | |
| 主要採光 | 南向 | バルコニー | |
| 保証・評価 | |||
| 土地面積 | 127.83㎡(38.66坪) | 接道 | |
| 私道 | セットバック | ||
| 地目 | 宅地 | 地勢 | |
| 権利 | 所有権 |
||
| 都市計画 | 市街化区域 |
用途地域 | 1種住居 |
| 建ぺい/容積率 | 60% / 200% | 土地国土法 | |
| 許可番号 | 建築基準法 | ||
| 法令制限 | 高度地区・準防火地域 | ||
| 小学区 | 酒匂小学校 徒歩23分 (約1800m) | 中学区 | 酒匂中学校 徒歩20分 (約1600m) |
| 現況 | 建築中 | 引渡 | 期日指定:2026年01月中旬以降 |
| その他費用 | |||
| 周辺環境 | なか卯 小田原鴨宮店 徒歩4分 (約300m) サイゼリヤ 小田原鴨宮店 徒歩8分 (約600m) 星乃珈琲店 小田原鴨宮店 徒歩11分 (約850m) ローソン 小田原酒匂店 徒歩23分 (約1800m) 小田原警察署 酒匂交番 徒歩20分 (約1600m) |
||
| 備考 | 「耐震等級3」、「断熱等性能等級5」、「一次エネルギー消費量等級6」取得予定!※物件完成後に取得予定。地震に強く、冷暖房のエネルギー消費が少ない住まいです。高品質低コストを追求した分譲住宅。 | ||
| 物件番号 | 4392195 | 取引態様 | 媒介 |
取扱店舗情報
ハウスドゥ 小田原市役所前 株式会社Forest field 店舗詳細ページへ
| 電話番号 | 0465-34-2555 |
|---|---|
| 所在地 | 〒250-0042 神奈川県小田原市荻窪531-6 |
| 営業時間 | 9:00~18:00 |
| 定休日 | 火曜日、水曜日 |
| 宅建免許番号 | 神奈川県知事(1)第31148号 |
| アクセス | 店舗への地図はこちら |









