岡崎市矢作町字西林寺の新築戸建
掲載情報更新日:2026年04月10日 次回更新予定日:2026年04月24日
- 3,490万円
-
- 借入ご希望金額
万円 - 借入期間
年 - 借入金利
% - 月々のお支払い金額
円
- 借入ご希望金額
※ 月々のお支払例は目安の試算となりますので、実際の金額とは異なる場合がございます。詳しくは店舗までお問合わせください。
- 岡崎市矢作町字西林寺
-
名鉄名古屋本線『矢作橋』 徒歩5分 (約322m)
名鉄名古屋本線『岡崎公園前』 徒歩15分 (約1200m)
愛知環状鉄道『北岡崎』 徒歩22分 (約1700m)
岡崎市矢作町字西林寺一戸建て | 物件情報
長期優良住宅!矢作東小・矢作北中/駅まで徒歩5分!キャンペーンも開催中♪
☆★ハウスドゥ幸田限定プレゼント★☆
エアコン2台設置!又は豊富なオプションカタログから「選べる10万円分」プレゼント!
2026/4/30までにご購入申込みのお客様限定!
★イチオシポイント★
◎長期優良住宅!安心安全な暮らしを♪
◎断熱等級5・一次エネルギー等級6取得!
◎WICや土間収納、全居室クローゼット付で収納には困りません!
【返済例】
月々87,089円
3490万円借入、変動金利0.75%、40年、ボーナス払い0円。別途諸費用。
※月々のお支払いはボーナス有無や、ご返済年数など様々なプランをご相談できます!
【学校】
◎矢作東小学校 徒歩約4分
◎矢作北中学校 徒歩約19分
物件の設備
- 電気
- 上水道
- 下水道
- 側溝
- 都市ガス
- 給湯
- 浄水器
- 食器洗浄乾燥機
- コンロ三口
- グリル
- システムキッチン
- バス
- ユニットバス
- オートバス
- バス1坪以上
- 追焚機能
- 浴室乾燥機
- 浴室に窓
- トイレ
- トイレ2箇所
- 温水洗浄便座
- 室内洗濯機置場
- 洗髪洗面化粧台
- 洗面所独立
- 照明器具
- ダウンライト
- リビング階段
- モニタ付インターホン
- 火災警報器/報知機
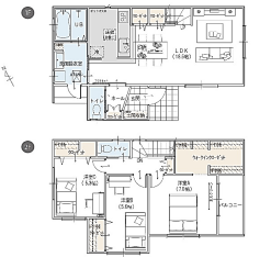
- LDK18畳以上
- 2面採光
- 複層ガラス
- 24時間換気システム
- クローゼット
- クローゼット3箇所
- ウォークインクローゼット
- 床下収納
- 全居室収納
- シューズボックス
- シューズインクローク
- 宅配BOX
物件の特徴
- 南向
- 地盤調査済
- 3沿線以上利用可
- 小学校徒歩10分以内
- 前道6m以上
- 南側道路面す
- 閑静な住宅街
- 通風良好
- 陽当り良好
- 2階建
- 平坦地
- 長期優良住宅
物件詳細情報
| 価格 | 3,490万円 | 間取り | 3LDK |
|---|---|---|---|
| 物件種別 | 新築一戸建て | ||
| 所在地 | 愛知県岡崎市矢作町字西林寺 | ||
| アクセス |
|
||
| 建物面積 | 公93.78㎡ | 駐車場 | あり 普通:1台 軽:2台 |
| 築年月 | 2025年(令和7年)08月築 | 建築確認 | 第R06確認建築CI東海A02222号 |
| 建物構造 | 木造 2階建 | 工法 | 2×4工法 |
| 主要採光 | バルコニー | ||
| 保証・評価 | 長期優良住宅認定通知書 |
||
| 土地面積 | 実171.93㎡(52坪) | 接道 | 南側(公道)幅 約6.1m 間口 約3.00m |
| 私道 | セットバック | ||
| 地目 | 宅地 | 地勢 | 平坦 |
| 権利 | 所有権 |
||
| 都市計画 | 市街化区域 |
用途地域 | 商業 |
| 建ぺい/容積率 | 80% / 400% | 土地国土法 | |
| 許可番号 | 建築基準法 | ||
| 法令制限 | |||
| 小学区 | 矢作東小学校 徒歩4分 (約270m) | 中学区 | 矢作北中学校 徒歩19分 (約1500m) |
| 現況 | 空 | 引渡 | 相談 |
| その他費用 | |||
| 周辺環境 | 矢作保育園 徒歩5分 (約380m) 矢作郵便局 徒歩7分 (約540m) ファミリーマート中園町店 徒歩14分 (約1070m) 矢作公園 徒歩15分 (約1140m) 業務スーパー中園店 徒歩14分 (約1120m) スギ薬局東大友店 徒歩21分 (約1610m) 岡崎市図書館交流プラザりぶら 徒歩25分 (約1940m) アオキスーパー岡崎康生店 徒歩27分 (約2160m) MEGAドン・キホーテUNY矢作店 徒歩29分 (約2290m) アピタ岡崎北店 徒歩35分 (約2760m) |
||
| 備考 | |||
| 物件番号 | 4393902 | 取引態様 | 媒介 |
取扱店舗情報
ハウスドゥ 幸田 株式会社アールクローバー 店舗詳細ページへ
| 電話番号 | 0564-73-1620 |
|---|---|
| 所在地 | 〒444-0117 愛知県額田郡幸田町大字相見字沖原69番地 アヴニール相見101号室 |
| 営業時間 | 9:00~18:00 |
| 定休日 | 水曜日 |
| 宅建免許番号 | 愛知県知事(1)第26226号 |
| アクセス | 店舗への地図はこちら |

来店ご予約
愛知県岡崎市で価格が似ている物件はこちら
- 愛知県
マイページ物件数 - 32,271件
愛知県新築一戸建て新着物件
- お近くの店舗を探す
-
おすすめ物件
-
-

-
- 新築一戸建て
- 4,699万円
-
名古屋市瑞穂区雁道町1丁目
-
JR東海道本線熱田
-
-
-

-
- 新築一戸建て
- 3,392万円
-
名古屋市緑区浦里1丁目
-
名鉄名古屋本線本星崎
-
-
-

-
- 新築一戸建て
- 4,390万円
-
名古屋市瑞穂区鍵田町1丁目
-
名古屋市桜通線新瑞橋
-
-
-

-
- 新築一戸建て
- 3,899万円
-
名古屋市港区西川町2丁目
-
名古屋臨海高速鉄道荒子川公園
-
-
-

-
- 新築一戸建て
- 2,790万円
-
知多郡阿久比町大字草木字東郷
-
名鉄河和線坂部
-
-
-

-
- 新築一戸建て
- 2,880万円
-
名古屋市守山区深沢1丁目
-
JR中央本線神領
-
-
-

-
- 新築一戸建て
- 4,730万円
-
岡崎市上地6丁目
-
JR東海道本線相見
-
-
-

-
- 新築一戸建て
- 3,370万円
-
半田市亀崎高根町8丁目
-
JR武豊線亀崎
-
-
-

-
- 新築一戸建て
- 2,880万円
-
津島市南本町7丁目
-
名鉄尾西線日比野
-
-
-

-
- 新築一戸建て
- 2,977万円
-
高浜市呉竹町6丁目
-
名鉄三河線三河高浜
-
























【ハウスドゥ幸田】
■何を相談してよいか分からなくても大丈夫♪
■ライフプランに寄り添ったご提案♪
■自己資金0円で購入可能な方法も♪
■支払いに不安な方もお気軽にどうぞ♪