- TOP>
- 九州・沖縄>
- 熊本県のイベント・オープンハウス情報>
- 新築戸建 菊池郡菊陽町津久礼 1/2号棟
菊池郡菊陽町大字津久礼の新築戸建
掲載情報更新日:2025年09月27日 次回更新予定日:2025年10月11日
- 3,898万円
-
- 借入ご希望金額
万円 - 借入期間
年 - 借入金利
% - 月々のお支払い金額
円
- 借入ご希望金額
※ 月々のお支払例は目安の試算となりますので、実際の金額とは異なる場合がございます。詳しくは店舗までお問合わせください。
- 菊池郡菊陽町大字津久礼
-
JR豊肥本線『原水』 徒歩20分 (約1600m)
『宮の上(菊陽)』 徒歩4分 (約250m)
菊池郡菊陽町大字津久礼一戸建て | 物件情報
《本日案内可能》☆仲介手数料無料物件☆(122万円相当がお得!)お気軽にお問合せください♪
【最安値へ挑戦!】
当店は通常かかる仲介手数料(物件価格の3%+6万円)が無料!(例:3000万円の場合、90万円相当)
諸費用の中で1番大きな割合を占める『 仲介手数料 』を節約できます♪
さらに!他社様のお見積もりよりも必ずお安くご購入いただける『最安値保証』をしております!
まずはお気軽にお問合せください☆
【内覧ツアー】
熊本県内全域の気になる物件を全て当店でご内覧いただける『内覧ツアー』を実施中☆新築・中古・中古マンションも!見学されたい物件を1日で内覧可能♪忙しいお客様のお時間を無駄にさせません!
【最安値保証】
もっとお得にお家を購入したい!そんな方はぜひ『ハウスドゥ御幸田迎』にお任せください!
他社様よりも必ずお得にご購入いただけることをお約束いたします。
当店ではオプション費用(エアコン、網戸、太陽光等)もお客様に代わり相見積もりいたします!
住宅ローンにも自信あり!(承認率約90%♪)ご相談ください!
不動産のプロ『ハウスドゥ 御幸田迎』が年間契約数200件以上の経験を活かし、後悔のないお家選びを全力でお手伝いします!
物件の設備
- 電気
- オール電化
- 公営水道
- 下水道
- 公共下水
- 給湯
- 浄水器
- 食器洗浄乾燥機
- 食品庫
- IHクッキングヒータ
- コンロ三口
- グリル
- カウンターキッチン
- システムキッチン
- バス
- ユニットバス
- オートバス
- バス1坪以上
- 追焚機能
- 浴室暖房
- 浴室乾燥機
- トイレ2箇所
- 温水洗浄便座
- 室内洗濯機置場
- 洗髪洗面化粧台
- 洗面所独立
- ダウンライト
- リビング階段
- 省エネ給湯器
- ディンプルキー
- ダブルロックキー
- モニタ付インターホン
- 火災警報器/報知機
- LDK15畳以上
- 複層ガラス
- 全居室複層ガラス
- フローリング
- 全室フローリング
- 24時間換気システム
- クローゼット
- クローゼット3箇所
- 全居室収納
- シューズインクローク
物件の特徴
- 南向
- 小学校徒歩10分以内
- 緑豊かな住宅地
- 閑静な住宅街
- 通風良好
- 陽当り良好
- 2階建
- 外壁サイディング
- 即入居可
オープンハウス・イベント情報
開催日時:毎週土日祝 09:30~19:00
開催場所:熊本県菊池郡菊陽町
\\現地見学会ご予約受付中// ○平日・土日祝いつでも承ります!! 〇お仕事帰りもOK!早朝・19時以降も対応致します! ◇◆◇お問い合わせ◇◆◇ 電話:096-243-3000 または 見学予約フォームにて事前にご予約をお願いします♪ ◇◆◇見学のご予約◇◆◇ 事前にご希望日時…
物件詳細情報
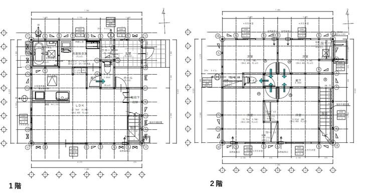
価格 | 3,898万円 | 間取り | 4LDK |
---|---|---|---|
物件種別 | 新築一戸建て | ||
所在地 | 熊本県菊池郡菊陽町大字津久礼324-13付近 2号棟 | ||
アクセス |
|
||
建物面積 | 99.36㎡ | 駐車場 | あり 普通:2台 |
築年月 | 2025年(令和7年)04月築 | 建築確認 | 第202407260号 |
建物構造 | 木造 2階建 | 工法 | |
主要採光 | 南向 | バルコニー | |
保証・評価 | |||
分譲情報 | 【販売戸数】:2戸 【価格】:3,898万円 ~4,180万円 【土地面積】:120.08㎡ ~122.96㎡ |
||
土地面積 | 120.08㎡(36.32坪) | 接道 | |
私道 | セットバック | ||
地目 | 宅地 | 地勢 | |
権利 | 所有権 |
||
都市計画 | 市街化区域 |
用途地域 | 1種中高 |
建ぺい/容積率 | 60% / 150% | 土地国土法 | |
許可番号 | 建築基準法 | ||
法令制限 | 景観法・航空法 | ||
小学区 | 菊陽中部小学校 徒歩5分 (約350m) | 中学区 | 菊陽中学校 徒歩7分 (約550m) |
現況 | 完工済 | 引渡 | 即 |
その他費用 | |||
周辺環境 | 菊陽中部小学校 徒歩5分 (約350m) 菊陽町立菊陽中学校 徒歩7分 (約550m) さくら園 徒歩9分 (約700m) セブン-イレブン 菊陽町役場前店 徒歩4分 (約300m) 菊陽中部クリニック 徒歩5分 (約370m) 緑陽台公園 徒歩9分 (約650m) 菊陽町役場 徒歩11分 (約810m) 菊陽久保田郵便局 徒歩10分 (約770m) ザ・ビッグ 菊陽店 徒歩17分 (約1290m) MEGAドン・キホーテ 菊陽店 徒歩23分 (約1790m) |
||
備考 | ・菊陽中部小学校まで徒歩5分(約350m) ・菊陽町立菊陽中学校まで徒歩7分(約550m) ・さくら園まで徒歩9分(約700m) ・セブン-イレブン 菊陽町役場前店まで徒歩4分(約300m) ・菊陽中部クリニックまで徒歩5分(約370m) ・緑陽台公園まで徒歩9分(約650m) ・菊陽町役場まで徒歩11分(約810m) ・菊陽久保田郵便局まで徒歩10分(約770m) ・ザ・ビッグ 菊陽店まで徒歩17分(約1290m) ・MEGAドン・キホーテ 菊陽店まで徒歩23分(約1790m) |
||
物件番号 | 4395958 | 取引態様 | 媒介 |
取扱店舗情報
ハウスドゥ 御幸田迎 株式会社Remado 店舗詳細ページへ
電話番号 | 096-243-3000 |
---|---|
所在地 | 〒861-4108 熊本県熊本市南区幸田1丁目7-20 |
営業時間 | 9:30~18:00 |
定休日 | お盆、年末年始 |
宅建免許番号 | 熊本県知事(1)第5556号 |
アクセス | 店舗への地図はこちら |
来店ご予約
熊本県菊池郡菊陽町で価格が似ている物件はこちら
- 熊本県
マイページ物件数 - 2,992件
最近見た物件
-
-
-
- 中古マンション
- 178万円
-
北九州市小倉北区井堀1丁目
-
JR鹿児島本線西小倉
-
熊本県新築一戸建て新着物件
-
-
-
- 新築一戸建て
- 3,798万円
-
熊本市東区八反田1丁目
-
JR豊肥本線東海学園前駅
-
-
-
-
- 新築一戸建て
- 3,798万円
-
熊本市東区八反田1丁目
-
JR豊肥本線東海学園前駅
-
-
-
-
- 新築一戸建て
- 3,798万円
-
熊本市東区八反田1丁目
-
JR豊肥本線東海学園前駅
-
-
-
-
- 新築一戸建て
- 3,298万円
-
熊本市東区吉原町
-
JR豊肥本線武蔵塚駅
-
-
-
-
- 新築一戸建て
- 3,898万円
-
熊本市東区八反田1丁目
-
JR豊肥本線東海学園前駅
-
-
-
-
- 新築一戸建て
- 3,280万円
-
熊本市北区池田3丁目
-
熊本電気鉄道池田駅
-
-
-
-
- 新築一戸建て
- 2,598万円
-
宇城市松橋町松橋
-
JR鹿児島本線松橋駅
-
- お近くの店舗を探す
-
おすすめ物件
-
-
-
- 新築一戸建て
- 2,880万円
-
熊本市中央区出水6丁目
-
JR豊肥本線南熊本
-
-
-
-
- 新築一戸建て
- 3,390万円
-
熊本市東区湖東3丁目
-
JR豊肥本線新水前寺
-
-
-
-
- 新築一戸建て
- 3,288万円
-
熊本市南区幸田2丁目
-
JR豊肥本線平成
-
-
-
-
- 新築一戸建て
- 3,498万円
-
熊本市東区江津2丁目
-
熊本市健軍線神水交差点
-
-
-
-
- 新築一戸建て
- 2,998万円
-
熊本市東区戸島本町
-
JR豊肥本線光の森
-
-
-
-
- 新築一戸建て
- 3,398万円
-
熊本市北区清水新地1丁目
-
熊本電気鉄道堀川
-
-
-
-
- 新築一戸建て
- 3,499万円
-
熊本市東区尾ノ上3丁目
-
熊本市健軍線神水交差点
-
-
-
-
- 新築一戸建て
- 3,198万円
-
合志市御代志
-
熊本電気鉄道御代志
-
担当エージェント:片山 久瑠実
【 月々の支払い例 】
3,900万円借入の場合
月々76,115円(頭金・ボーナス払い無)
金利0.648% (ネット銀行、金利優遇有)
変動金利 返済期間50年
※あくまでも一例です。条件有。
【周辺環境】
・菊陽中部小学校まで徒歩5分(約350m)
・菊陽町立菊陽中学校まで徒歩7分(約550m)
・さくら園まで徒歩9分(約700m)
・セブン-イレブン 菊陽町役場前店まで徒歩4分(約300m)
・菊陽中部クリニックまで徒歩5分(約370m)
・緑陽台公園まで徒歩9分(約650m)
・菊陽町役場まで徒歩11分(約810m)
・菊陽久保田郵便局まで徒歩10分(約770m)
・ザ・ビッグ 菊陽店まで徒歩17分(約1290m)
・MEGAドン・キホーテ 菊陽店まで徒歩23分(約1790m)
いつでもお気軽にご連絡ください☆彡
お問い合わせはハウスドゥ御幸田迎(096-243-3000)まで♪