立川市柴崎町1丁目 全1棟3号棟 新築分譲住宅
掲載情報更新日:2025年10月23日 次回更新予定日:2025年11月06日
- 5,880万円
-
- 借入ご希望金額
万円 - 借入期間
年 - 借入金利
% - 月々のお支払い金額
円
- 借入ご希望金額
※ 月々のお支払例は目安の試算となりますので、実際の金額とは異なる場合がございます。詳しくは店舗までお問合わせください。
- 立川市柴崎町1丁目
-
JR中央本線『立川』 徒歩18分 (約1440m)
立川市柴崎町1丁目 全1棟3号棟 新築分譲住宅一戸建て | 物件情報
【新築仲介手数料無料のハウスドゥ立川北】立川市柴崎町1丁目 全3棟 3号棟
こちらの物件は【ハウスドゥ立川北限定のゼロキャンペーン対象物件】です。ご購入の際の仲介手数料が【無料】の0円です。中古住宅ご購入のお客様には【Wキャンペーン対象物件】でギフト券をプレゼント!大変お得なキャンペーンなのでぜひご利用ください。さらにローンシュミレーションからライフプランの設計も【無料】で作成いたします。賢く買うならハウスドゥ 立川北で検索!
物件の設備
- 電気
- 公営水道
- 公共下水
- 都市ガス
- 給湯
- 浄水器
- コンロ三口
- グリル
- カウンターキッチン
- システムキッチン
- ユニットバス
- 追焚機能
- 浴室暖房
- 浴室乾燥機
- 浴室に窓
- トイレ2箇所
- 温水洗浄便座
- 室内洗濯機置場
- 洗髪洗面化粧台
- 洗面所独立
- 床暖房
- リビング階段
- 人感照明センサー
- ディンプルキー
- モニタ付インターホン
- 火災警報器/報知機
- LDK15畳以上
- 2面採光
- 全居室複層ガラス
- 全室フローリング
- シャッター雨戸
- 24時間換気システム
- クローゼット
- ウォークインクローゼット2箇所
- 床下収納
- シューズボックス
- 3面バルコニー
物件の特徴
- 南向
- 耐震構造
- 前道6m以上
- 南側道路面す
- スーパーが近い
- 市街地が近い
- 都市近郊
- 通風良好
- 陽当り良好
- 3階建以上
- 平坦地
- 整形地
- 建設住宅性能評価付
- 設計住宅性能評価付
- 建築確認完了検査済証
- 耐震基準適合証明書有
- BELS/省エネ基準適合
- フラット35Sに対応
物件詳細情報
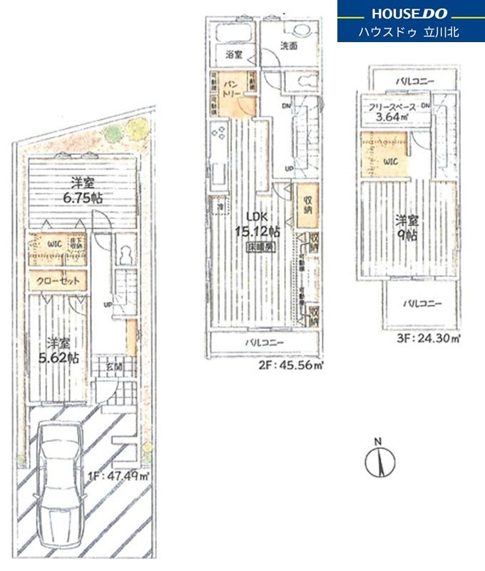
| 価格 | 5,880万円 | 間取り | 3LDK |
|---|---|---|---|
| 物件種別 | 新築一戸建て | ||
| 所在地 | 東京都立川市柴崎町1丁目11-16 3号棟 | ||
| アクセス |
|
||
| 建物面積 | 117.3㎡ | 駐車場 | あり 普通:1台 |
| 築年月 | 2026年(令和8年)01月築 | 建築確認 | 第25UDI1W建03764号 |
| 建物構造 | 木造 3階建 | 工法 | 軸組工法 |
| 主要採光 | 南向 | バルコニー | |
| 保証・評価 | 耐震基準適合証明書・設計住宅性能評価書・建設住宅性能評価書(新築時) |
||
| 分譲情報 | 【販売戸数】:3戸 |
||
| 土地面積 | 公81.4㎡(24.62坪) | 接道 | 南側(公道)幅 約7.4m |
| 私道 | セットバック | ||
| 地目 | 宅地 | 地勢 | 平坦 |
| 権利 | 所有権 |
||
| 都市計画 | 市街化区域 |
用途地域 | 1種中高 |
| 建ぺい/容積率 | 60% / 200% | 土地国土法 | |
| 許可番号 | 建築基準法 | ||
| 法令制限 | |||
| 小学区 | 第一小学校 徒歩6分 (約450m) | 中学区 | 立川第一中学校 徒歩5分 (約350m) |
| 現況 | 建築中 | 引渡 | 期日指定:2026年02月中旬 |
| その他費用 | |||
| 備考 | セブンイレブン立川柴崎町1丁目店・・・徒歩1分/ミニコープ立川店・・・徒歩8分/きらぼし銀行昭島店・・・徒歩13分 立川柴崎郵便局・・・徒歩12分/立川中央病院・・・徒歩8分/ダイソー立川富士見町店・・・徒歩8分 |
||
| 物件番号 | 4397157 | 取引態様 | 媒介 |
取扱店舗情報
ハウスドゥ 立川北 株式会社シティリノベーション 店舗詳細ページへ
| 電話番号 | 042-537-9361 |
|---|---|
| 所在地 | 〒190-0004 東京都立川市柏町3-19-14 フレンテ1F |
| 営業時間 | 9:00~18:00 |
| 定休日 | GW、夏季、冬季 |
| 宅建免許番号 | 東京都知事(2)第100954号 |
| アクセス | 店舗への地図はこちら |

来店ご予約
東京都立川市で価格が似ている物件はこちら
- 東京都
マイページ物件数 - 5,557件
東京都新築一戸建て新着物件
-
-

-
- 新築一戸建て
- 5,790万円
-
調布市深大寺北町1丁目
-
京王相模原線調布駅
-
-
-

-
- 新築一戸建て
- 5,890万円
-
調布市深大寺北町1丁目
-
京王相模原線調布駅
-
-
-

-
- 新築一戸建て
- 5,680万円
-
小金井市前原町1丁目
-
JR中央本線武蔵小金井駅
-
-
-

-
- 新築一戸建て
- 6,180万円
-
小金井市前原町1丁目
-
JR中央本線武蔵小金井駅
-
-
-

-
- 新築一戸建て
- 3,980万円
-
北区豊島8丁目
-
東京メトロ南北線王子神谷駅
-
-
-

-
- 新築一戸建て
- 4,190万円
-
小平市小川町1丁目
-
西武国分寺線鷹の台駅
-
-
-

-
- 新築一戸建て
- 6,690万円
-
国分寺市東元町2丁目
-
JR中央本線国分寺駅
-
- お近くの店舗を探す
-
おすすめ物件
-
-

-
- 新築一戸建て
- 7,580万円
-
調布市国領町7丁目
-
京王線国領
-
-
-

-
- 新築一戸建て
- 6,780万円
-
調布市国領町7丁目
-
京王線国領
-
-
-

-
- 新築一戸建て
- 5,180万円
-
調布市深大寺東町6丁目
-
京王線調布
-
-
-

-
- 新築一戸建て
- 5,690万円
-
調布市深大寺東町1丁目
-
京王線調布
-
-
-

-
- 新築一戸建て
- 7,680万円
-
世田谷区北烏山4丁目
-
京王線千歳烏山
-
-
-

-
- 新築一戸建て
- 7,880万円
-
横浜市青葉区たちばな台2丁目
-
東急田園都市線青葉台
-
-
-

-
- 新築一戸建て
- 1億4,990万円
-
世田谷区上馬5丁目
-
東急田園都市線駒沢大学
-
-
-

-
- 新築一戸建て
- 2,880万円
-
八王子市大楽寺町
-
JR中央本線西八王子
-
-
-

-
- 新築一戸建て
- 8,480万円
-
調布市国領町1丁目
-
京王線国領
-
-
-

-
- 新築一戸建て
- 7,390万円
-
江戸川区篠崎町3丁目
-
都営新宿線篠崎
-




担当エージェント:板谷 和友樹
ハウスドゥ立川北のホームページをご覧頂きありがとうございます。
お客様の多くがお家を買うのに不安があるかと思われます。ハウスドゥではお客様の不安や問題解決に一つ一つ誠心誠意お答えいたします。また、お家探しに役立つ多くの物件に関する情報を掲載しております。
ハウスドゥ立川北ではお客様お一人お一人にあったご提案を心がけており、ローンシュミレーションや人工知能を使ったライフプランの作成(要予約)を行いお客様の不安を解決いたします
■頭金は必要なのか?
■ローンは払っていけるのか?
■どのタイミングで住み替えや引越しが出来るのか?etc
お気軽に相談できるハウスドゥ立川北へお問い合わせ下さい
◆ご予約方法◆
直接お電話ください。【0120-537-936】
メールでのご予約も承ります。お気軽にご来店ください。
物件によっては事前に鍵の手配が必要な場合がありますので、お早目にご連絡をいただけるとご案内がスムーズです。
◆ご案内方法◆
①最寄駅や周辺地での待ち合わせ②ハウスドゥ立川北へのご来店などご相談ください。