小平市学園東町2丁目 全5棟 5号棟 新築分譲住宅
掲載情報更新日:2025年10月18日 次回更新予定日:2025年11月01日
- 5,390万円
-
- 借入ご希望金額
万円 - 借入期間
年 - 借入金利
% - 月々のお支払い金額
円
- 借入ご希望金額
※ 月々のお支払例は目安の試算となりますので、実際の金額とは異なる場合がございます。詳しくは店舗までお問合わせください。
- 小平市学園東町2丁目
-
西武多摩湖線『一橋学園』 徒歩10分 (約800m)
小平市学園東町2丁目 全5棟 5号棟 新築分譲住宅一戸建て | 物件情報
【新築仲介手数料無料のハウスドゥ立川北】小平市学園東町2丁目 全5棟 5号棟
こちらの物件は【ハウスドゥ立川北限定のゼロキャンペーン対象物件】です。ご購入の際の仲介手数料が【無料】の0円です。中古住宅ご購入のお客様には【Wキャンペーン対象物件】でギフト券をプレゼント!大変お得なキャンペーンなのでぜひご利用ください。さらにローンシュミレーションからライフプランの設計も【無料】で作成いたします。賢く買うならハウスドゥ 立川北で検索!
物件の設備
- 電気
- 公営水道
- 公共下水
- 都市ガス
- 給湯
- コンロ三口
- グリル
- カウンターキッチン
- システムキッチン
- ユニットバス
- 追焚機能
- 浴室乾燥機
- 浴室に窓
- トイレ2箇所
- 温水洗浄便座
- 室内洗濯機置場
- 洗髪洗面化粧台
- 洗面所独立
- リビング階段
- ディンプルキー
- モニタ付インターホン
- 火災警報器/報知機
- グルニエ
- LDK15畳以上
- 全室2面採光
- 天井高2.5m以上
- 全居室複層ガラス
- 全室フローリング
- クッションフロア
- 24時間換気システム
- クローゼット
- クローゼット3箇所
- 床下収納
- 全居室収納
- シューズボックス
物件の特徴
- 南向
- 小学校徒歩10分以内
- 南側道路面す
- スーパーが近い
- 閑静な住宅街
- 通風良好
- 陽当り良好
- 2階建
- 前面棟無
- 開発分譲地内
- 長期優良住宅
- 建設住宅性能評価付
- 設計住宅性能評価付
- 建築確認完了検査済証
- 耐震基準適合証明書有
- フラット35
- S適合証明書
- 新築
- 増改築設計図書
- BELS/省エネ基準適合
- 即入居可
- フラット35Sに対応
物件詳細情報
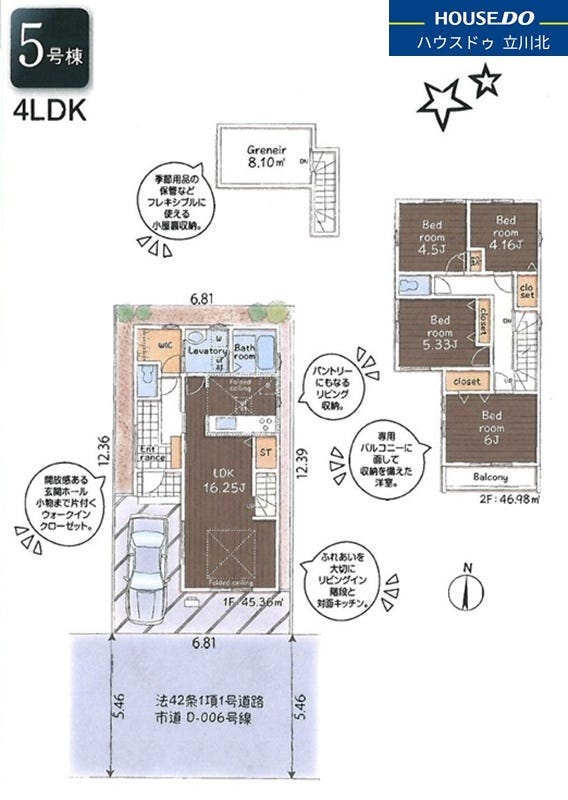
価格 | 5,390万円 | 間取り | 4LDK |
---|---|---|---|
物件種別 | 新築一戸建て | ||
所在地 | 東京都小平市学園東町2丁目 5号棟 | ||
アクセス |
|
||
建物面積 | 公92.3㎡ | 駐車場 | あり 普通:1台 |
築年月 | 2025年(令和7年)07月築 | 建築確認 | 第24UDI1W建06428号 |
建物構造 | 木造 2階建 | 工法 | 軸組工法 |
主要採光 | 南向 | バルコニー | |
保証・評価 | 長期優良住宅認定通知書・フラット35S適合証明書・耐震基準適合証明書・設計住宅性能評価書・建設住宅性能評価書(新築時) |
||
分譲情報 | 【販売戸数】:3戸 |
||
土地面積 | 公84.3㎡(25.50坪) | 接道 | 南側(公道)幅 約5.4m |
私道 | セットバック | ||
地目 | 宅地 | 地勢 | その他 |
権利 | 所有権 |
||
都市計画 | 市街化区域 |
用途地域 | 1種住居(一部1種低層 含む) |
建ぺい/容積率 | 60%(一部40% 含む) / 200%(一部80% 含む) | 土地国土法 | |
許可番号 | 建築基準法 | ||
法令制限 | |||
小学区 | 学園東小学校 徒歩4分 (約327m) | 中学区 | 小平第一中学校 徒歩7分 (約566m) |
現況 | 完工済 | 引渡 | 即 |
その他費用 | |||
備考 | セブンイレブン小平一橋学園東店・・・徒歩約5分/スーパーあまいけ一橋学園店・・・徒歩約11分/りそな銀行小平支店・・・徒歩約7分/一橋学園駅前郵便局・・・徒歩約9分/仲谷クリニック・・・徒歩約7分/ドラッグセイムス小平東店・・・徒歩約7分/ビッグエー小平学園東店・・・徒歩約7分 | ||
物件番号 | 4399902 | 取引態様 | 媒介 |
取扱店舗情報
ハウスドゥ 立川北 株式会社シティリノベーション 店舗詳細ページへ
電話番号 | 042-537-9361 |
---|---|
所在地 | 〒190-0004 東京都立川市柏町3-19-14 フレンテ1F |
営業時間 | 9:00~18:00 |
定休日 | GW、夏季、冬季 |
宅建免許番号 | 東京都知事(2)第100954号 |
アクセス | 店舗への地図はこちら |
来店ご予約
東京都小平市で価格が似ている物件はこちら
- 東京都
マイページ物件数 - 5,726件
最近見た物件
-
-
-
- 新築一戸建て
- 2,780万円
-
八王子市川口町
-
JR中央本線八王子
-
東京都新築一戸建て新着物件
-
-
-
- 新築一戸建て
- 2,950万円
-
八王子市諏訪町
-
JR中央本線西八王子駅
-
-
-
-
- 新築一戸建て
- 2,880万円
-
八王子市諏訪町
-
JR中央本線西八王子駅
-
-
-
-
- 新築一戸建て
- 2,950万円
-
八王子市諏訪町
-
JR中央本線西八王子駅
-
-
-
-
- 新築一戸建て
- 5,290万円
-
小平市上水南町4丁目
-
JR中央本線武蔵小金井駅
-
-
-
-
- 新築一戸建て
- 4,990万円
-
小平市上水南町4丁目
-
JR中央本線武蔵小金井駅
-
-
-
-
- 新築一戸建て
- 5,480万円
-
調布市深大寺元町4丁目
-
京王線西調布駅
-
-
-
-
- 新築一戸建て
- 6,680万円
-
世田谷区宇奈根3丁目
-
小田急小田原線成城学園前駅
-
- お近くの店舗を探す
-
おすすめ物件
-
-
-
- 新築一戸建て
- 5,999万円
-
国分寺市北町5丁目
-
西武国分寺線鷹の台
-
-
-
-
- 新築一戸建て
- 4,380万円
-
調布市深大寺東町6丁目
-
京王線調布
-
-
-
-
- 新築一戸建て
- 2,880万円
-
八王子市下恩方町
-
JR中央本線高尾
-
-
-
-
- 新築一戸建て
- 5,180万円
-
調布市深大寺東町6丁目
-
京王線調布
-
-
-
-
- 新築一戸建て
- 7,390万円
-
江戸川区篠崎町3丁目
-
都営新宿線篠崎
-
-
-
-
- 新築一戸建て
- 4,780万円
-
調布市上石原3丁目
-
京王線西調布
-
-
-
-
- 新築一戸建て
- 6,780万円
-
調布市国領町7丁目
-
京王線国領
-
-
-
-
- 新築一戸建て
- 7,680万円
-
世田谷区北烏山4丁目
-
京王線千歳烏山
-
-
-
-
- 新築一戸建て
- 2,880万円
-
八王子市下恩方町
-
JR中央本線高尾
-
-
-
-
- 新築一戸建て
- 8,199万円
-
江戸川区南葛西5丁目
-
JR京葉線葛西臨海公園
-
担当エージェント:板谷 和友樹
ハウスドゥ立川北のホームページをご覧頂きありがとうございます。
お客様の多くがお家を買うのに不安があるかと思われます。ハウスドゥではお客様の不安や問題解決に一つ一つ誠心誠意お答えいたします。また、お家探しに役立つ多くの物件に関する情報を掲載しております。
ハウスドゥ立川北ではお客様お一人お一人にあったご提案を心がけており、ローンシュミレーションや人工知能を使ったライフプランの作成(要予約)を行いお客様の不安を解決いたします
■頭金は必要なのか?
■ローンは払っていけるのか?
■どのタイミングで住み替えや引越しが出来るのか?etc
お気軽に相談できるハウスドゥ立川北へお問い合わせ下さい
◆ご予約方法◆
直接お電話ください。【0120-537-936】
メールでのご予約も承ります。お気軽にご来店ください。
物件によっては事前に鍵の手配が必要な場合がありますので、お早目にご連絡をいただけるとご案内がスムーズです。
◆ご案内方法◆
①最寄駅や周辺地での待ち合わせ②ハウスドゥ立川北へのご来店などご相談ください。