川西市鼓が滝3丁目の新築戸建
掲載情報更新日:2025年10月30日 次回更新予定日:2025年11月13日
- 4,270万円
-
- 借入ご希望金額
万円 - 借入期間
年 - 借入金利
% - 月々のお支払い金額
円
- 借入ご希望金額
※ 月々のお支払例は目安の試算となりますので、実際の金額とは異なる場合がございます。詳しくは店舗までお問合わせください。
- 川西市鼓が滝3丁目
-
能勢電鉄『鼓滝』 徒歩10分 (約800m)
川西市鼓が滝3丁目一戸建て | 物件情報
物件の設備
- 電気
- 公営水道
- 公共下水
- 都市ガス
- コンロ三口
- カウンターキッチン
- システムキッチン
- 追焚機能
- 浴室に窓
- トイレ2箇所
- 温水洗浄便座
- 洗髪洗面化粧台
- リビング階段
- LDK20畳以上
- クローゼット2箇所
- ウォークインクローゼット
- 全居室収納
- シューズインクローク
物件の特徴
- 南側道路面す
- 2階建
- 角地
- 整形地
- 区画整理地内
物件詳細情報
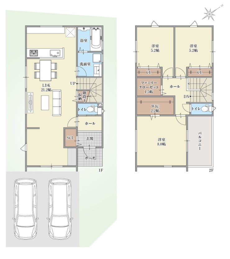
| 価格 | 4,270万円 | 間取り | 3LDK |
|---|---|---|---|
| 物件種別 | 新築一戸建て | ||
| 所在地 | 兵庫県川西市鼓が滝3丁目 22 | ||
| アクセス |
|
||
| 建物面積 | 100.19㎡ | 駐車場 | なし |
| 築年月 | 2025年(令和7年)01月築 | 建築確認 | |
| 建物構造 | 木造 2階建 | 工法 | |
| 主要採光 | バルコニー | ||
| 保証・評価 | |||
| 土地面積 | 公133.84㎡(40.48坪) | 接道 | 南側幅 約4.5m |
| 私道 | セットバック | ||
| 地目 | 宅地 | 地勢 | |
| 権利 | 所有権 |
||
| 都市計画 | 市街化区域 |
用途地域 | 1種低層 |
| 建ぺい/容積率 | 50% / 100% | 土地国土法 | |
| 許可番号 | 建築基準法 | ||
| 法令制限 | 景観法・宅地造成工事規制区域・法22条区域・高さ制限10m・外壁後退全周1m | ||
| 小学区 | 多田東小学校 徒歩15分 (約1200m) | 中学区 | 多田中学校 徒歩33分 (約2600m) |
| 現況 | 完工済 | 引渡 | 相談 |
| その他費用 | |||
| 備考 | |||
| 物件番号 | 4400003 | 取引態様 | 売主 |
取扱店舗情報
ハウスドゥ 奈良学園前 株式会社日本中央住販 店舗詳細ページへ
| 電話番号 | 0742-43-7179 |
|---|---|
| 所在地 | 〒631-0044 奈良県奈良市藤ノ木台4丁目6-20 |
| 営業時間 | 9:30~18:00 |
| 定休日 | 毎週火・水曜日(※祝日の際は営業) |
| 宅建免許番号 | 国土交通大臣(6)第5538号 |
| アクセス | 店舗への地図はこちら |

来店ご予約
- 兵庫県
マイページ物件数 - 2,830件
兵庫県新築一戸建て新着物件
- お近くの店舗を探す
-



































