さくら市きぬの里3丁目の新築戸建
掲載情報更新日:2025年10月13日 次回更新予定日:2025年10月27日
- 2,090万円
-
- 借入ご希望金額
万円 - 借入期間
年 - 借入金利
% - 月々のお支払い金額
円
- 借入ご希望金額
※ 月々のお支払例は目安の試算となりますので、実際の金額とは異なる場合がございます。詳しくは店舗までお問合わせください。
- さくら市きぬの里3丁目
-
JR東北本線『氏家』 徒歩34分 (約2720m)
さくら市きぬの里3丁目一戸建て | 物件情報
物件の設備
- 電気
- 上水道
- 下水道
- プロパンガス
- 浄水器
- カウンターキッチン
- システムキッチン
- 追焚機能
- 浴室乾燥機
- トイレ2箇所
- 温水洗浄便座
- ダウンライト
- フットライト
- 人感照明センサー
- 省エネ給湯器
- EV車充電設備
- カードキー
- モニタ付インターホン
- 防犯カメラ
- 火災警報器/報知機
- 複層ガラス
- クローゼット
- 床下収納
- 全居室収納
- 庭
物件の特徴
- 前道6m以上
- 南側道路面す
- スーパーが近い
- 閑静な住宅街
- 市街地が近い
- 陽当り良好
- 2階建
- 平坦地
- 整形地
- 即入居可
物件詳細情報
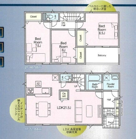
| 価格 | 2,090万円 | 間取り | 3LDK |
|---|---|---|---|
| 物件種別 | 新築一戸建て | ||
| 所在地 | 栃木県さくら市きぬの里3丁目 2号棟 | ||
| アクセス |
|
||
| 建物面積 | 公98.82㎡ | 駐車場 | あり 普通:2台 |
| 築年月 | 2025年(令和7年)08月築 | 建築確認 | |
| 建物構造 | 木造 2階建 | 工法 | |
| 主要採光 | バルコニー | ||
| 保証・評価 | |||
| 土地面積 | 公195.8㎡(59.22坪) | 接道 | 南側(公道)幅 約6.0m |
| 私道 | セットバック | ||
| 地目 | 畑 | 地勢 | 平坦 |
| 権利 | 所有権 |
||
| 都市計画 | 非線引区域 |
用途地域 | 1種住居 |
| 建ぺい/容積率 | 60% / 200% | 土地国土法 | |
| 許可番号 | 建築基準法 | ||
| 法令制限 | |||
| 小学区 | 南小学校 徒歩7分 (約500m) | 中学区 | 氏家中学校 徒歩64分 (約5100m) |
| 現況 | 完工済 | 引渡 | 即 |
| その他費用 | |||
| 周辺環境 | さくら市立南小学校 徒歩7分 (約500m) さくら市立氏家中学校 徒歩68分 (約5430m) 黒須病院 徒歩36分 (約2860m) ローソン櫻野八幡店 徒歩41分 (約3280m) ザ・ビックエクストラさくら店 徒歩60分 (約4780m) |
||
| 備考 | |||
| 物件番号 | 4401424 | 取引態様 | 媒介 |
取扱店舗情報
| 電話番号 | 028-678-2888 |
|---|---|
| 所在地 | 〒320-0826 栃木県宇都宮市西原町466-1 |
| 営業時間 | 10:00~18:30 |
| 定休日 | 水曜日 |
| 宅建免許番号 | 栃木県知事(2)第5075号 |
| アクセス | 店舗への地図はこちら |

来店ご予約
栃木県さくら市で価格が似ている物件はこちら
- 栃木県
マイページ物件数 - 6,554件
最近見た物件
-
-

-
- 新築一戸建て
- 2,798万円
-
熊本市東区若葉6丁目
-
熊本市健軍線健軍町
-
-
-

-
- 中古一戸建て
- 1,928万円
-
合志市豊岡
-
熊本電気鉄道再春医療センター前
-
栃木県新築一戸建て新着物件
- お近くの店舗を探す
-
おすすめ物件
-
-

-
- 新築一戸建て
- 2,800万円
-
宇都宮市上戸祭町
-
JR東北本線宇都宮
-























