浦安市堀江1丁目の新築戸建
掲載情報更新日:2025年12月25日 次回更新予定日:2026年01月08日
- 6,999万円
-
- 借入ご希望金額
万円 - 借入期間
年 - 借入金利
% - 月々のお支払い金額
円
- 借入ご希望金額
※ 月々のお支払例は目安の試算となりますので、実際の金額とは異なる場合がございます。詳しくは店舗までお問合わせください。
- 浦安市堀江1丁目
-
東京メトロ東西線『浦安』 徒歩18分 (約1440m)
浦安市堀江1丁目一戸建て | 物件情報
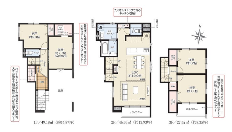
3LDK+S 車庫付き 南向きバルコニー2ケ所
南東道路約5.7m
水回り2階集中プラン
物件の設備
- 電気
- 公営水道
- 公共下水
- 都市ガス
- 浄水器
- 食器洗浄乾燥機
- システムキッチン
- 浴室暖房
- 浴室乾燥機
- トイレ2箇所
- 温水洗浄便座
- 室内洗濯機置場
- 洗面所独立
- 床暖房
- ダウンライト
- モニタ付インターホン
- LDK18畳以上
- 24時間換気システム
- ウォークインクローゼット
- 納戸
- 全居室収納
- シューズボックス
- バルコニー
- 南面バルコニー
物件の特徴
- 南向
- スーパーが近い
- 3階建以上
- フラット35
- S適合証明書
- 省エネルギー対策
- フラット35Sに対応
物件詳細情報
| 価格 | 6,999万円 | 間取り | 3LDK+S |
|---|---|---|---|
| 物件種別 | 新築一戸建て | ||
| 所在地 | 千葉県浦安市堀江1丁目 | ||
| アクセス |
|
||
| 建物面積 | 122.85㎡ | 駐車場 | あり 普通:1台 |
| 築年月 | 2025年(令和7年)12月予定 | 建築確認 | 第25UDI1W建03499号 |
| 建物構造 | 木造 アスファルトシングル葺 3階建 | 工法 | |
| 主要採光 | 南向 | バルコニー | |
| 保証・評価 | フラット35S適合証明書 |
||
| 土地面積 | 80.42㎡(24.32坪) | 接道 | 南東側(公道)幅 約5.7m |
| 私道 | セットバック | ||
| 地目 | 宅地 | 地勢 | |
| 権利 | 所有権 |
||
| 都市計画 | 市街化区域 |
用途地域 | 1種住居 |
| 建ぺい/容積率 | 60% / 200% | 土地国土法 | |
| 許可番号 | 建築基準法 | ||
| 法令制限 | |||
| 小学区 | 南小学校 徒歩11分 (約810m) | 中学区 | 堀江中学校 徒歩14分 (約1110m) |
| 現況 | 建築中 | 引渡 | 期日指定:2026年01月下旬 |
| その他費用 | |||
| 周辺環境 | 南小学校 徒歩11分 (約810m) 堀江中学校 徒歩14分 (約1110m) オーケー 浦安店 徒歩5分 (約400m) |
||
| 備考 | ■網戸・カーテンレール・TVアンテナ・物干金物はオプションとなります ■電波障害によるケーブルテレビ・共聴アンテナ申込みはお客様負担となります ■司法書士・土地家屋調査士は当社指定となります ■建物表示登記費用:102,000円(税込) ※税込とは消費税込のことです ■広告作成中に売約になる場合があります ■図面と現況が異なる場合は現況を優先させて頂きます ■売主指定の「売りサポ」の加入が必須になります ■各種税金の相談については税務署等の専門機関へご相談ください ■各種控除を受けるために必要な申請書類の取得にかかる費用は買主の負担になります |
||
| 物件番号 | 4412285 | 取引態様 | 媒介 |
取扱店舗情報
ハウスドゥ 葛西駅前 ヒコタ不動産株式会社 店舗詳細ページへ
| 電話番号 | 03-5667-2800 |
|---|---|
| 所在地 | 〒134-0084 東京都江戸川区東葛西6丁目4-19 HARUKAS 6階 |
| 営業時間 | 10:00~18:00 |
| 定休日 | 第1・3火曜日、水曜日 |
| 宅建免許番号 | 東京都知事(6)第77143号 |
| アクセス | 店舗への地図はこちら |

来店ご予約
- 千葉県
マイページ物件数 - 2,844件
千葉県新築一戸建て新着物件
-
-

-
- 新築一戸建て
- 3,999万円
-
佐倉市井野
-
京成本線志津駅
-
-
-

-
- 新築一戸建て
- 4,780万円
-
船橋市馬込西2丁目
-
東武野田線馬込沢駅
-
-
-

-
- 新築一戸建て
- 4,580万円
-
船橋市馬込西2丁目
-
東武野田線馬込沢駅
-
-
-

-
- 新築一戸建て
- 6,499万円
-
松戸市新松戸7丁目
-
つくばエクスプレス南流山駅
-
-
-

-
- 新築一戸建て
- 5,999万円
-
松戸市新松戸7丁目
-
つくばエクスプレス南流山駅
-
-
-

-
- 新築一戸建て
- 3,490万円
-
八千代市八千代台東6丁目
-
京成本線京成大和田駅
-
-
-

-
- 新築一戸建て
- 3,390万円
-
八千代市八千代台東6丁目
-
京成本線京成大和田駅
-
- お近くの店舗を探す
-
おすすめ物件
-
-

-
- 新築一戸建て
- 3,480万円
-
成田市寺台
-
JR成田線成田
-
-
-

-
- 新築一戸建て
- 3,680万円
-
成田市寺台
-
JR成田線成田
-
-
-

-
- 新築一戸建て
- 4,788万円
-
流山市東初石1丁目
-
東武野田線初石
-
-
-

-
- 新築一戸建て
- 3,890万円
-
柏市西原4丁目
-
東武野田線江戸川台
-
-
-

-
- 新築一戸建て
- 5,299万円
-
流山市江戸川台西1丁目
-
東武野田線江戸川台
-
-
-

-
- 新築一戸建て
- 4,280万円
-
流山市鰭ケ崎
-
JR武蔵野線南流山
-
-
-

-
- 新築一戸建て
- 4,480万円
-
流山市鰭ケ崎
-
JR武蔵野線南流山
-
-
-

-
- 新築一戸建て
- 4,680万円
-
流山市野々下5丁目
-
東武野田線豊四季
-
-
-

-
- 新築一戸建て
- 4,299万円
-
松戸市平賀
-
JR千代田・常磐緩行線北小金
-
-
-

-
- 新築一戸建て
- 3,780万円
-
成田市寺台
-
JR成田線成田
-





