ふじみ野市鶴ケ舞1丁目の新築戸建
掲載情報更新日:2025年10月30日 次回更新予定日:2025年11月13日
- 3,690万円
-
- 借入ご希望金額
万円 - 借入期間
年 - 借入金利
% - 月々のお支払い金額
円
- 借入ご希望金額
※ 月々のお支払例は目安の試算となりますので、実際の金額とは異なる場合がございます。詳しくは店舗までお問合わせください。
- ふじみ野市鶴ケ舞1丁目
-
東武東上線『上福岡』 徒歩14分 (約1120m)
東武東上線『ふじみ野』 徒歩16分 (約1280m)
ふじみ野市鶴ケ舞1丁目一戸建て | 物件情報
令和7年11月末完成予定の新築戸建
~只今キャンペーン中~ご成約頂いたお客様にもれなく1万円分のクオカードを進呈中~
・東武東上線「上福岡」駅より徒歩14分
・東武東上線「ふじみ野」駅より徒歩16分
・令和7年11月末完成予定の新築戸建
・長期優良住宅
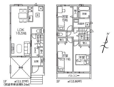
・土地面積82.86平米、建物面積82.90平米~3LDK+車庫
・充実した設備仕様
・ファーストクラススライドキッチン(浄水器付)等
~お気軽にお問い合わせ下さい~
物件の設備
- 公営水道
- 公共下水
- 都市ガス
- コンロ三口
- カウンターキッチン
- システムキッチン
- バス
- 追焚機能
- 浴室乾燥機
- トイレ
- トイレ2箇所
- 温水洗浄便座
- 室内洗濯機置場
- 洗髪洗面化粧台
- 洗面所独立
- モニタ付インターホン
- フローリング
- クローゼット
- クローゼット2箇所
- クローゼット3箇所
- 床下収納
- シューズボックス
物件の特徴
- 南向
- 南側道路面す
- スーパーが近い
- 通風良好
- 陽当り良好
- 2階建
物件詳細情報
| 価格 | 3,690万円 | 間取り | 3LDK |
|---|---|---|---|
| 物件種別 | 新築一戸建て | ||
| 所在地 | 埼玉県ふじみ野市鶴ケ舞1丁目 | ||
| アクセス |
|
||
| 建物面積 | 公82.9㎡ | 駐車場 | あり 普通:1台 |
| 築年月 | 2025年(令和7年)11月予定 | 建築確認 | 第HPA-25-09240-1号 |
| 建物構造 | 木造 2階建 | 工法 | |
| 主要採光 | 南向 | バルコニー | |
| 保証・評価 | |||
| 土地面積 | 公82.86㎡(25.06坪) | 接道 | 北側(公道)幅 約4.0m 南側(公道)幅 約4.0m |
| 私道 | セットバック | 無 | |
| 地目 | 宅地 | 地勢 | |
| 権利 | 所有権 |
||
| 都市計画 | 市街化区域 |
用途地域 | 2種中高 |
| 建ぺい/容積率 | 60% / 160% | 土地国土法 | |
| 許可番号 | 建築基準法 | ||
| 法令制限 | |||
| 小学区 | 中学区 | ||
| 現況 | 建築中 | 引渡 | 期日指定:2026年11月末以降 |
| その他費用 | |||
| 周辺環境 | ふじみ野市立亀久保小学校 徒歩11分 (約810m) ふじみ野市立大井東中学校 徒歩13分 (約1000m) 新双葉幼稚園 徒歩5分 (約360m) かすが保育園 徒歩7分 (約520m) セブンイレブン 上福岡富士見通り店 徒歩6分 (約450m) 生鮮市場TOP 鶴ケ舞店 徒歩6分 (約420m) ジャパンミート卸売市場 ふじみ野店 徒歩5分 (約400m) ドラッグストア セキ 鶴ヶ舞店 徒歩6分 (約420m) 上福岡武蔵野郵便局 徒歩5分 (約350m) しまだ医院 徒歩4分 (約280m) |
||
| 備考 | |||
| 物件番号 | 4412885 | 取引態様 | 媒介 |
取扱店舗情報
ハウスドゥ 上福岡 GLOBAL HOLDINGS株式会社 店舗詳細ページへ
| 電話番号 | 049-264-1010 |
|---|---|
| 所在地 | 〒356-0006 埼玉県ふじみ野市霞ケ丘1丁目2番27 ココネ上福岡1F |
| 営業時間 | 9:00~19:00 |
| 定休日 | 水曜日、年末年始 |
| 宅建免許番号 | 埼玉県知事(3)第22701号 |
| アクセス | 店舗への地図はこちら |

来店ご予約
- 埼玉県
マイページ物件数 - 3,565件
埼玉県新築一戸建て新着物件
- お近くの店舗を探す
-
おすすめ物件
-
-

-
- 新築一戸建て
- 3,990万円
-
三郷市幸房
-
JR武蔵野線三郷
-
-
-

-
- 新築一戸建て
- 4,480万円
-
蕨市錦町2丁目
-
JR埼京線戸田
-
-
-

-
- 新築一戸建て
- 3,790万円
-
戸田市美女木1丁目
-
JR埼京線武蔵浦和
-
-
-

-
- 新築一戸建て
- 5,930万円
-
戸田市下戸田1丁目
-
JR埼京線戸田公園
-
-
-

-
- 新築一戸建て
- 6,780万円
-
志木市幸町3丁目
-
東武東上線志木
-
-
-

-
- 新築一戸建て
- 8,080万円
-
さいたま市南区南浦和3丁目
-
JR京浜東北・根岸線南浦和
-
-
-

-
- 新築一戸建て
- 2,680万円
-
越谷市蒲生4丁目
-
東武伊勢崎・大師線蒲生
-
-
-

-
- 新築一戸建て
- 3,798万円
-
川越市大字小室
-
JR川越線西川越
-
-
-

-
- 新築一戸建て
- 3,280万円
-
上尾市大字上
-
JR高崎線桶川
-
-
-

-
- 新築一戸建て
- 2,880万円
-
上尾市大字畔吉
-
JR高崎線上尾
-










担当エージェント:谷川 晴奈
弊社はより多くの方が購入し易いリーズナブルな価格の中古物件を取り揃えております。お客様一人一人のニーズに合った物件探しをモットーに全力でサポート致します。是非お気軽にご相談下さい。