新築戸建 流山市平和台4丁目
掲載情報更新日:2026年04月12日 次回更新予定日:2026年04月26日
- 3,080万円
-
- 借入ご希望金額
万円 - 借入期間
年 - 借入金利
% - 月々のお支払い金額
円
- 借入ご希望金額
※ 月々のお支払例は目安の試算となりますので、実際の金額とは異なる場合がございます。詳しくは店舗までお問合わせください。
- 流山市平和台4丁目
-
流鉄流山線『平和台』 徒歩8分 (約640m)
つくばエクスプレス『流山セントラルパーク』 徒歩15分 (約1200m)
JR武蔵野線『南流山』 徒歩24分 (約1920m)
新築戸建 流山市平和台4丁目一戸建て | 物件情報
平和台駅、流山セントラルパーク駅、南流山駅利用可能!生活便利な施設あり、交通の便良く、暮らしやすい!
■周辺はスーパー、コンビニ、ドラッグストア等々が徒歩圏内にあるため、暮らしやすい環境です!
■徒歩4分(約400m)の場所に流山おおたかの森駅や南流山まで行くバス停あり(バス停名:平和台駅前)!交通の便◎
■北東側幅員6m公道!車の取り回し◎
■固定階段で行き来出来る小屋裏収納あり!窓があるので換気面◎
◆私どもの使命は【お客様第一のお店づくりを】です。
無理な営業は致しません。お客様のご要望に真摯に耳を傾け、本質を理解し、お客様が本当に必要とされている情報をより迅速に、より豊富に、より的確にご提供できるよう、全力を尽くしています。
ハウスドゥに行けば、住宅に関するどんな些細なことでも相談にのってもらえる、ワクワクしながらお家を探せる、そんなお店づくりを心掛けています。
物件の設備
- 電気
- 上水道
- 公共下水
- 都市ガス
- 給湯
- 浄水器
- コンロ三口
- グリル
- システムキッチン
- 独立キッチン
- ユニットバス
- オートバス
- 追焚機能
- 浴室暖房
- 浴室乾燥機
- 浴室に窓
- トイレ2箇所
- 温水洗浄便座
- 室内洗濯機置場
- 洗髪洗面化粧台
- 洗面所独立
- ディンプルキー
- ダブルロックキー
- モニタ付インターホン
- 火災警報器/報知機
- グルニエ
- 2面採光
- 複層ガラス
- 全室フローリング
- シャッター雨戸
- 24時間換気システム
- 網戸
- クローゼット2箇所
- 床下収納
- 全居室収納
- 屋根裏収納
- シューズボックス
- ワイドバルコニー
物件の特徴
- 3沿線以上利用可
- 駅まで平坦
- 小学校徒歩10分以内
- 前道6m以上
- 緑豊かな住宅地
- スーパーが近い
- 閑静な住宅街
- 周辺交通量少なめ
- 通風良好
- 陽当り良好
- 2階建
- 平坦地
- 外壁サイディング
物件詳細情報
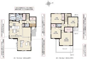
| 価格 | 3,080万円 | 間取り | 2LDK+S |
|---|---|---|---|
| 物件種別 | 新築一戸建て | ||
| 所在地 | 千葉県流山市平和台4丁目 | ||
| アクセス |
|
||
| 建物面積 | 実57.9㎡ | 駐車場 | あり 軽:1台 |
| 築年月 | 2025年(令和7年)11月築 | 建築確認 | 第24UDI1C建07024号 |
| 建物構造 | 木造 2階建 | 工法 | |
| 主要採光 | バルコニー | ||
| 保証・評価 | |||
| 土地面積 | 実57.09㎡(17.26坪) | 接道 | 北東側(公道)幅 約6.0m 間口 約8.17m |
| 私道 | セットバック | ||
| 地目 | 宅地 | 地勢 | |
| 権利 | 所有権 |
||
| 都市計画 | 市街化区域 |
用途地域 | 1種低層 |
| 建ぺい/容積率 | 60% / 150% | 土地国土法 | |
| 許可番号 | 建築基準法 | ||
| 法令制限 | 法22条区域 | ||
| 小学区 | 流山小学校 徒歩9分 (約700m) | 中学区 | 南部中学校 徒歩25分 (約2000m) |
| 現況 | 完工済 | 引渡 | 期日指定:2025年12月 |
| その他費用 | |||
| 周辺環境 | 平和台7号公園 徒歩5分 (約370m) 平和台幼稚園 徒歩4分 (約260m) マミープラス西平井店 徒歩6分 (約430m) マツモトキヨシ西平井店 徒歩6分 (約430m) ヨークマート平和台店 徒歩6分 (約410m) ウエルシア流山西平井店 徒歩7分 (約500m) 平和台郵便局 徒歩6分 (約480m) 流山もりのまちクリニック 徒歩9分 (約700m) 流山市立平和台保育所 徒歩8分 (約620m) ミニストップ 流山平和台店 徒歩11分 (約860m) |
||
| 備考 | |||
| 物件番号 | 4418377 | 取引態様 | 媒介 |
取扱店舗情報
| 電話番号 | 04-7157-6500 |
|---|---|
| 所在地 | 〒270-0164 千葉県流山市流山1丁目269番地 |
| 営業時間 | 9:00~18:00 |
| 定休日 | 火曜日、水曜日 |
| 宅建免許番号 | 千葉県知事(5)第14328号 |
| アクセス | 店舗への地図はこちら |

来店ご予約
千葉県流山市で価格が似ている物件はこちら
- 千葉県
マイページ物件数 - 2,044件
最近見た物件
-
-

-
- 土地
- 1,590万円
-
一宮市小赤見字石塔
-
JR東海道本線尾張一宮
-
-
-

-
- 土地
- 840万円
-
西条市円海寺
-
JR予讃線壬生川
-
-
-

-
- 中古一戸建て
- 1,400万円
-
各務原市鵜沼各務原町9丁目
-
名鉄各務原線苧ヶ瀬
-
千葉県新築一戸建て新着物件
- お近くの店舗を探す
-
おすすめ物件
-
-

-
- 新築一戸建て
- 4,298万円
-
習志野市東習志野6丁目
-
京成本線実籾
-
-
-

-
- 新築一戸建て
- 3,480万円
-
成田市寺台
-
JR成田線成田
-
-
-

-
- 新築一戸建て
- 4,990万円
-
習志野市香澄3丁目
-
JR京葉線新習志野
-
-
-

-
- 新築一戸建て
- 3,390万円
-
習志野市東習志野6丁目
-
京成本線実籾
-
-
-

-
- 新築一戸建て
- 3,690万円
-
習志野市実籾6丁目
-
京成本線実籾
-
-
-

-
- 新築一戸建て
- 5,398万円
-
習志野市袖ケ浦4丁目
-
JR総武・中央緩行線幕張本郷
-
-
-

-
- 新築一戸建て
- 3,680万円
-
成田市寺台
-
JR成田線成田
-
-
-

-
- 新築一戸建て
- 2,388万円
-
柏市南増尾8丁目
-
京成電鉄松戸線常盤平
-
-
-

-
- 新築一戸建て
- 5,199万円
-
習志野市香澄5丁目
-
JR京葉線新習志野
-
-
-

-
- 新築一戸建て
- 4,480万円
-
船橋市二宮2丁目
-
京成電鉄松戸線薬園台
-






























担当エージェント:坂本 祐人
随時ご案内可能です♪
当物件はもちろんですが、他に気になる物件のご案内、資金計画、物件詳細、住宅ローン等何でもお気軽にお問い合わせください!!
◆不動産売買仲介・不動産買取・相続・建売住宅・注文住宅・リフォーム・ リノベーション・資金相談・住宅資材販売等「住まいのトータルサービス」をグループ会社共々「ワンストップ」で提供致します。
「住宅ローンって何?」 「金利って何?」 「私にはいくらくらいの物件が買えるの?」「柏や流山に興味はあるんだけど、どんな街?」 ・・・等々何でもご相談下さい。
まずは、お客様の『夢』をお聞かせください!!