グラファーレ北名古屋市中之郷2期 全4棟 3号棟
掲載情報更新日:2026年02月07日 次回更新予定日:2026年02月21日
- 2,940万円
-
- 借入ご希望金額
万円 - 借入期間
年 - 借入金利
% - 月々のお支払い金額
円
- 借入ご希望金額
※ 月々のお支払例は目安の試算となりますので、実際の金額とは異なる場合がございます。詳しくは店舗までお問合わせください。
- 北名古屋市中之郷八反
-
名鉄犬山線『西春』 徒歩32分 (約2560m)
JR東海道本線『稲沢』 徒歩43分 (約3440m)
きよすあしがるバス『はるひ呼吸器病院』 徒歩12分 (約960m)
グラファーレ北名古屋市中之郷2期 全4棟 3号棟一戸建て | 物件情報
心地よい光に包まれる全居室南向きの住まい【月々7万円台~購入可能です】栗島小学校まで徒歩約7分
=========================
◇栗島小学校:徒歩約7分
◇天神中学校:徒歩約21分
◇ドン・キホーテ 楽市街道名古屋店:徒歩約7分
◇春日郵便局:徒歩約13分
◇中之郷西児童遊園:徒歩約3分
◆食材や日用品をすっきり収納できるパントリー完備
◆南東角地で陽当たり・通風良好の快適な暮らし。
◆衣替えいらず!便利なWIC完備の住まい
=========================
\見るだけ聞くだけOK/
資金効率が良くなるローンの組み方教えます。
ネット未公開、水面下情報多数あります。
ほかのページで気になる物件もご相談ください。
物件の設備
- 電気
- 上水道
- 公営水道
- 下水道
- 公共下水
- 都市ガス
- 浄水器
- 食品庫
- コンロ三口
- カウンターキッチン
- システムキッチン
- オートバス
- バス1坪以上
- 追焚機能
- 浴室乾燥機
- トイレ2箇所
- 温水洗浄便座
- 室内洗濯機置場
- 洗面所独立
- モニタ付インターホン
- 火災警報器/報知機
- LDK15畳以上
- 2面採光
- 全室フローリング
- 24時間換気システム
- ウォークインクローゼット
- 床下収納
- 全居室収納
物件の特徴
- 小学校徒歩10分以内
- 前道6m以上
- 南側道路面す
- スーパーが近い
- 2階建
- 角地
- 長期優良住宅
- 建設住宅性能評価付
- 設計住宅性能評価付
- フラット35Sに対応
物件詳細情報
| 価格 | 2,940万円 | 間取り | 4LDK |
|---|---|---|---|
| 物件種別 | 新築一戸建て | ||
| 所在地 | 愛知県北名古屋市中之郷八反 3号棟 | ||
| アクセス |
|
||
| 建物面積 | 101.02㎡ | 駐車場 | あり 普通:2台 |
| 築年月 | 2025年(令和7年)12月築 | 建築確認 | 第HPA-25-08726-1号 |
| 建物構造 | 木造 2階建 | 工法 | |
| 主要採光 | バルコニー | ||
| 保証・評価 | 長期優良住宅認定通知書・設計住宅性能評価書・建設住宅性能評価書(新築時) |
||
| 分譲情報 | |||
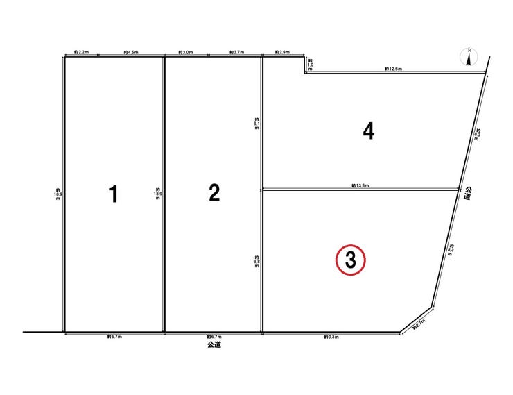
| 土地面積 | 実119.03㎡(36坪) | 接道 | 南側(公道)幅 約8.3m 間口 約9.22m 東側(公道)幅 約9.7m 間口 約8.40m |
| 私道 | セットバック | ||
| 地目 | 宅地 | 地勢 | |
| 権利 | 所有権 |
||
| 都市計画 | 市街化区域 |
用途地域 | 1種住居 |
| 建ぺい/容積率 | 60% / 200% | 土地国土法 | |
| 許可番号 | 建築基準法 | ||
| 法令制限 | 宅地造成工事規制区域・法22条区域・農地法・日影規制(4h-2.5h/4m) | ||
| 小学区 | 栗島小学校 徒歩7分 (約540m) | 中学区 | 天神中学校 徒歩21分 (約1640m) |
| 現況 | 完工済 | 引渡 | 期日指定:2025年12月 |
| その他費用 | |||
| 周辺環境 | 【北名古屋市立栗島小学校】 徒歩7分 (約540m) 【北名古屋市立天神中学校】 徒歩21分 (約1640m) 【北名古屋市立中之郷保育園】 徒歩5分 (約330m) ドン・キホーテ 楽市街道名古屋店 徒歩7分 (約550m) 【バロー 西春店】 徒歩19分 (約1460m) 【クリエイトS・D 北名古屋沖村店】 徒歩14分 (約1110m) 【はなみずき整形外科スポーツクリニック北名古屋】 徒歩8分 (約580m) 【まつひろファミリー歯科】 徒歩14分 (約1100m) 春日郵便局 徒歩13分 (約1020m) 【中之郷西児童遊園】 徒歩3分 (約190m) |
||
| 備考 | ・【北名古屋市立栗島小学校】まで徒歩7分(約540m) ・【北名古屋市立天神中学校】まで徒歩21分(約1640m) ・【北名古屋市立中之郷保育園】まで徒歩5分(約330m) ・ドン・キホーテ 楽市街道名古屋店まで徒歩7分(約550m) ・【バロー 西春店】まで徒歩19分(約1460m) ・【クリエイトS・D 北名古屋沖村店】まで徒歩14分(約1110m) ・【はなみずき整形外科スポーツクリニック北名古屋】まで徒歩8分(約580m) ・【まつひろファミリー歯科】まで徒歩14分(約1100m) ・春日郵便局まで徒歩13分(約1020m) ・【中之郷西児童遊園】まで徒歩3分(約190m) |
||
| 物件番号 | 4418386 | 取引態様 | 媒介 |
取扱店舗情報
ハウスドゥ 北区城北 ファミリアホームサービス株式会社 店舗詳細ページへ
| 電話番号 | 052-908-8088 |
|---|---|
| 所在地 | 〒462-0051 愛知県名古屋市北区中切町4丁目84-1 |
| 営業時間 | 10:00~18:00 |
| 定休日 | 水曜日・年末年始(水曜日が祝日の場合は営業) |
| 宅建免許番号 | 国土交通大臣(2)第9218号 |
| アクセス | 店舗への地図はこちら |

来店ご予約
愛知県北名古屋市で価格が似ている物件はこちら
- 愛知県
マイページ物件数 - 32,038件
最近見た物件
-
-

-
- 土地
- 100万円
-
出雲市西代町
-
一畑電車北松江線旅伏
-
-
-

-
- 土地
- 3,490万円
-
名古屋市北区八代町1丁目
-
名古屋市名城線黒川
-
-
-

-
- 土地
- 1,000万円
-
知多郡武豊町字梨子ノ木
-
名鉄河和線上ゲ
-
愛知県新築一戸建て新着物件
-
-

-
- 新築一戸建て
- 4,790万円
-
豊田市井上町4丁目
-
名鉄三河線猿投駅
-
-
-

-
- 新築一戸建て
- 5,490万円
-
名古屋市昭和区折戸町3丁目
-
名古屋市桜通線吹上駅
-
-
-

-
- 新築一戸建て
- 3,790万円
-
名古屋市港区東茶屋1丁目
-
名古屋臨海高速鉄道港北駅
-
-
-

-
- 新築一戸建て
- 5,690万円
-
名古屋市昭和区折戸町3丁目
-
名古屋市桜通線吹上駅
-
-
-

-
- 新築一戸建て
- 4,790万円
-
豊田市井上町4丁目
-
名鉄三河線猿投駅
-
-
-

-
- 新築一戸建て
- 5,299万円
-
名古屋市緑区鳴海町字中汐田
-
名鉄名古屋本線鳴海駅
-
-
-

-
- 新築一戸建て
- 4,790万円
-
豊田市井上町4丁目
-
名鉄三河線猿投駅
-
- お近くの店舗を探す
-
おすすめ物件
-
-

-
- 新築一戸建て
- 4,830万円
-
岡崎市上地6丁目
-
JR東海道本線相見
-
-
-

-
- 新築一戸建て
- 6,180万円
-
名古屋市昭和区長戸町3丁目
-
名古屋市鶴舞線川名
-
-
-

-
- 新築一戸建て
- 3,480万円
-
清須市土器野本山
-
名鉄名古屋本線須ヶ口
-
-
-

-
- 新築一戸建て
- 5,180万円
-
岡崎市中岡崎町
-
愛知環状鉄道中岡崎
-
-
-

-
- 新築一戸建て
- 3,580万円
-
知立市西町新川
-
名鉄名古屋本線知立
-
-
-

-
- 新築一戸建て
- 3,590万円
-
半田市亀崎高根町8丁目
-
JR武豊線亀崎
-
-
-

-
- 新築一戸建て
- 2,599万円
-
知多郡美浜町河和台3丁目
-
名鉄河和線河和
-
-
-

-
- 新築一戸建て
- 3,490万円
-
小牧市郷中2丁目
-
名鉄小牧線小牧口
-
-
-

-
- 新築一戸建て
- 5,999万円
-
名古屋市千種区清明山1丁目
-
名古屋市名城線砂田橋
-
-
-

-
- 新築一戸建て
- 3,980万円
-
豊田市水源町1丁目
-
愛知環状鉄道三河豊田
-





























担当エージェント:青木 達哉
《グラファーレの特徴》
「家族のいいな」をカタチにする、お客様だけの暮らしをご提案。
良質な住まいをもっと気軽に、住まいへの憧れを身近に感じていただき、安心と安全のある住まいを提供します。