加古川市尾上町口里の新築戸建
掲載情報更新日:2025年12月22日 次回更新予定日:2026年01月05日
- 2,990万円
-
- 借入ご希望金額
万円 - 借入期間
年 - 借入金利
% - 月々のお支払い金額
円
- 借入ご希望金額
※ 月々のお支払例は目安の試算となりますので、実際の金額とは異なる場合がございます。詳しくは店舗までお問合わせください。
- 加古川市尾上町口里
-
山陽電鉄本線『浜の宮』 徒歩7分 (約560m)
山陽電鉄本線『尾上の松』 徒歩25分 (約1960m)
JR山陽本線『加古川』 徒歩51分 (約4030m)
加古川市尾上町口里一戸建て | 物件情報
物件の設備
- 電気
- 公営水道
- 都市ガス
- 給湯
- 浄水器
- 食器洗浄乾燥機
- コンロ三口
- ガスコンロ付
- カウンターキッチン
- システムキッチン
- バス
- オートバス
- 追焚機能
- 浴室暖房
- 浴室乾燥機
- トイレ2箇所
- 温水洗浄便座
- 室内洗濯機置場
- 洗髪洗面化粧台
- 洗面所独立
- モニタ付インターホン
- 複層ガラス
- フローリング
- クローゼット
- 床下収納
- 全居室収納
- シューズボックス
- バルコニー
物件の特徴
- 2階建
オープンハウス・イベント情報
開催日時:公開中
開催場所:兵庫県加古川市
\\ハ ウ ス ドゥ加古川駅南店のご紹介// ☆年末年始休業日12/28~1/7まで ☆加古川駅から徒歩5分!! 駅近なのでお出かけついでに寄っていただけます! 現地まで送迎いたしますので、是非実際に家をご覧いただきたいです! ☆住宅ローンアドバイザーがお手伝いいたします! 住宅…
物件詳細情報
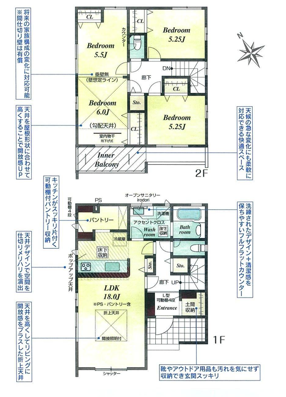
| 価格 | 2,990万円 | 間取り | 3LDK |
|---|---|---|---|
| 物件種別 | 新築一戸建て | ||
| 所在地 | 兵庫県加古川市尾上町口里 | ||
| アクセス |
|
||
| 建物面積 | 106.82㎡ | 駐車場 | あり |
| 築年月 | 2025年(令和7年)12月予定 | 建築確認 | 第R07SHC115203号 |
| 建物構造 | 木造 2階建 | 工法 | |
| 主要採光 | 南西向 | バルコニー | |
| 保証・評価 | |||
| 土地面積 | 公118.5㎡(35.84坪) | 接道 | 南西側(公道)幅 約4.1m |
| 私道 | セットバック | 無 | |
| 地目 | 宅地 | 地勢 | |
| 権利 | 所有権 |
||
| 都市計画 | 市街化区域 |
用途地域 | 1種中高 |
| 建ぺい/容積率 | 60% / 200% | 土地国土法 | 届出不要 |
| 許可番号 | 建築基準法 | ||
| 法令制限 | |||
| 小学区 | 浜の宮小学校 徒歩2分 (約110m) | 中学区 | 浜の宮中学校 徒歩6分 (約440m) |
| 現況 | 建築中 | 引渡 | 期日指定:2025年12月下旬以降 |
| その他費用 | |||
| 周辺環境 | 加古川市立浜の宮小学校 徒歩2分 (約110m) よしおか内科クリニック 徒歩7分 (約510m) 浜の宮公園 徒歩4分 (約280m) ファミリーマート 浜の宮駅前店 徒歩6分 (約480m) 浜の宮駅 徒歩7分 (約540m) もと皮膚科クリニック 徒歩8分 (約570m) マルアイ 浜の宮店 徒歩8分 (約620m) 加古川市立浜の宮中学校 徒歩6分 (約440m) 加古川警察署 尾上交番 徒歩9分 (約680m) たずみ病院 徒歩10分 (約740m) |
||
| 備考 | |||
| 物件番号 | 4418709 | 取引態様 | 媒介 |
取扱店舗情報
ハウスドゥ 加古川駅南 INFINEX株式会社 店舗詳細ページへ
| 電話番号 | 079-490-7701 |
|---|---|
| 所在地 | 〒675-0064 兵庫県加古川市加古川町溝之口753 兵庫住宅ビル1F |
| 営業時間 | 10:00~18:00 |
| 定休日 | 水曜日、GW、夏季休暇、年末年始 |
| 宅建免許番号 | 兵庫県知事(1)第401794号 |
| アクセス | 店舗への地図はこちら |

来店ご予約
兵庫県加古川市で価格が似ている物件はこちら
- 兵庫県
マイページ物件数 - 3,100件
最近見た物件
-
-

-
- 新築一戸建て
- 2,298万円
-
北葛城郡上牧町滝川台2丁目
-
JR和歌山線畠田
-
-
-

-
- 土地
- 500万円
-
尾道市山波町
-
尾道造船前バス停
-
兵庫県新築一戸建て新着物件
-
-

-
- 新築一戸建て
- 2,380万円
-
姫路市香寺町広瀬
-
JR播但線香呂駅
-
-
-

-
- 新築一戸建て
- 2,280万円
-
姫路市香寺町広瀬
-
JR播但線香呂駅
-
-
-

-
- 新築一戸建て
- 2,280万円
-
姫路市香寺町広瀬
-
JR播但線香呂駅
-
-
-

-
- 新築一戸建て
- 2,280万円
-
姫路市網干区垣内西町
-
山陽電鉄網干線山陽網干駅
-
-
-

-
- 新築一戸建て
- 2,580万円
-
加古川市尾上町池田
-
山陽電鉄本線浜の宮駅
-
-
-

-
- 新築一戸建て
- 2,380万円
-
加古川市野口町良野
-
JR山陽本線加古川駅
-
-
-

-
- 新築一戸建て
- 3,190万円
-
加古川市別府町新野辺北町7丁目
-
山陽電鉄本線別府駅
-
- お近くの店舗を探す
-
おすすめ物件
-
-

-
- 新築一戸建て
- 2,080万円
-
高砂市百合丘
-
JR山陽本線宝殿
-
-
-

-
- 新築一戸建て
- 3,180万円
-
姫路市御立西6丁目
-
JR山陽本線姫路
-
-
-

-
- 新築一戸建て
- 3,398万円
-
加古川市加古川町美乃利
-
JR山陽本線加古川
-
-
-

-
- 新築一戸建て
- 2,190万円
-
加古川市野口町二屋
-
JR山陽本線東加古川
-
-
-

-
- 新築一戸建て
- 3,190万円
-
姫路市飾磨区中島
-
山陽電鉄本線飾磨
-
-
-

-
- 新築一戸建て
- 3,298万円
-
加古川市加古川町美乃利
-
JR山陽本線加古川
-
-
-

-
- 新築一戸建て
- 2,680万円
-
加古川市加古川町中津
-
JR山陽本線加古川
-
-
-

-
- 新築一戸建て
- 2,890万円
-
加古川市野口町坂元
-
JR山陽本線加古川
-
-
-

-
- 新築一戸建て
- 2,798万円
-
姫路市上大野4丁目
-
JR播但線野里
-
-
-

-
- 新築一戸建て
- 2,898万円
-
姫路市上大野4丁目
-
JR播但線野里
-



