江戸川区南篠崎町1丁目の新築戸建
掲載情報更新日:2026年05月16日 次回更新予定日:2026年05月30日
- 6,899万円
-
- 借入ご希望金額
万円 - 借入期間
年 - 借入金利
% - 月々のお支払い金額
円
- 借入ご希望金額
※ 月々のお支払例は目安の試算となりますので、実際の金額とは異なる場合がございます。詳しくは店舗までお問合わせください。
- 江戸川区南篠崎町1丁目
-
都営新宿線『瑞江』 徒歩18分 (約1440m)
江戸川区南篠崎町1丁目一戸建て | 物件情報
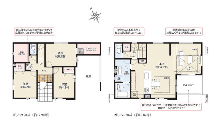
2LDK+S LDK約24帖 車庫付(ビルトインガレージ) 南西接道
1Fにはセカンド洗面あり 家に帰ってすぐ手洗いうがい
ゆとりのある脱衣所 洗濯もスムーズに
奥行のあるバルコニー 洗濯物がたくさんでも安心
解放感のある吹抜
物件の設備
- 電気
- 公営水道
- 公共下水
- 浄水器
- システムキッチン
- 浴室暖房
- 浴室乾燥機
- トイレ2箇所
- 温水洗浄便座
- 室内洗濯機置場
- 洗面所独立
- 床暖房
- ダウンライト
- モニタ付インターホン
- LDK20畳以上
- 吹抜
- 24時間換気システム
- クローゼット2箇所
- ウォークインクローゼット
- 床下収納
- 全居室収納
- シューズボックス
- 2面バルコニー
物件の特徴
- 2階建
物件詳細情報
| 価格 | 6,899万円 | 間取り | 2LDK+S |
|---|---|---|---|
| 物件種別 | 新築一戸建て | ||
| 所在地 | 東京都江戸川区南篠崎町1丁目 | ||
| アクセス |
|
||
| 建物面積 | 114.98㎡ | 駐車場 | あり 普通:1台 |
| 築年月 | 2025年(令和7年)12月予定 | 建築確認 | 第25UDI1W建04212号 |
| 建物構造 | 木造 スレート葺 2階建 | 工法 | |
| 主要採光 | 南西向 | バルコニー | |
| 保証・評価 | |||
| 土地面積 | 89.53㎡(27.08坪) | 接道 | 南西側(私道)幅 約4.0m |
| 私道 | セットバック | ||
| 地目 | 宅地 | 地勢 | |
| 権利 | 所有権 |
||
| 都市計画 | 市街化区域 |
用途地域 | 1種中高 |
| 建ぺい/容積率 | 60% / 150% | 土地国土法 | |
| 許可番号 | 建築基準法 | ||
| 法令制限 | 準防火地域 | ||
| 小学区 | 鎌田小学校 徒歩9分 (約700m) | 中学区 | 篠崎第二中学校 徒歩9分 (約700m) |
| 現況 | 建築中 | 引渡 | 期日指定:2026年01月下旬 |
| その他費用 | |||
| 周辺環境 | 鎌田小学校 徒歩10分 (約750m) 篠崎第二中学校 徒歩7分 (約500m) セブンイレブン 篠崎店 徒歩1分 (約80m) 南篠崎おひさま保育園 徒歩4分 (約280m) Olympic 下篠崎店 徒歩6分 (約420m) 暁幼稚園 徒歩10分 (約800m) |
||
| 備考 | ■網戸・カーテンレール・TVアンテナ・物干金物はオプションとなります ■電波障害によるケーブルテレビ・共聴アンテナ申込みはお客様負担となります ■司法書士・土地家屋調査士は当社指定となります ■建物表示登記費用:102,000円(税込) ※税込とは消費税込のことです ■広告作成中に売約になる場合があります ■図面と現況が異なる場合は現況を優先させて頂きます ■売主指定の「売りサポ」の加入が必須になります ■各種税金の相談については税務署等の専門機関へご相談ください ■各種控除を受けるために必要な申請書類の取得にかかる費用は買主の負担になります |
||
| 物件番号 | 4419669 | 取引態様 | 媒介 |
取扱店舗情報
ハウスドゥ 葛西駅前 ヒコタ不動産株式会社 店舗詳細ページへ
| 電話番号 | 03-5667-2800 |
|---|---|
| 所在地 | 〒134-0084 東京都江戸川区東葛西6丁目4-19 HARUKAS 6階 |
| 営業時間 | 10:00~18:00 |
| 定休日 | 第1・3火曜日、水曜日 |
| 宅建免許番号 | 東京都知事(6)第77143号 |
| アクセス | 店舗への地図はこちら |

来店ご予約
東京都江戸川区で価格が似ている物件はこちら
- 東京都
マイページ物件数 - 6,113件
最近見た物件
東京都新築一戸建て新着物件
-
-

-
- 新築一戸建て
- 9,288万円
-
足立区綾瀬1丁目
-
東京メトロ千代田線綾瀬駅
-
-
-

-
- 新築一戸建て
- 4,580万円
-
八王子市千人町4丁目
-
JR中央本線西八王子駅
-
-
-

-
- 新築一戸建て
- 7,699万円
-
小金井市中町1丁目
-
西武多摩川線新小金井駅
-
-
-

-
- 新築一戸建て
- 7,999万円
-
小金井市中町1丁目
-
西武多摩川線新小金井駅
-
-
-

-
- 新築一戸建て
- 8,299万円
-
小金井市中町1丁目
-
西武多摩川線新小金井駅
-
-
-

-
- 新築一戸建て
- 4,090万円
-
東大和市奈良橋6丁目
-
多摩モノレール上北台駅
-
-
-

-
- 新築一戸建て
- 4,190万円
-
東大和市奈良橋6丁目
-
多摩モノレール上北台駅
-
- お近くの店舗を探す
-
おすすめ物件
-
-

-
- 新築一戸建て
- 5,399万円
-
日野市多摩平3丁目
-
JR中央本線豊田
-
-
-

-
- 新築一戸建て
- 6,199万円
-
調布市深大寺東町4丁目
-
京王線つつじヶ丘
-
-
-

-
- 新築一戸建て
- 5,099万円
-
八王子市鹿島
-
多摩モノレール松が谷
-
-
-

-
- 新築一戸建て
- 5,998万円
-
足立区伊興3丁目
-
東武伊勢崎・大師線竹ノ塚
-
-
-

-
- 新築一戸建て
- 1億3,950万円
-
世田谷区砧7丁目
-
小田急小田原線祖師ヶ谷大蔵
-
-
-

-
- 新築一戸建て
- 5,280万円
-
足立区中央本町4丁目
-
東武伊勢崎・大師線梅島
-
-
-

-
- 新築一戸建て
- 6,590万円
-
練馬区南大泉1丁目
-
西武池袋・豊島線保谷
-
-
-

-
- 新築一戸建て
- 6,960万円
-
足立区南花畑1丁目
-
つくばエクスプレス六町
-
-
-

-
- 新築一戸建て
- 8,799万円
-
練馬区東大泉7丁目
-
西武池袋・豊島線大泉学園
-
-
-

-
- 新築一戸建て
- 5,799万円
-
八王子市兵衛2丁目
-
JR横浜線八王子みなみ野
-






