屋上付き!R7.12月竣工新築戸建 船橋市芝山6丁目
掲載情報更新日:2026年01月04日 次回更新予定日:2026年01月18日
- 3,980万円
-
- 借入ご希望金額
万円 - 借入期間
年 - 借入金利
% - 月々のお支払い金額
円
- 借入ご希望金額
※ 月々のお支払例は目安の試算となりますので、実際の金額とは異なる場合がございます。詳しくは店舗までお問合わせください。
- 船橋市芝山6丁目
-
京成電鉄松戸線『高根木戸』 徒歩11分 (約820m)
屋上付き!R7.12月竣工新築戸建 船橋市芝山6丁目一戸建て | 物件情報
※マウスを乗せると画像が切り替わります。
☆HouseDo薬園台駅前のアピールポイント☆
戸建て・マンション・土地など どんな物件でもご紹介可能!
ローンに不安がある方も安心、資金計画から丁寧にサポートさせて頂きます!
外国籍のお客様もご相談ください、安心してお取引いただけます。
地域密着ならではの最新情報と豊富な実績で、理想のお住まい探しをお手伝いします!
☆HouseDo薬園台駅前の営業内容☆
新築戸建・中古戸建・中古マンションの売買仲介
不動産の買取・査定・資産活用のご相談
住宅ローン相談・リフォーム提案
物件の設備
- 電気
- 公営水道
- 公共下水
- 都市ガス
- 給湯
- 浄水器
- カウンターキッチン
- システムキッチン
- ユニットバス
- トイレ2箇所
- 温水洗浄便座
- モニタ付インターホン
- ウォークインクローゼット
- 屋上テラス
物件の特徴
- 2階建
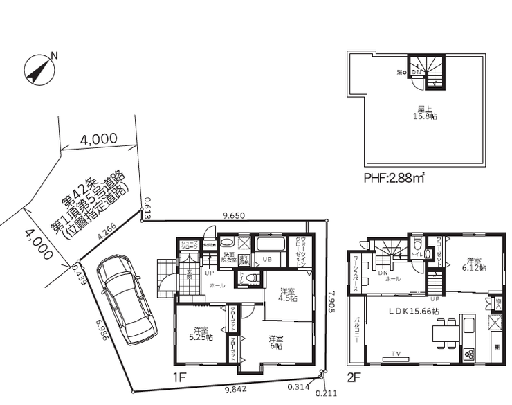
物件詳細情報
| 価格 | 3,980万円 | 間取り | 4LDK |
|---|---|---|---|
| 物件種別 | 新築一戸建て | ||
| 所在地 | 千葉県船橋市芝山6丁目 | ||
| アクセス |
|
||
| 建物面積 | 99.94㎡ | 駐車場 | あり 普通:1台 |
| 築年月 | 2025年(令和7年)12月予定 | 建築確認 | 24UDI1C建07481 |
| 建物構造 | 木造 2階建 | 工法 | |
| 主要採光 | バルコニー | ||
| 保証・評価 | |||
| 土地面積 | 100.86㎡(30.51坪) | 接道 | |
| 私道 | セットバック | ||
| 地目 | 宅地 | 地勢 | |
| 権利 | 所有権 |
||
| 都市計画 | 市街化区域 |
用途地域 | 1種低層 |
| 建ぺい/容積率 | 50% / 100% | 土地国土法 | |
| 許可番号 | 建築基準法 | ||
| 法令制限 | |||
| 小学区 | 高郷小学校 徒歩10分 (約740m) | 中学区 | 七林中学校 徒歩18分 (約1370m) |
| 現況 | 建築中 | 引渡 | 期日指定:2025年12月下旬以降 |
| その他費用 | |||
| 周辺環境 | 高根木戸駅 徒歩11分 (約820m) | ||
| 備考 | |||
| 物件番号 | 4423392 | 取引態様 | 媒介 |
取扱店舗情報
ハウスドゥ 薬園台駅前 合同会社ネクステージ 店舗詳細ページへ
| 電話番号 | 047-401-0440 |
|---|---|
| 所在地 | 〒274-0077 千葉県船橋市薬円台6丁目5-1 |
| 営業時間 | 10:00~18:00 |
| 定休日 | 火曜日、水曜日 |
| 宅建免許番号 | 千葉県知事(1)第18892号 |
| アクセス | 店舗への地図はこちら |

来店ご予約
千葉県船橋市で価格が似ている物件はこちら
![]()
![]()
-
- 新築一戸建て 2025.04.13
-
-
- 3,898万円
-
船橋市高野台3丁目
-
北総鉄道「西白井駅」まで車10分
- 4LDK+S
-
-
- 新築一戸建て 2025.04.14
-
-
- 3,999万円
-
船橋市前原西6丁目
-
京成電鉄松戸線「前原駅」まで徒歩9分
- 4LDK
-
-
- 新築一戸建て 2025.05.03
-
-
- 3,898万円
-
船橋市三山2丁目
-
京成本線「京成大久保駅」まで徒歩20分
- 3LDK
-
-
- 新築一戸建て 2025.07.27
-
-
- 3,998万円
-
船橋市松が丘4丁目
-
京成電鉄松戸線「高根木戸駅」まで徒歩21分
- 3LDK
-
-
- 新築一戸建て 2025.08.02
-
-
- 3,898万円
-
船橋市松が丘5丁目
-
東葉高速鉄道「船橋日大前駅」まで徒歩19分
- 3LDK
-
-
- 新築一戸建て 2025.08.04
-
-
- 3,990万円
-
船橋市二宮1丁目
-
京成電鉄松戸線「前原駅」まで徒歩10分
- 4LDK
-
-
- 新築一戸建て 2025.08.10
-
-
- 3,998万円
-
船橋市新高根4丁目
-
京成電鉄松戸線「高根公団駅」まで徒歩9分
- 4LDK
-
-
- 新築一戸建て 2025.08.10
-
-
- 3,998万円
-
船橋市新高根4丁目
-
京成電鉄松戸線「高根公団駅」まで徒歩10分
- 4LDK
-
-
- 新築一戸建て 2025.08.11
-
-
- 3,890万円
-
船橋市三山3丁目
-
京成本線「京成大久保駅」まで徒歩25分
- 4LDK
-
-
- 新築一戸建て 2025.08.12
-
-
- 3,890万円
-
船橋市三山3丁目
-
京成本線「京成大久保駅」まで徒歩22分
- 4LDK
-
-
- 新築一戸建て 2025.08.24
-
-
- 3,998万円
-
船橋市松が丘3丁目
-
京成電鉄松戸線「北習志野駅」まで徒歩27分
- 4LDK
-
-
- 新築一戸建て 2025.09.08
-
-
- 3,990万円
-
船橋市二宮1丁目
-
東葉高速鉄道「飯山満駅」まで徒歩17分
- 4LDK
-
-
- 新築一戸建て 2025.09.16
-
-
- 3,890万円
-
船橋市三山9丁目
-
京成本線「実籾駅」まで徒歩13分
- 4LDK
-
-
- 新築一戸建て 2025.09.16
-
-
- 3,990万円
-
船橋市松が丘1丁目
-
京成電鉄松戸線「高根木戸駅」まで徒歩19分
- 4LDK
-
-
- 新築一戸建て 2025.09.21
-
-
- 3,990万円
-
船橋市金杉8丁目
-
京成電鉄松戸線「滝不動駅」まで徒歩20分
- 4LDK+S
-
-
- 新築一戸建て 2025.09.22
-
-
- 3,990万円
-
船橋市二和西5丁目
-
京成電鉄松戸線「二和向台駅」まで徒歩18分
- 4LDK
-
-
- 新築一戸建て 2025.10.04
-
-
- 3,890万円
-
船橋市大穴南5丁目
-
京成電鉄松戸線「高根公団駅」まで徒歩12分
- 4LDK
-
-
- 新築一戸建て 2025.10.05
-
-
- 3,990万円
-
船橋市飯山満町3丁目
-
京成電鉄松戸線「薬園台駅」まで徒歩5分
- 4LDK
-
-
- 新築一戸建て 2025.10.12
-
-
- 3,990万円
-
船橋市飯山満町3丁目
-
京成電鉄松戸線「薬園台駅」まで徒歩7分
- 4LDK
-
-
- 新築一戸建て 2025.10.16
-
-
- 3,980万円
-
船橋市前原西8丁目
-
京成電鉄松戸線「前原駅」まで徒歩5分
- 4LDK
-
-
- 新築一戸建て 2025.10.16
-
-
- 3,980万円
-
船橋市前原西8丁目
-
京成電鉄松戸線「前原駅」まで徒歩5分
- 4LDK
-
-
- 新築一戸建て 2025.10.17
-
-
- 3,890万円
-
船橋市栄町1丁目
-
京成本線「京成船橋駅」まで徒歩21分
- 3LDK
-
-
- 新築一戸建て 2025.10.21
-
-
- 3,980万円
-
船橋市前原西8丁目
-
京成電鉄松戸線「前原駅」まで徒歩5分
- 2LDK
-
-
- 新築一戸建て 2025.10.21
-
-
- 3,980万円
-
船橋市前原西8丁目
-
京成電鉄松戸線「前原駅」まで徒歩5分
- 2LDK
-
-
- 新築一戸建て 2025.10.26
-
-
- 3,890万円
-
船橋市大穴南5丁目
-
京成電鉄松戸線「高根公団駅」まで徒歩12分
- 4LDK
-
-
- 新築一戸建て 2025.11.01
-
-
- 3,998万円
-
船橋市三山2丁目
-
京成本線「京成大久保駅」まで徒歩20分
- 3LDK
-
-
- 新築一戸建て 2025.11.14
-
-
- 3,999万円
-
船橋市松が丘2丁目
-
京成電鉄松戸線「高根公団駅」まで徒歩26分
- 4LDK
-
-
- 新築一戸建て 2025.11.16
-
-
- 3,898万円
-
船橋市高野台3丁目
-
京成電鉄松戸線「二和向台駅」まで徒歩30分
- 4LDK
-
-
- 新築一戸建て 2025.11.23
-
-
- 3,998万円
-
船橋市七林町
-
京成電鉄松戸線「習志野駅」まで徒歩9分
- 4LDK
-
-
-
新築一戸建て
2025.12.12
-
-
- 3,990万円
-
船橋市二和西5丁目
-
京成電鉄松戸線「二和向台駅」まで徒歩18分
- 4LDK
-
-
新築一戸建て
2025.12.12
-
-
新築一戸建て
2025.12.12
-
-
- 3,990万円
-
船橋市二和西5丁目
-
京成電鉄松戸線「二和向台駅」まで徒歩18分
- 4LDK
-
-
新築一戸建て
2025.12.12
-
-
新築一戸建て
2025.12.13
-
-
- 3,890万円
-
船橋市三咲7丁目
-
京成電鉄松戸線「三咲駅」まで徒歩14分
- 4LDK
-
-
新築一戸建て
2025.12.13
-
-
新築一戸建て
2025.12.13
-
-
- 3,990万円
-
船橋市三咲7丁目
-
京成電鉄松戸線「三咲駅」まで徒歩14分
- 4LDK
-
-
新築一戸建て
2025.12.13
-
-
新築一戸建て
2025.12.13
-
-
- 3,990万円
-
船橋市三咲7丁目
-
京成電鉄松戸線「三咲駅」まで徒歩14分
- 4LDK
-
-
新築一戸建て
2025.12.13
-
-
新築一戸建て
2025.12.13
-
-
- 3,990万円
-
船橋市三咲7丁目
-
京成電鉄松戸線「三咲駅」まで徒歩14分
- 4LDK
-
-
新築一戸建て
2025.12.13
-
-
新築一戸建て
2025.12.13
-
-
- 3,990万円
-
船橋市三咲7丁目
-
京成電鉄松戸線「三咲駅」まで徒歩14分
- 4LDK
-
-
新築一戸建て
2025.12.13
- 千葉県
マイページ物件数 - 2,776件
最近見た物件
-
-

-
- 土地
- 1,280万円
-
京都市上京区御前通西裏上の下立売上る北町
-
JR山陰本線円町
-
千葉県新築一戸建て新着物件
-
-

-
- 新築一戸建て
- 3,099万円
-
四街道市四街道3丁目
-
JR総武本線四街道駅
-
-
-

-
- 新築一戸建て
- 3,299万円
-
四街道市四街道3丁目
-
JR総武本線四街道駅
-
-
-

-
- 新築一戸建て
- 4,890万円
-
松戸市常盤平5丁目
-
京成電鉄松戸線五香駅
-
-
-

-
- 新築一戸建て
- 4,990万円
-
松戸市常盤平5丁目
-
京成電鉄松戸線五香駅
-
-
-

-
- 新築一戸建て
- 4,990万円
-
松戸市常盤平5丁目
-
京成電鉄松戸線五香駅
-
-
-

-
- 新築一戸建て
- 4,280万円
-
松戸市新松戸5丁目
-
JR武蔵野線新松戸駅
-
-
-

-
- 新築一戸建て
- 3,490万円
-
鎌ケ谷市西佐津間1丁目
-
東武野田線六実駅
-
- お近くの店舗を探す
-








































担当エージェント:むぎちゃん
★先着10組限定!今だけ!弊社独自キャンペーン★
物件内覧、弊社アンケートにご記入でギフトカード1,000円分プレゼントキャンペーン開催中!
※ご希望物件の内覧と弊社指定アンケートへのご記入をして頂いたお客様がキャンペーンの対象になります。
※弊社へのお問合せご利用が初めてのお客様に限ります。
※お客様の方から担当者に事前に必ずキャンペーンを見ましたとお伝え下さい。(こちらからのご案内はしませんのでご理解宜しくお願い致します。)
■当日見学OK■
営業時間内(10:00~18:00)は、下記電話フォームよりお電話をして頂けるとスムーズにご内覧のご案内ができます。