静岡市清水区天王西の新築戸建
掲載情報更新日:2025年11月13日 次回更新予定日:2025年11月27日
- 2,680万円
-
- 借入ご希望金額
万円 - 借入期間
年 - 借入金利
% - 月々のお支払い金額
円
- 借入ご希望金額
※ 月々のお支払例は目安の試算となりますので、実際の金額とは異なる場合がございます。詳しくは店舗までお問合わせください。
- 静岡市清水区天王西
-
JR東海道本線『草薙』 バス乗車9分 梅ヶ谷蜂ヶ谷線:はちがやまわり 第六中学校前 停 徒歩4分 (約320m)
JR東海道本線『清水』 バス乗車11分 北街道線:静岡駅前行 天王町 停 徒歩6分 (約480m)
JR東海道本線『静岡』 バス乗車34分 北街道線:清水駅前行 天王町 停 徒歩6分 (約480m)
静岡市清水区天王西一戸建て | 物件情報
【ハウスドゥ清水花みずき通り】高部東小/第六中/3台駐車可能◆地域密着のハウスドゥにお任せください!
\ハウスドゥ清水花みずき通りへおまかせ!/
▼物件オススメポイント!
◎並列3台駐車可能で来客があっても楽々駐車可能!
◎北街道やバイパスまでのアクセス良好で交通利便性にも優れています♪
◎徒歩圏内に買い物施設が揃い快適な住環境です!
▼立地
◎高部東小学校まで徒歩11分
◎第六中学校まで徒歩3分
◎ウエルシア清水天王店まで徒歩5分
〓〓〓〓お気軽にお問合せください〓〓〓〓
「今すぐ見たい」「他の物件もまとめてみたい」などにも
すぐにご対応いたします!
☆頭金なしでもご購入できます
☆転職したばかりなど住宅ローンでお困りの方
〓〓〓〓〓〓〓〓〓〓〓〓〓〓〓〓〓〓〓〓
物件の設備
- 電気
- 上水道
- 公営水道
- 下水道
- 都市ガス
- 給湯
- 食器洗浄乾燥機
- コンロ三口
- カウンターキッチン
- システムキッチン
- バス
- バス1坪以上
- 追焚機能
- 浴室暖房
- 浴室乾燥機
- 浴室に窓
- トイレ
- トイレ2箇所
- 温水洗浄便座
- 室内洗濯機置場
- 洗髪洗面化粧台
- リビング階段
- モニタ付インターホン
- LDK15畳以上
- 複層ガラス
- 全居室複層ガラス
- フローリング
- 全室フローリング
- 24時間換気システム
- クローゼット
- クローゼット2箇所
- クローゼット3箇所
- 納戸
- 床下収納
- 全居室収納
- シューズWIC
- シューズボックス
- ワイドバルコニー
物件の特徴
- 小学校徒歩10分以内
- 閑静な住宅街
- 市街地が近い
- 通風良好
- 陽当り良好
- 2階建
- 長期優良住宅
- 設計住宅性能評価付
- 建築確認完了検査済証
- 新築
- 増改築設計図書
物件詳細情報
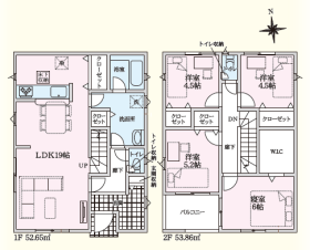
| 価格 | 2,680万円 | 間取り | 3LDK+S |
|---|---|---|---|
| 物件種別 | 新築一戸建て | ||
| 所在地 | 静岡県静岡市清水区天王西 1号棟/全1棟 | ||
| アクセス |
|
||
| 建物面積 | 85.42㎡ | 駐車場 | あり 普通:2台 軽:1台 |
| 築年月 | 2026年(令和8年)03月予定 | 建築確認 | 第2025確認建築静建住ま05697号 |
| 建物構造 | 木造 2階建 | 工法 | |
| 主要採光 | バルコニー | ||
| 保証・評価 | 長期優良住宅認定通知書・設計住宅性能評価書 |
||
| 土地面積 | 102.81㎡(31.10坪) | 接道 | 北西側(公道)幅 約4.0m 間口 約7.40m |
| 私道 | セットバック | ||
| 地目 | 宅地 | 地勢 | |
| 権利 | 所有権 |
||
| 都市計画 | 市街化区域 |
用途地域 | 1種中高 |
| 建ぺい/容積率 | 60% / 150% | 土地国土法 | |
| 許可番号 | 建築基準法 | ||
| 法令制限 | |||
| 小学区 | 清水高部東小学校 徒歩12分 (約950m) | 中学区 | 清水第六中学校 徒歩5分 (約400m) |
| 現況 | 建築中 | 引渡 | 期日指定:2026年03月 |
| その他費用 | |||
| 周辺環境 | 静岡市立清水高部東小学校 徒歩12分 (約950m) 静岡市立清水第六中学校 徒歩6分 (約460m) ふれっぴー飯田店 徒歩11分 (約830m) ヒバリヤ高部店 徒歩12分 (約940m) ウエルシア 清水天王店 徒歩5分 (約380m) クリエイトS・D清水下野店 徒歩11分 (約830m) エスポット清水天王店 徒歩7分 (約540m) 清水押切郵便局 徒歩11分 (約840m) しずおか焼津信用金庫 押切支店 徒歩10分 (約800m) ファミリーマート清水石川店 徒歩8分 (約630m) |
||
| 備考 | |||
| 物件番号 | 4425422 | 取引態様 | 媒介 |
取扱店舗情報
ハウスドゥ 清水花みずき通り 都商事株式会社 店舗詳細ページへ
| 電話番号 | 054-340-8085 |
|---|---|
| 所在地 | 〒424-0858 静岡県静岡市清水区大沢町5-6 |
| 営業時間 | 9:30~18:00 |
| 定休日 | 水曜日、年末年始 |
| 宅建免許番号 | 静岡県知事(2)14319号 |
| アクセス | 店舗への地図はこちら |

来店ご予約
静岡県静岡市清水区で価格が似ている物件はこちら
- 静岡県
マイページ物件数 - 2,805件
静岡県新築一戸建て新着物件
- お近くの店舗を探す
-
おすすめ物件
-
-

-
- 新築一戸建て
- 2,980万円
-
伊豆の国市大仁
-
伊豆箱根鉄道駿豆線大仁
-
-
-

-
- 新築一戸建て
- 3,090万円
-
浜松市中央区高丘北1丁目
-
遠鉄バス「高丘郵便局」停
-
-
-

-
- 新築一戸建て
- 2,390万円
-
焼津市石津
-
JR東海道本線焼津
-
-
-

-
- 新築一戸建て
- 2,980万円
-
駿東郡清水町長沢
-
JR東海道本線沼津
-
-
-

-
- 新築一戸建て
- 2,980万円
-
富士市富士見台1丁目
-
岳南電車岳南原田
-
-
-

-
- 新築一戸建て
- 2,390万円
-
島田市金谷根岸町
-
大井川鉄道本線代官町
-
-
-

-
- 新築一戸建て
- 2,480万円
-
焼津市小川新町3丁目
-
JR東海道本線焼津
-
-
-

-
- 新築一戸建て
- 2,780万円
-
富士宮市源道寺町
-
JR身延線源道寺
-
-
-

-
- 新築一戸建て
- 2,470万円
-
島田市中溝町
-
JR東海道本線島田
-
-
-

-
- 新築一戸建て
- 2,380万円
-
焼津市石津中町
-
JR東海道本線焼津
-








◇◆現地見学ツアー◇◆
◆平日・土日どちらもOK♪
見学の際はお客様のご希望に合わせて3コース設けております。(要予約)
(1)さくっと見学コース(所要時間30分)
(2)じっくり見学コース(所要時間1時間)
(3)納得見学コース(所要時間2時間)
◇◆住宅ローン相談会実施中◇◆
随時住宅ローン相談会を開催しております。
お客様に最適な金融機関とプランをご提案させていただきます。
◎いくらまで借りれるの?
◎ローンを組めるの?等
お気軽にご相談ください。
事前審査をご希望の場合、下記の資料をお持ちください。
□源泉徴収票 □免許証 □保険証 □認印 □各ローンの返済予定表(車など)
□給与明細(勤続1年未満の方)
※追加資料必要な場合があります。
☆☆お子様連れ大歓迎!!☆☆
北欧風のおもちゃ、TVモニター、絵本、お菓子などもご用意♪
お子様にも楽しんでいただけるようなお店作りを目指しています。